Bildegalleri

BRUMUNDDAL - ledig lokale sentralt på gateplan med parkering utenfor
Nøkkelinfo
- Areal
- 350 - 400 m²
- Etasje
- 1.
Type lokale
Fasiliteter
Om eiendommen
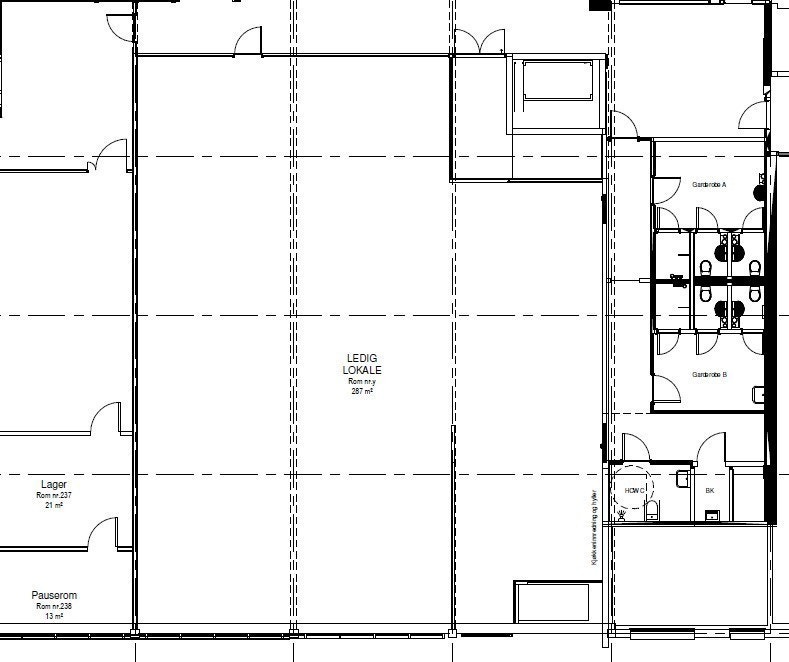
I sentrum av Brumunddal har Parketten gjennomgått en totalforvandling de senere årene. Nå gjenstår det kun ett lokale i 2.etasje (1.etasje fra parkeringen) hvor vi søker leietagere som vil være med på å utforme sine egne lokaler.
Lokalet er på ca 300 m2 og har store vinduer mot nord ut mot Brumund-elva. Sanitærfasiliteter og felles kantine for bygget rett i nærheten.
Sentralt i Brumunddal, kun 800m fra E6!
Eiendommen har en stor parkeringsplass for kunder og ansatte med inngang som deles med Rema 1000, Musti og AO-senteret blant annet. Inngangsdør med tidsstyrt låsing på morgen, kveld og helg.
Hele etasjen er utført etter TEK17 og holder gjennomgående 2023-standard.
Fortell oss om dine ønsker og behov for næringslokaler.
Rimo Eiendom AS er et eiendomsselskap lokalisert i Ringsaker, og har eiendommer primært i Innlandet (Hedmark og Oppland).
Vårt mål er en langsiktig og forutsigbar drift med gode leietakere. Vi kjøper og drifter primært eiendommer rettet mot næringslivet.
Visning
Ta kontakt for å avtale visning.Nyttige lenker
Rimo Eiendom AS
Nærområdet
Annonseinformasjon
| FINN-kode | 445738277 |
|---|---|
| Sist endret | 12. jan. 2026 07:47 |
| Referanse | XParkettenX |
Annonsene kan være mangelfulle i forhold til lovpålagt opplysningsplikt. Før bindende avtale inngås oppfordres interessenter til å innhente komplett informasjon fra meglerforetaket, selger eller utleier.






