Bildegalleri

NYDALEN - Kontorer, undervisning og showroom - BTA ca 389-829 kvm - Hel sidebygning og full toppetasje - Parkering
NYDALEN | Attraktive lokaler bestående av full etasje og hel sidebygning - Kontor/Undervisning/mm - BTA 390 til 829 kvm
Nøkkelinfo
- Areal
- 389 - 829 m²
- Tomt
- Eiet
Type lokale
Arealspesifikasjon
389 kvm Sidebygning
440 kvm Hovedetasje
Beliggenhet
Nydalen har de siste årene utviklet seg til å bli en av Oslos mest attraktive næringsklynger, med en spennende kombinasjon av moderne kontorbygg, gamle industribygg, handel, utdanning og boliger.
Området huser i dag en rekke større selskaper innen bl.a. teknologi, media, finans og konsulentvirksomhet, og har et dynamisk og innovativt miljø som tiltrekker seg både etablerte aktører og vekstselskaper.
Med beliggenhet langs Akerselva byr Nydalen på en unik kombinasjon av urbane kvaliteter og grønne rekreasjonsområder. Her finner man et bredt tilbud av servicetjenester, restauranter, kafeer, treningssentre og butikker alt innen gangavstand.
Kommunikasjonen er svært god med egen T-banestasjon (10 minutter til Oslo sentrum), hyppige bussavganger, trikk i nærheten og kort avstand til hovedveinettet.
For syklister er det godt tilrettelagt med sykkelveier og bysykkelstasjoner, og for bilbrukere finnes det gode parkeringsmuligheter i området.
Nydalen er et område i kontinuerlig utvikling, og fremstår i dag som en moderne, effektiv og attraktiv beliggenhet for virksomheter som ønsker å kombinere gode kontorfasiliteter med nærhet til både sentrum og naturopplevelser.
Parkering
Mulighet for leie av inntil 12 parkeringsplasser.
Inneholder
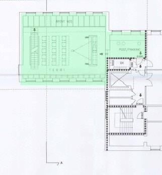
Toppetasje (blått areal):
Velkomstområde med heis. Kontorlandskap og div. kontorer, møterom samt lagring. Stort møterom/spiserom med kjøkken. Garderobe og toaletter.
Gjennomgang til sidebygning (kan stenges).
BTA ca 440 kvm.
Sidebygning (grønt areal):
1.etg: Inngang, kontor/undervisning/showroom, garderobe med bad og toalett.
2.etg: Kontor/undervisning/showroom og kjøkken. Inngang/garderobe/mottak. Heis.
3.etg: Kontor/showroom.
Sidebygning kan leies ut separat.
BTA ca 389 kvm.
Inntil 12 parkeringsplasser kan inkluderes i leieforholdet.
Ellendalen bomuldspinderi ble oppført i 1845 og er i følge Byantikvaren ansett som en av Norges første bomulsspinnerier.
Sidebygning antas å ha blitt benyttet til kontor- og administrasjonsdel, mens det hovedbygget har inneholdt spinnerihallen.
Matrikkelinformasjon
Visning
Ta kontakt for å avtale visning.
AREALPARTNER NÆRINGSMEGLING AS
Nærområdet
Annonseinformasjon
| FINN-kode | 445214647 |
|---|---|
| Sist endret | 09. jan. 2026 08:35 |
| Referanse | APN1.2562 |
Annonsene kan være mangelfulle i forhold til lovpålagt opplysningsplikt. Før bindende avtale inngås oppfordres interessenter til å innhente komplett informasjon fra meglerforetaket, selger eller utleier.




























