Bildegalleri

TANGEN - næringslokale med attraktiv beliggenhet
Nøkkelinfo
- Areal
- 55 m²
- Etasje
- 1.
- Overtakelse
- Omgående
Type lokale
Butikk/Handel
Serveringslokale/Kantine
Andre
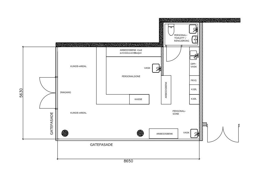
Om eiendommen
Vi har fått et næringslokale med svært god beliggenhet på Tangen i Kristiansand ledig for leie. Lokalet deler inngangsparti med Rema 1000 og ligger kun 200 meter fra Bystranda.
Lokalet har tidligere vært benyttet til utsalg/take away, og det foreligger bruksgodkjenning på utsalg av ferdigprodusert mat. Eiendommen er regulert til næring, bevertning og forretning.
Næringslokalet inneholder primært salgsflate og noe personalareal (wc, vaskeområde, o.l.).
Rask overtakelse er aktuelt.
Ta kontakt for visning.
Matrikkelinformasjon
Kommunenr: 4204
Gårdsnr: 150
Bruksnr: 1602
NB: Knappen for å vise hele beskrivelsen har kun en visuell effekt.
NB: Knappen for å vise hele beskrivelsen har kun en visuell effekt.
Visning
Ta kontakt for å avtale visning.
Ånund Lunde Eiendom AS
Bolig & Næring
Nærområdet
Annonsene kan være mangelfulle i forhold til lovpålagt opplysningsplikt. Før bindende avtale inngås oppfordres interessenter til å innhente komplett informasjon fra meglerforetaket, selger eller utleier.







