Bildegalleri

Attraktiv og sentralt kontorlokale til leie i Vetrlidsallmenningen
Nøkkelinfo
- Areal
- 166 m²
- Bruksareal
- 132 m²
- Etasje
- 2.
- Kontorplasser
- 10
- Byggeår
- 1870
- Renovert år
- 2023
- Overtakelse
- 01.01.2026
Type lokale
Kontor
Fasiliteter
Bredbåndstilknytning
Beliggenhet
Vetrlidsallmenningen 5 har en meget sentral og attraktiv beliggenhet et steinkast fra Bryggen i Bergen sentrum. Eiendommen ligger mellom Fløibanen og Torget og nærområdet består hovedsakelig av butikker, restauranter og kontorer.
Eiendommen ble oppført i 1870. Opprinnelig var det bygget i nygotisk stil, men fasadene på huset ble bygget om i 1930 årene til funksjonalisme – i kontrast til naboeiendommene.
Bygget ble malt og alle vinduene skiftet i 2024.
Det er butikk i plan U og 1 etasje og kontorer i de øvrige etasjene.
Adkomst
Eiendommen ligger i gaten på vei opp til Fløybanen. Eiendommen har flott utsikt mot bryggen og mot fjellene.
Innhold
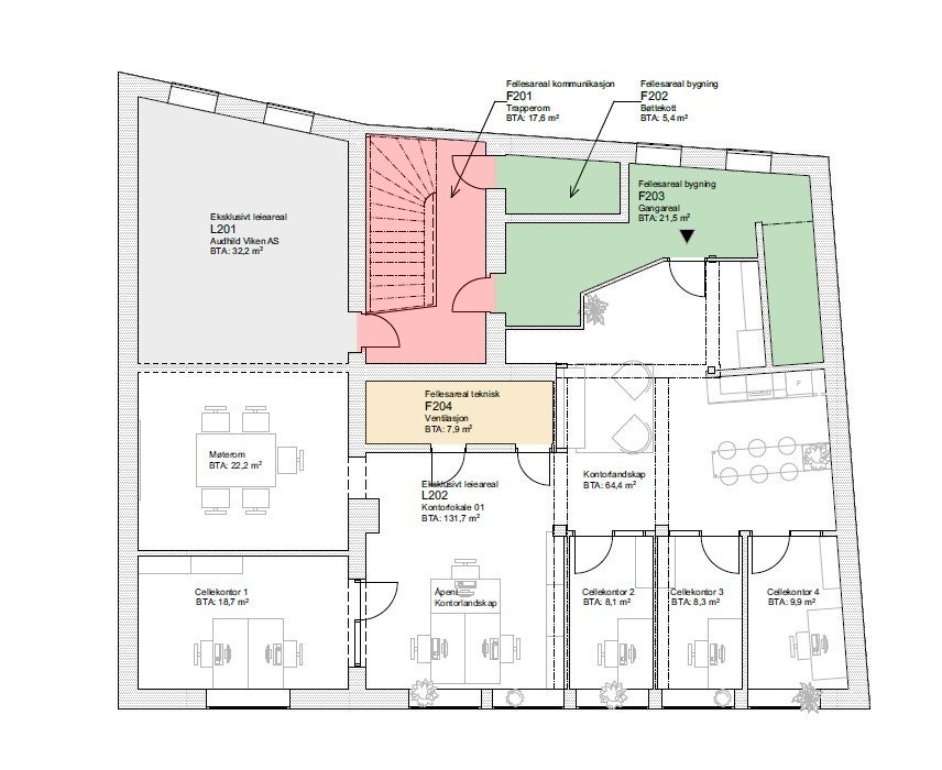
Lokalet fremstår i dag som et rålokale, men skal totalrenoveres så lokalet blir lyst og moderne.
Leietaker kan være med å tilpasse lokalet etter deres ønsker og behov. Vedlagte tegninger er mulig planløsning på hvordan lokalet kan bli.
Leietakere ellers på bygget er:
Audhild AS
Broadstone
Digitalfinans
Primo Service
Rebel Unit
Leietaker kan være med å tilpasse lokalet etter deres ønsker og behov. Vedlagte tegninger er mulig planløsning på hvordan lokalet kan bli.
Leietakere ellers på bygget er:
Audhild AS
Broadstone
Digitalfinans
Primo Service
Rebel Unit
Matrikkelinformasjon
Gårdsnr: 166
Bruksnr: 3
NB: Knappen for å vise hele beskrivelsen har kun en visuell effekt.
NB: Knappen for å vise hele beskrivelsen har kun en visuell effekt.
Visning
Ta kontakt for å avtale visning.Vestenfjeldske Eiendom AS
Vestenfjeldske Eiendom AS
Nærområdet
Annonsene kan være mangelfulle i forhold til lovpålagt opplysningsplikt. Før bindende avtale inngås oppfordres interessenter til å innhente komplett informasjon fra meglerforetaket, selger eller utleier.






