Bildegalleri

Fra E18, avkjøring 31
Kontorlokaler v/E-18 i Holmestrand
Nøkkelinfo
- Areal
- 11 - 250 m²
- Tomteareal
- 1 m²
- Etasje
- 1.
- Kontorplasser
- 12
- P-plasser
- 12
- Byggeår
- 2008
- Overtakelse
- 01.01.2026
Type lokale
Fasiliteter
Om eiendommen
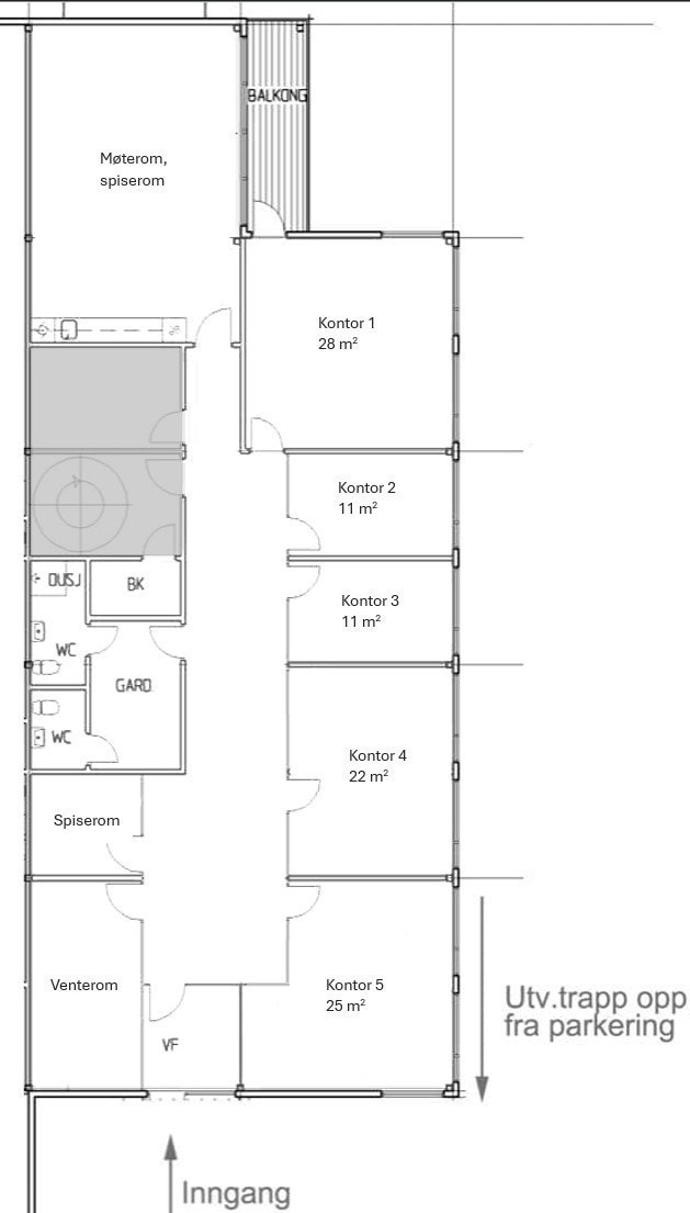
Ligger i samme bygg som Sundance. Egen inngang. Kan leies ut ferdig møblert mot tillegg. Lyse og trivelige lokaler med god beliggenhet. Totalt 5 kontorer. Flere av kontorene er store og kan ha plass til flere ansatte, derfor angitt 12 kontorplasser i annonsen.
Ledige kontorer er markert grønt på plantegning.
Beliggenhet
Flotte kontorlokaler nær E-18 med enkel adkomst for kunder og ansatte.
Adkomst
Ta av E-18 i Bentsrudkrysset (andre avkjøring til Holmestrand). Følg veien ned mot byen og ta til høyre i rundkjøringen. Ta så neste til høyre og følg Bentsrudveien tilbake i retning E-18. Kjør forbi bygget og følg innkjøring til Sundance.
Standard
Lokalene er lyse og trivelige og holder en god kontorkvalitet.
Innhold
Felleskostnader som inkluderer strøm, vann, ventilasjon (med kjøling), oppvarming, snøbrøyting, feiing osv. faktureres over iht. brøk.
Matrikkelinformasjon
Visning
Nærområdet
Annonsene kan være mangelfulle i forhold til lovpålagt opplysningsplikt. Før bindende avtale inngås oppfordres interessenter til å innhente komplett informasjon fra meglerforetaket, selger eller utleier.

















