Bildegalleri

Husebybakken 28B
Montebello - Kontorer, lager og kombinasjonslokaler fra 12 til 500 kvm. Mulighet for riggplass/utelager. Gunstig leie.
Nøkkelinfo
- Tomt
- Eiet
Type lokale
Kort om eiendommen
Vi har for leie ledige lokaler og riggplass/utelager med sentral beliggenhet i Oslo. Eiendommen skal på sikt utvikles til boliger så her er det mulig å leie rimelige lokaler med løpende leiekontrakter og 6 måneders gjensidig oppsigelse. Vi har kontorlokaler i varierende størrelse og standard fra 12 til 500 kvm., lager fra 18 til 277 kvm., kombinasjonslokaler fra 180 til 362 kvm. og riggplass/utelager. Ta kontakt for nærmere informasjon.
Beliggenhet
Næringslokalene ligger i Husebybakken 28B, Noreveien 28 og Noreveien 22 som er et område beliggende på Montebello planlagt for boligutvikling. Eiendommen har en sentral beliggenhet med enkel adkomst til Ring 3 og kort gangavstand til transportknutepunkter med T-bane rett ved eiendommen og buss ved Ring 3.
Inneholder
De ledige lokalene ligger på samme område, men er fordelt over tre adresser.
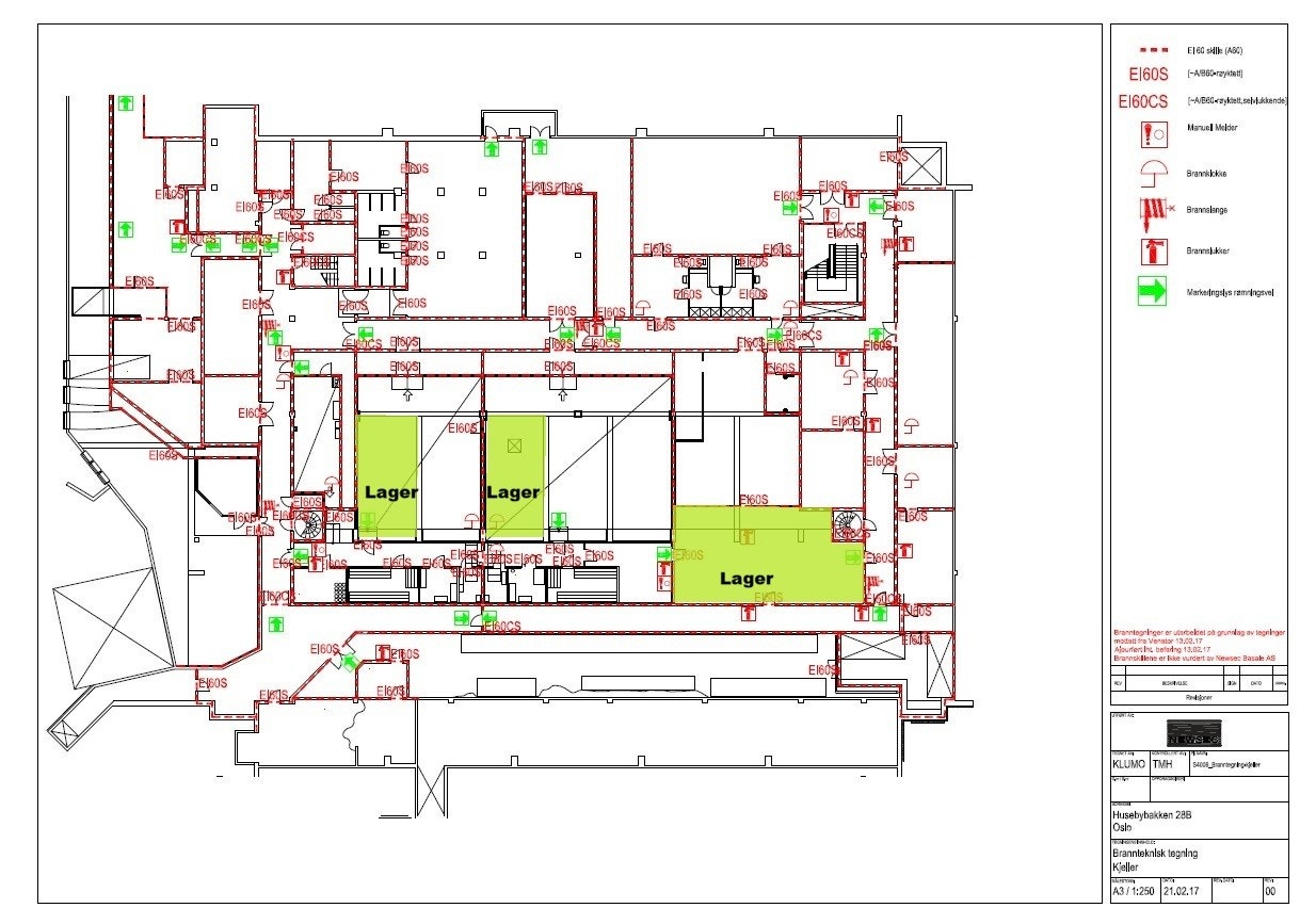
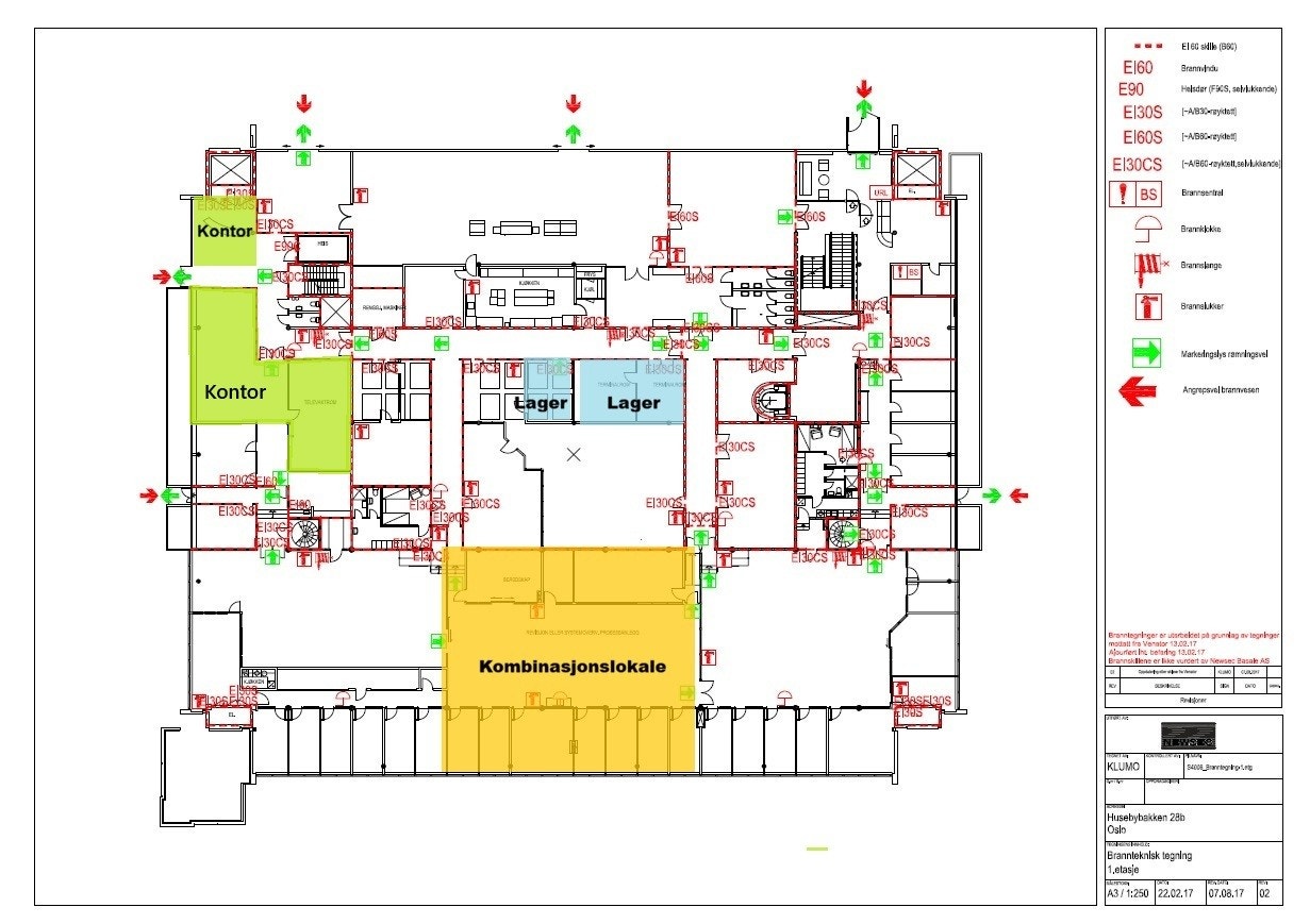
Husebybakken 28B. Her har vi følgende ledige lokaler:
Lager i byggets 1. etg. og U. etg. fra BTA ca. 18 kvm. til BTA ca. 103 kvm. Lagerlokalene har tilgang fra felles rampe og varer må deretter fraktes via korridor.
Kontorlokaler fra BTA ca. 12 kvm. til BTA ca. 480 kvm. Kontorlokalene er i varierende størrelser fra enkeltkontorer i kontorfellesskap til større lokaler.
Kombinasjonslokaler fra BTA ca. 181 kvm. til BTA ca. 362 kvm. med god takhøyde som egner seg for lager/enkel produksjon og kontor.
Noreveien 22. Her har vi følgende ledige lokaler:
Lagerlokaler BTA ca. 277 kvm. med kjøreport og mulighet for uteområde.
Kontorlokale bygg A. BTA ca. 230 kvm. i 2. etg.
Kontorlokale bygg B. BTA ca. 143 kvm. i 2. etg.
Noreveien 26. Her har vi følgende lokaler ledig:
Kontorlokaler fra BTA ca. 28 til BTA ca. 130 kvm. Kontorlokalene er i varierende størrelser fra enkeltkontorer i kontorfellesskap til større lokaler.
Riggplass/utelager:
Det er flere områder på tomten som kan leies. Fra ca. 100 kvm. til 2000 kvm.
Flere av lokalene kan slås sammen eller deles opp. Ta kontakt med megler for nærmere informasjon.
Matrikkelinformasjon
Visning
Ta kontakt for å avtale visning.
AREALPARTNER NÆRINGSMEGLING AS
Nærområdet
Annonseinformasjon
| FINN-kode | 444965978 |
|---|---|
| Sist endret | 22. jan. 2026 09:28 |
| Referanse | APN1.2588 |
Annonsene kan være mangelfulle i forhold til lovpålagt opplysningsplikt. Før bindende avtale inngås oppfordres interessenter til å innhente komplett informasjon fra meglerforetaket, selger eller utleier.







































































