Bildegalleri

VI HAR OPPTIL 7000M2 BTA NÆRINGSAREALER SENTRALT PÅ KOKSTAD: PASSER DAGLIGVARE, MØBEL, BIL, SYKEHUS ETC.
Nøkkelinfo
- Areal
- 7 200 - 7 300 m²
- Overtakelse
- 01.01.27
Type lokale
Kontor
Butikk/Handel
Produksjon/Industri
Lager/Logistikk
Kombinasjonslokaler
Verksted
Garasje/Parkering
Serveringslokale/Kantine
Undervisning/Arrangement
Andre
Fasiliteter
Garasje/P-plass
Kjøreport
Om eiendommen
Ledig sentrumsregulerte arealer sentralt på Kokstad | opptil ca. 7300 m² BTA | Tilgjengelig fra 01.01.27.
Areal:
Totalt ca. 6 800 m²
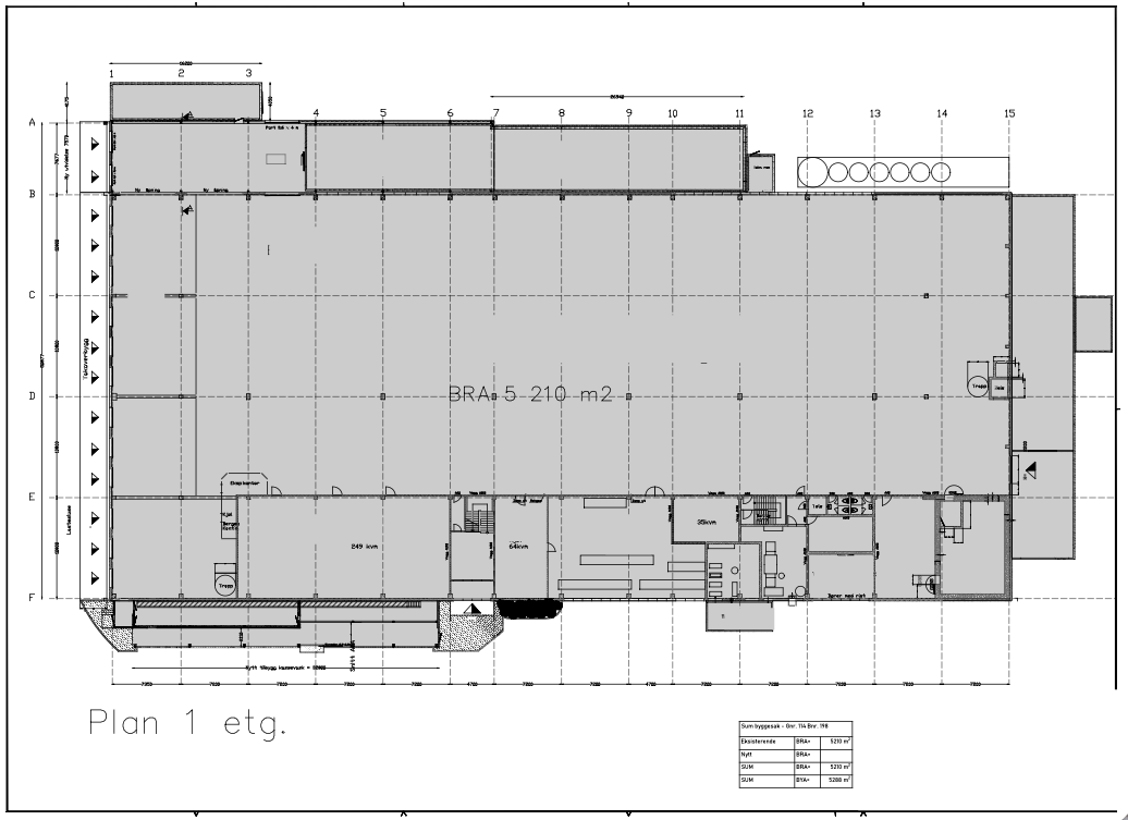
1. Etasje produksjonslokale: ca. 5 210 m² BRA
Mesanin: ca. 1 625 m² BRA
Standard og funksjoner slik lokalene står i dag er tilpasset lager og logistikk:
- Flere lasteramper for effektiv på- og avlessing med lastebil
- Kjøreporter
- God intern logistikk
- Fleksibel planløsning
Tomten på Kokstadvegen 17 er sentrumsregulert og tillater derfor et bredt spekter innenfor næringsvirksomhet, eksempler på dette: Dagligvare, bilbutikk, møbelbutikk, engros, logistikk, lager, produksjon, kontor. etc.
Lokalene kan tilpasses leietaker.
Areal:
Totalt ca. 6 800 m²
1. Etasje produksjonslokale: ca. 5 210 m² BRA
Mesanin: ca. 1 625 m² BRA
Standard og funksjoner slik lokalene står i dag er tilpasset lager og logistikk:
- Flere lasteramper for effektiv på- og avlessing med lastebil
- Kjøreporter
- God intern logistikk
- Fleksibel planløsning
Tomten på Kokstadvegen 17 er sentrumsregulert og tillater derfor et bredt spekter innenfor næringsvirksomhet, eksempler på dette: Dagligvare, bilbutikk, møbelbutikk, engros, logistikk, lager, produksjon, kontor. etc.
Lokalene kan tilpasses leietaker.
Beliggenhet
Eiendommen ligger i et veletablert næringsområde på Kokstad, med god adkomst til hovedveinettet og kort vei til Flesland og E39. Beliggenheten er godt egnet for virksomheter med behov for effektiv logistikk og transport.
NB: Knappen for å vise hele beskrivelsen har kun en visuell effekt.
NB: Knappen for å vise hele beskrivelsen har kun en visuell effekt.
Visning
Ta kontakt for å avtale visning.Midgard Forvaltning As
Velkommen som leietaker!
Nærområdet
Annonsene kan være mangelfulle i forhold til lovpålagt opplysningsplikt. Før bindende avtale inngås oppfordres interessenter til å innhente komplett informasjon fra meglerforetaket, selger eller utleier.




