Bildegalleri

Moderne og planeffektivt med spesialtilpasset belysning
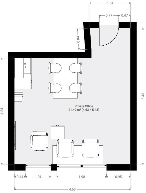
Møblert kontor i moderne kontorfellesskap
Nøkkelinfo
- Areal
- 26 m²
- Bruttoareal
- 26 m²
- Byggeår
- 2005
Type lokale
Lokalene:
Lyse og moderne kontorlokaler med høy standard. Store vindusflater gir godt med naturlig lys, og arealet er innredet med:
- Dedikerte arbeidsplasser med ergonomiske stoler og god plass
- Møtebord med plass til 6 8 personer
- Praktisk kjøkkenkrok med kaffemaskin
- 3 Arbeidsplasser inkl. stoler
- Lagringsplass i hyller og skap
Beliggenhet:
Kontoret ligger i et attraktivt og profesjonelt kontorfellesskap, med enkel adkomst og gode parkeringsmuligheter. Området gir en representativ ramme for bedrifter som ønsker å kombinere effektiv drift med et inspirerende arbeidsmiljø.
Fellesfasiliteter:
Som leietaker får du tilgang til:
- Felles spiserom
- Felles toaletter
- Trivelig og profesjonelt kontorfellesskap
Tilleggsmuligheter:
- Leie av parkeringsplasser rett utenfor bygget
- Tilgang til lagerlokaler ved behov
Passer for:
Perfekt for bedrifter, konsulenter, gründere eller frilansere som ønsker å jobbe i et profesjonelt miljø.
Beliggenhet:
Leangbukta Maritime Senter ligger innerst i Leangbukta og er nordens største anlegg og samlingsplass for båtbransjen og maritim virksomhet. Umiddelbar nærhet til sjøen der leietaker kan nyte de maritime omgivelsene fra morgen til kveld. Nyetablert sommeråpen restaurant beriker området med både uteservering og musikk.
5 minutter med bil fra Asker sentrum, i underkant av 10 minutter fra Sandvika.
Slemmestadveien sydover fra avkjørsel E 18.
Meget god parkering på området
Vår Referanse: Le30/2312
Matrikkelinformasjon
Visning
Fredensborg AS
Nærområdet
Annonseinformasjon
| FINN-kode | 444755400 |
|---|---|
| Sist endret | 06. jan. 2026 08:53 |
| Referanse | L-Le30/2312 |
Annonsene kan være mangelfulle i forhold til lovpålagt opplysningsplikt. Før bindende avtale inngås oppfordres interessenter til å innhente komplett informasjon fra meglerforetaket, selger eller utleier.








