Bildegalleri

Fasaden sett fra hagen
Inaktiv
Moderne kontorlokaler i fantastisk fabrikkbygg på Tøyen
Nøkkelinfo
- Areal
- 222 - 347 m²
- Byggeår
- 1876
Type lokale
Kontor
Fasiliteter
Aircondition
Alarm
Bredbåndstilknytning
Garasje/P-plass
Om eiendommen
Vi har to ulike lokaler for utleie i Borggata 1
- 347 kvm BTA, beliggende over to plan - fra 1. til 2. etasje i det som opprinnelig var Direktørboligen i Pellerins Margarinfabrikk. Inngangspartiet i glass er montert slik at man får et ytre rom i en god størrelse, før man entrer den gamle teglstensgården. Lokalene inneholder et styrerom med original fiskebensparkett og peis. 6 teamsrom er fordelt over to etasjer og har plass til flere arbeidsplasser per rom. Det er et kjøkkenrom med spiseplass til alle ansatte med egen utgang til hagen, som har sittegrupper med stoler og bord. Kontorene i 2. etasje er malt i duse farger, har støpejernsovn fra 1876 og utgang til sydvendt smijernsbalkong. Lokalene er nylig renovert og fremstår i meget god stand. Moderne fasiliteter i kombinasjon med godt bevarte klassiske detaljer gir et sterkt preg av identitet. Dusj og toaletter i lokalene samt et ekstra kjøkken i 2. etasje.
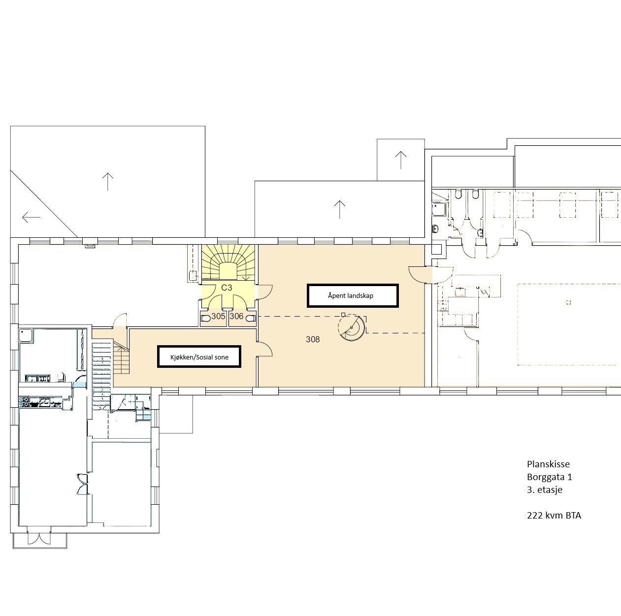
- 222 kvm BTA, beliggende i hovedbyggets 3. etasje. Gjennomgående kontorlokale med store vindusflater mot nord og sør som gir mye naturlig lys til arbeidsplassene. Meget god takhøyde skaper en fantastisk åpen følelse. Midt i det åpne landskapet fører en vindeltrapp opp til mesanin, som i dag benyttes som møterom/teamsrom. Lokalet har en egen sosial sone med kjøkken og sittegruppe. Her er også en trapp som fører opp til den andre mesaninen i lokalet som i dag brukes som produksjonslokale.
Beliggenhet
Attraktiv plassering midt mellom Tøyen torg og Grønlandsleiret. I det gamle Pellerins Margarinfabrikk fra 1876, er det bygget opp et kvartal med kontor, hager og parkering for leietakerne. 250 meter til Tøyen T-banestasjon, der alle T-banelinjene i Oslo stopper. 250 m til bussholdeplass ved Grønlandsleiret med blant annet rute 37 (Nydalen T-Helsfyr), som har avganger hvert 4 - 8 minutt på dagtid. 15 minutter å gå til Oslo S.
Adkomst
Inngang både fra Gunhilds gate og fra Borggata. Gjennom den originale hovedporten i tre - kommer man inn til de godt renoverte fabrikkbygningene, med utvendige trappeløp, en kombinasjon av smårutede vinduer og store glassflater samt buede vinduer og bueganger.
Innhold
Mulighet for innelåst sykkelparkering, og parkeringsplass for biler (både på gårdsplass og i garasjeanlegg). Foruten hagen utenfor disse lokalene, har området også en opparbeidet park med lekeapparater. Borggata 1 har en rik historie, og har vært forvaltet av dagens eier siden 1961. Byggene signaliserer kontinuitet og kvalitet. Her velger man spennende bygg med sjel, samtidig som man sitter i moderne representative kontorfasiliteter nær kollektivknutepunkter. Bygg som gir gode arbeidsplasser og en bevisst profil overfor bedriftens kunder og samarbeidspartnere.
Matrikkelinformasjon
Kommunenr: 301
Gårdsnr: 231
Bruksnr: 26
NB: Knappen for å vise hele beskrivelsen har kun en visuell effekt.
NB: Knappen for å vise hele beskrivelsen har kun en visuell effekt.
Visning
Ta kontakt for å avtale visning.DNB Næringsmegling AS Avd Oslo
Del av Norges største næringseiendomsmiljø
Nærområdet
Annonsene kan være mangelfulle i forhold til lovpålagt opplysningsplikt. Før bindende avtale inngås oppfordres interessenter til å innhente komplett informasjon fra meglerforetaket, selger eller utleier.
























