Bildegalleri

Verpetveien 20 - Nybygg med kontorer og høytlager i et av landets ledende områder for lager-, industri- og logistikkvirksomhet - rammetillatelse: foreligger!
Vestby - Nybygg med kontorer og høytlager i godt og veletablert handels- og næringsområde- rammetillatelse foreligger!
Nøkkelinfo
- Areal
- 1 145 m²
- Bruttoareal
- 1 145 m²
- Tomteareal
- 6 089 m² (eiet)
Type lokale
| Kort om eiendommen
Prosjektert kombinasjonsbygg med kontorer og høylager - kun 30 minutter til Oslo sentrum.
Egner seg for aktører innenfor småindustri, produksjon, verksted og netthandel.
Tett på E6 med nesten 2 millioner innbyggere innenfor en times reisetid.
| Innhold
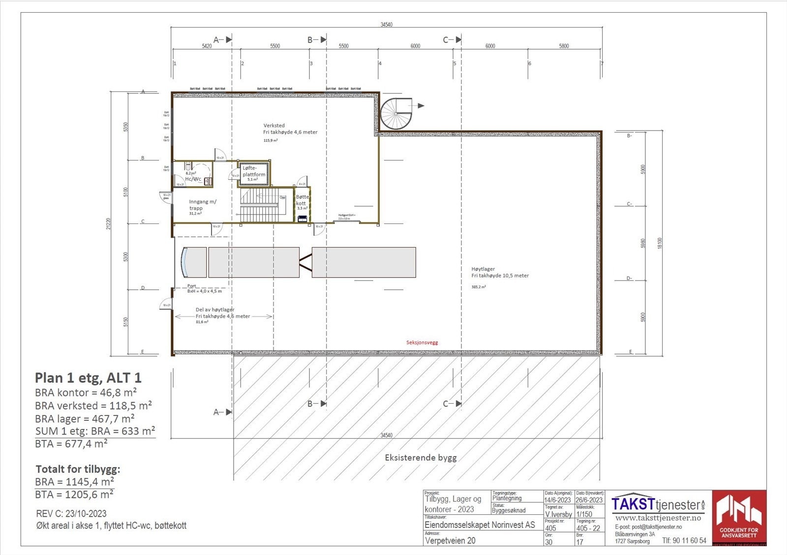
1. etasje (655 kvm): Lager med hovedsakelig takhøyde inntil 10,5 m. Mindre del av lager med takhøyde 4,6 m kan fungere som verksted.
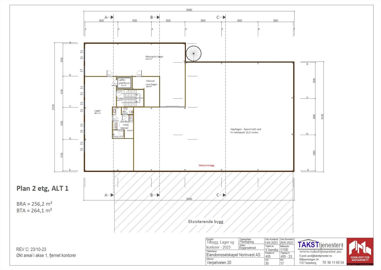
2. etasje (245 kvm): Mesanin med lager, garderober med wc og teknisk rom.
3. etasje (245 kvm): Kontorer, møterom, kjøkken med spiseplass og garderober med wc/dusj.
Vedlagte plantegninger for kontordel er ment som utkast, og vil bli utformet i samarbeid med leietaker.
| Beliggenhet
Eiendommen er sentralt beliggende i Verpet næringsområde i Vestby kommune. I meget godt og veletablert handels- og næringsområde med en rekke anerkjente aktører som Bauhaus, Oslo Fashion Outlet, Byggmax, Megaflis, Maxbo m. fl. Kort vei til Vestby sentrum med diverse forretninger, servicetilbud og Vestby stasjon med avganger til Oslo og Moss. Området ligger sentralt i forhold til E6 og E18 og er spesielt godt egnet for lager/logistikk, import-, service- og håndverksbedrifter som ønsker god kommunikasjon. Bussholdeplass med rute til Vestby togstasjon ligger noen få minutters gange unna, i krysset Verpetveien/Vestbyveien.
| Adkomst
Verpetveien 20 ligger med enkel og god adkomst fra E6, og like ved Bauhaus. Avkjøring fra E6 til Vestbyveien ved Oslo Fashion Outlet (Vestby nord). Avkjøring fra Vestbyveien til høyre inn på Verpetveien ved Vestbysenteret/Holdbart.
| Parkering
Uteområder leveres med asfalterte adkomstveier og parkeringsplasser. Gode adkomstforhold for store kjøretøy.
| Standard
Bygget vil få nybyggstandard, etter dagens krav til tekniske løsninger. Bygget vil tilfredsstille alle miljømessige hensyn og krav. Kontorene får tidsmessig innredning, gjerne i samarbeid med leietaker. Om leietaker kommer tidlig inn i prosessen, vil man få gode muligheter til å påvirke utforming.
| Vedlegg til Salgsoppgaven
Plantegninger og utomhusplan.
| Lovanvendelse
Ved utleie vil meglers leiekontrakt bli benyttet. Husleielovens vil bare i begrenset utstrekning kunne påberopes av Leietaker. Kontakt vårt kontor for nærmere opplysninger og gjennomlesing av avtalen.
Utleier forbeholder seg her bl.a. retten til å kunne registrere utleievirksomheten i merverdiregisteret.
Eml. §§ 4-4, 6-2, 6-7, 6-10, 7-1 og 8-8 fravikes ved dette oppdraget.
Lov om hvitvasking
Eiendomsmeglere er underlagt lov om hvitvasking. Dette innebærer at oppdragsansvarlig har plikt til å melde fra til Økokrim om eventuelle mistenkelige transaksjoner.
Matrikkelinformasjon
Visning
Ta kontakt for å avtale visning.Metra Næringsmegling AS
Nærområdet
Annonseinformasjon
| FINN-kode | 444649803 |
|---|---|
| Sist endret | 05. jan. 2026 14:29 |
| Referanse | MTRA3.2426 |
Annonsene kan være mangelfulle i forhold til lovpålagt opplysningsplikt. Før bindende avtale inngås oppfordres interessenter til å innhente komplett informasjon fra meglerforetaket, selger eller utleier.







