Bildegalleri

Strandgaten 209 - Mulighet for rimelige kontorer på vakre Nordnes
Nøkkelinfo
- Areal
- 50 - 800 m²
- Kontorplasser
- 30
Type lokale
Fasiliteter
Om eiendommen
Hvorfor velge Strandgaten 209?
- Fleksible løsninger: Mulighet for opsjon på større areal
- Attraktiv beliggenhet: Sentrum og fremragende utsikt.
- God tilgjengelighet: Enkel adkomst og nærliggende parkeringsmuligheter.
- Fleksibel prising: Mulighet for å sikre seg kontorlokaler på gunstige vilkår
Om eiendommen
Strandgaten 209 tilbyr moderne og lyse kontorlokaler med en attraktiv beliggenhet og utsikt mot innseilingen til Bergen sentrum. Lokalene er fordelt over to etasjer og kan leies samlet eller delt etter behov:
- Plan 1: 580 m² med blant annet resepsjon, møterom, og kontorer.
- Plan 2: 235 m² med et stort antall kontorer og møterom.
Eiendommen holder en gjennomgående god standard, og lokalene kan overtas som de er eller tilpasses etter avtale for å møte leietakers spesifikke behov.
Fasiliteter
- Heis og interntrapp: Enkel forbindelse mellom etasjene.
- Tilpasningsmuligheter: Utleier er positiv til skreddersøm av lokalene.
- Flott sjøutsikt: Mange kontorer og møterom har enestående utsikt over innseilingen til Bergen.
Beliggenhet
Eiendommen har en sentral plassering med kort avstand til Bergen sentrum og enkel tilgang til transport og parkering:
- Offentlig transport: Nærhet til bybane, taxi, buss og hurtigbåtterminal.
- Parkering: Gode muligheter i umiddelbar nærhet, inkludert Klostergarasjen.
- Fasiliteter i området: Gangavstand til butikker, restauranter og andre sentrale tjenester.
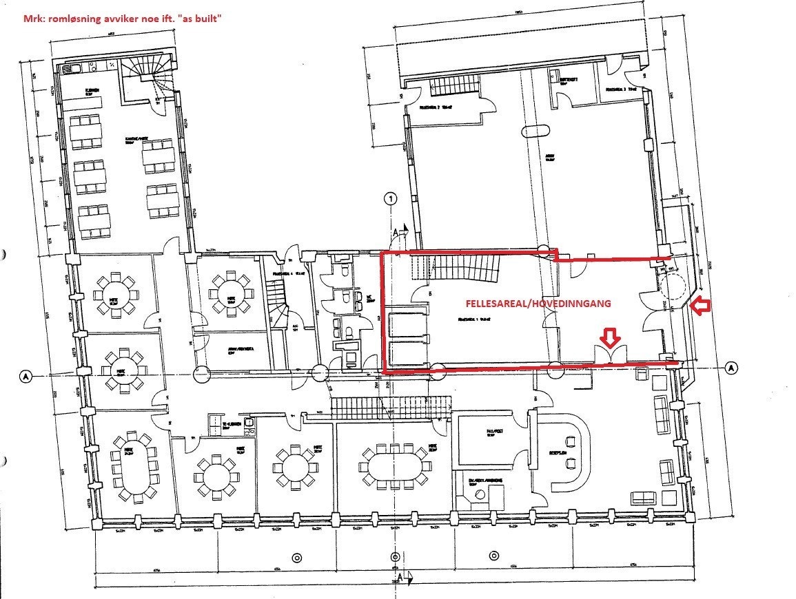
Detaljert arealoversikt
Plan 1: 580 m²
- Resepsjon
- Postrom/rekvisita
- 10 kontorer (flere egnet som grupperom/møterom)
- 2 store møterom
- Te-kjøkken
- Toaletter
- Lager/arkiv
Plan 2: 465 m²
- 8 kontorer (flere egnet som grupperom/møterom)
- 1 stort møterom
- Te-kjøkken
- Toaletter
- Lagerrom, arkivrom og rekvisitarom
For mer informasjon eller en uforpliktende visning, ta kontakt i dag!
Visning
Ta kontakt for å avtale visning.REGN NÆRINGSMEGLING AS
Nærområdet
Annonsene kan være mangelfulle i forhold til lovpålagt opplysningsplikt. Før bindende avtale inngås oppfordres interessenter til å innhente komplett informasjon fra meglerforetaket, selger eller utleier.














