Bildegalleri

Rimelige kombinasjonslokaler på Lahaugmoen
Nøkkelinfo
- Areal
- 742 m²
- Overtakelse
- Etter avtale
Type lokale
Kontor
Produksjon/Industri
Kombinasjonslokaler
Undervisning/Arrangement
Fasiliteter
Bredbåndstilknytning
Kjøreport
Om eiendommen
Kombinasjonsbygg blir ledig på Lahaugmoen.
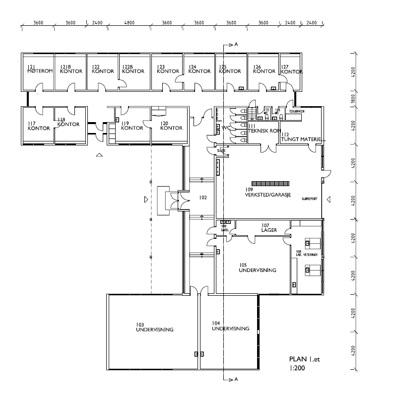
Her får du kontordel med ca. 10 stk cellekontor, samt produksjonsareler/verksted/lager.
Her får du kontordel med ca. 10 stk cellekontor, samt produksjonsareler/verksted/lager.
Beliggenhet
Adkomst til næringsparken er mellom Hvam og Gjelleråsen (skiltet avkjørsel fra RV 22 ved Hellerudsletta). Synsranden går fra Skedsmokorset, via Øyeren og Lillestrøm til Lørenskog.
Adkomst
Off.kom: Bussforbindelse ca. 10 min gangavstand. Lillestrøm Jernbanestasjon ca. 6 km unna.
Standard
Oppvarming: Elektrisk
Innhold
Lokalene består av en kontordel med ca. 10 cellekontorer, møterom og kjøkken.
Verksted/garasje med kjøreport
Lagerdel
Verksted/garasje med kjøreport
Lagerdel
Matrikkelinformasjon
Gårdsnr: 62
Bruksnr: 2
NB: Knappen for å vise hele beskrivelsen har kun en visuell effekt.
NB: Knappen for å vise hele beskrivelsen har kun en visuell effekt.
Visning
Ta kontakt for å avtale visning.Lahaugmoen AS
Anthon Eiendom AS
Nærområdet
Annonsene kan være mangelfulle i forhold til lovpålagt opplysningsplikt. Før bindende avtale inngås oppfordres interessenter til å innhente komplett informasjon fra meglerforetaket, selger eller utleier.













