Bildegalleri

Attraktive kontorlokaler eller helselokaler med umiddelbar nærhet til Holmlia Senter
Nøkkelinfo
- Areal
- 400 m²
- Etasje
- 4.
Type lokale
Kontor
Garasje/Parkering
Undervisning/Arrangement
Fasiliteter
Aircondition
Alarm
Garasje/P-plass
Heis
Om eiendommen
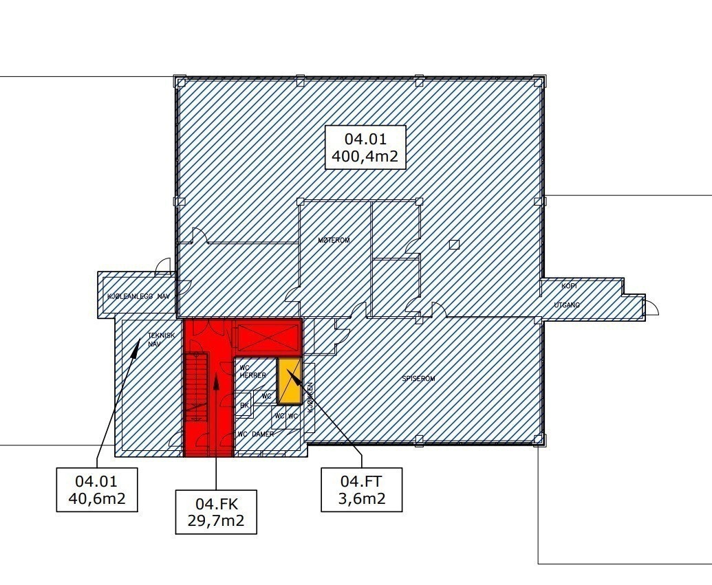
Kontorlokaler på ca. 400 kvm. Lokalene ligger luftig til i byggets toppetasje. Stort åpent område og 2-3 møte rom.
Eventuelle tilpassninger av lokalet kan gjøres i samråd med leietaker.
Eventuelle tilpassninger av lokalet kan gjøres i samråd med leietaker.
Beliggenhet
Bygget er sentralt lokalisert, med Holmlia Senter som nærmeste nabo.
Via gang-/sykkelvei tar det 4-5 minutter å gå til Holmlia Senter.
Fra Holmlia Senter er det rikelig med kollektivtilbud som tar deg enkelt dit du måtte ønske.
TOG:
Oslo S - 20 min
Ski - 25 min
Moss - 50 min
Fredrikstad - 1t 20min
BUSS:
Oslo S - 25 min
Ski - 45 min
BIL:
Oslo S - 15 min
Ski - 20 min
Via gang-/sykkelvei tar det 4-5 minutter å gå til Holmlia Senter.
Fra Holmlia Senter er det rikelig med kollektivtilbud som tar deg enkelt dit du måtte ønske.
TOG:
Oslo S - 20 min
Ski - 25 min
Moss - 50 min
Fredrikstad - 1t 20min
BUSS:
Oslo S - 25 min
Ski - 45 min
BIL:
Oslo S - 15 min
Ski - 20 min
Adkomst
Adkomst skjer enten via bil, da det er parkeringsplasser på eiendommen, eller via kollektivtilbudet til Holmlia Senter.
Innhold
Med tilnærmet 360 graders utsyn, gir lokalene en følelse av en lys og luftig tilværelse. Større deler av lokalene er i dag åpne, med muligheter for tilpasninger.
Det er innstallert flere glassvegger, hvor 3 møterom og spiserom er delvis adskilt fra det åpne området.
Lokalene har teppegulv, i tillegg til automatiske screens på utsiden av vinduene. Generelt fremstår lokalene som meget representable.
Det er innstallert flere glassvegger, hvor 3 møterom og spiserom er delvis adskilt fra det åpne området.
Lokalene har teppegulv, i tillegg til automatiske screens på utsiden av vinduene. Generelt fremstår lokalene som meget representable.
NB: Knappen for å vise hele beskrivelsen har kun en visuell effekt.
NB: Knappen for å vise hele beskrivelsen har kun en visuell effekt.
Visning
Etter avtale
Tress Eiendom
Vi skaper litt verdier hver dag
Nærområdet
Annonsene kan være mangelfulle i forhold til lovpålagt opplysningsplikt. Før bindende avtale inngås oppfordres interessenter til å innhente komplett informasjon fra meglerforetaket, selger eller utleier.













