Bildegalleri

Fleksible næringslokaler midt i Kongsvinger sentrum
Nøkkelinfo
- Areal
- 50 - 600 m²
- Byggeår
- 1972
- Overtakelse
- etter avtale
Type lokale
Fasiliteter
Om eiendommen
Fjellgata 2 ligger midt i Kongsvinger sentrum. Bygget er solid og ble i sin tid bygget til Den Norske Creditbank. Deler av fellesarealene er oppgradert, og det planlegges ytterligere oppgraderinger av fellesarealer.
Bygget har heis og hovedinngang fra gateplan i Fjellgata.
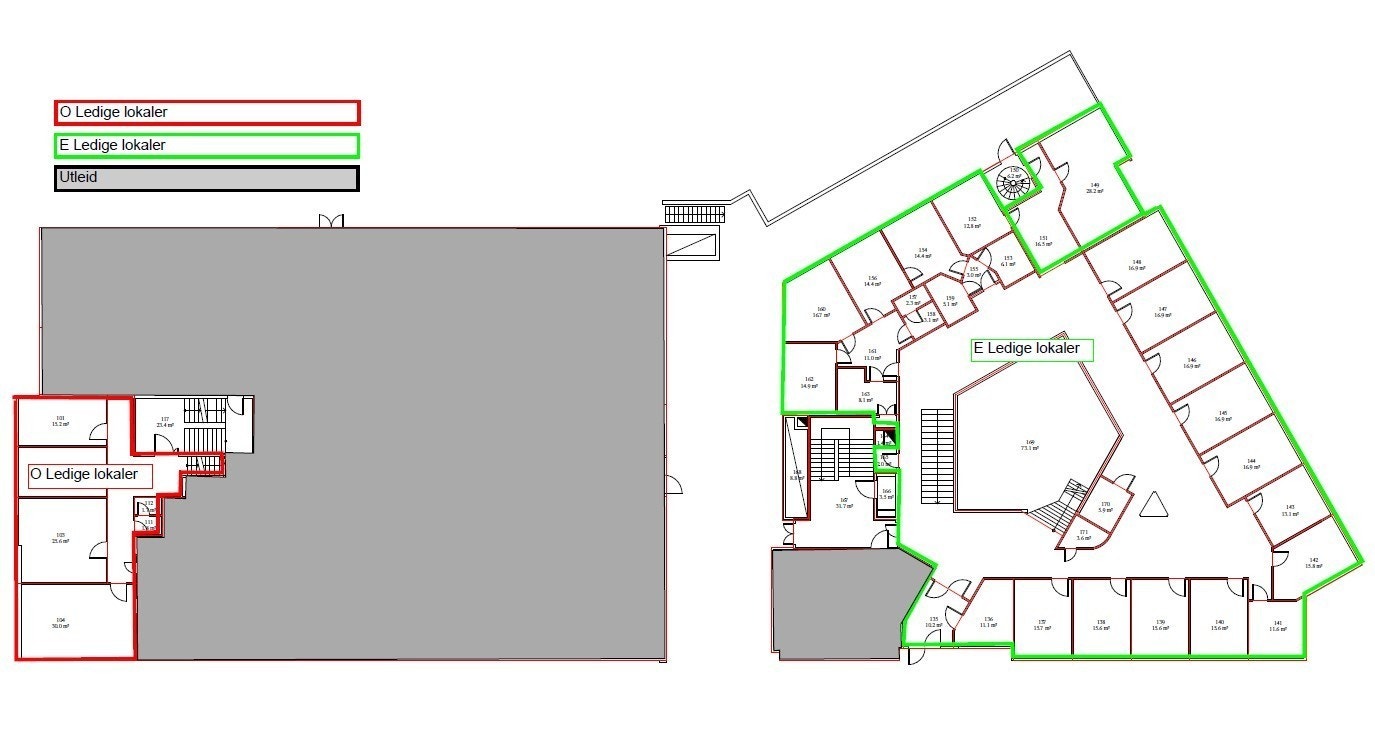
De ulike lokalene har varierende standard, og kan oppgraderes og tilpasses til leietakers behov. Det er flere ledige lokaler. Se bilder med tegninger for omfang og beliggenhet i bygget.
Kontakt Ole-Petter Jørgensen på mobil 901 35 936 for å avtale befaring.
Lokaler i plan 1:
O - lyse fine lokaler ut mot Tommelstadgate med inngang derfra. Disse lokalene ligger på et halvplan, og har kun adkomst via trapp (ikke adkomst til heis). Areal ca 112 kvm. Det er i tillegg et areal med lav takhøyde på et halvplan som kan benyttes til lager/ arkiv f.eks. Areal ca 27 kvm.
E – UTLEID TIL 01.09.2026.
Store lokaler med meget god eksponering og vinduer langs hele fasaden mot Storgata. Lokalene kan benyttes som butikklokaler, kontorlokaler med cellekontorer eller åpent landskap. Kan være mulig å dele inn noe, men krever da en leietager som trenger en større del av lokalene.
ETO - lyse fine lokaler med god eksponering mot Storgata og egen inngang derfra. Tidligere benyttet til butikkdrift. Arealer i plan 1 ca 180 kvm, det er i tillegg lokaler i kjeller som egner seg for lager etc. Tegninger kan fås på forespørsel.
Lokaler i plan 2:
M - lyse fine lokaler med fritt utsyn mot Tommelstadgate. Eget lite kjøkken. Ca 60 kvm.
N - idag inndelt til cellekontorer med egen korridor, men kan bygges om ved behov. Ca 105 kvm.
Lokaler i plan 3:
Alle lokaler i plan 3 er nå utleid.
Generelt:
Alle lokalene kan deles inn eller åpnes ytterligere dersom utforming ikke er passende for deres virksomhet. Vi har fått på plass flere nye leietakere det siste året.
Det er også muligheter for å leie lagerlokaler for egen virksomhet i byggets underetasje. Tilgjengelige garderobefasiliteter i kjellerens fellesarealer.
Gode parkeringsmuligheter på nærliggende offentlige parkeringsplasser i sentrum av Kongsvinger, begrenset tilgang på parkeringsplasser til leie i byggets bakgård.
Om Fjellgata 2 AS
Eiendommen eies av Fjellgata 2 AS som er et selskap i ØMF-konsernet.
Beliggenhet
Meget sentralt plassert i Kongsvinger med gangavstand til alle byens fasiliteter.
Adkomst
Godt synlig langs Storgata rett overfor Kongsvinger rådhus. Det er ca 10 minutter gange til Kongsvinger stasjon (tog).
Innhold
Matrikkelinformasjon
Visning
FJELLGATA 2 AS
Tine Rognlien/ Ole-Petter Jørgensen
Nærområdet
Annonseinformasjon
| FINN-kode | 444033039 |
|---|---|
| Sist endret | 02. jan. 2026 10:58 |
| Referanse | Annonsering FG2 |
Annonsene kan være mangelfulle i forhold til lovpålagt opplysningsplikt. Før bindende avtale inngås oppfordres interessenter til å innhente komplett informasjon fra meglerforetaket, selger eller utleier.






