Bildegalleri

Åshaugveien 186
E-18, Gullikrysset, Tønsberg - Lager - kombinasjonsbygg
Nøkkelinfo
- Areal
- 1 439 m²
- Bruttoareal
- 1 439 m²
- Tomt
- Eiet
- Overtakelse
- Eiendommen er ledig for overtakelse.
Type lokale
Beliggenhet
Eiendommen har en meget god og sentral beliggenhet med E-18, avkjøring nr. 35 - Gullikrysset i umiddelbar nærhet.
Kort avstand til alle Vestfoldbyene. Avstand Sandefjord Lufthavn Torp: 22 km., Larvik Havn: 39 km, Drammen Havn: 55 km.
Området er under utvikling. Det er ferdigregulert næringsområde mot nord på ca 25 dekar og det vil bli etablert vegserviceanlegg med bl.a. bensinstasjon, ladestasjoner, McDonald's.
Inneholder
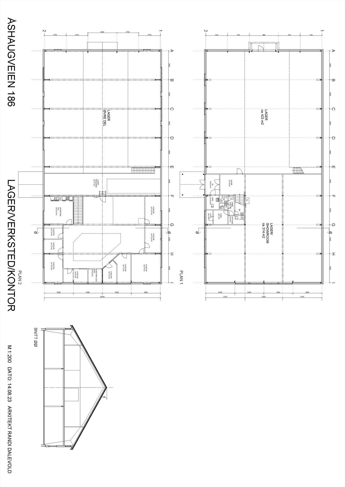
Ledig bygg er det gule bygget på eiendommen.
BTA ca. 1.439 kvm.
Inneholder:
Lager ca. 441 kvm. med takhøyde fra 5-9 m., elektriske leddheiseporter med direkte innkjøring.
Lager på messanin ca. 296 kvm. Inneholder: Lager, rullearkiv, 2 stk. lagerkontorer.
Lager - showrom under messanin, 2 stk. toaletter, hc-toalett, bøttekott. BTA. ca. 390 kvm. Takhøyde opp til drager 3 m.
Messanin:
BTA ca. 312 kvm.
Lager, showrom, kontor.
Lokalet tilpasses til leietakers behov.
Utgang til lager på messanin.
Mulighet for leie av uteareal etter nærmere avtale.
Parkering
Parkering på nærmere anviste plasser.
Bebyggelse
Eiendommen består av 3 næringsbygg, hovedsakelig lager med noe kontor. Gjenværende ledig bygg er Åshaugveien 186, gult bygg.
Mulighet for leie av tomt for utelager.
Matrikkelinformasjon
Visning
Ta kontakt for å avtale visning.Q4 Næringsmegling AS
Nærområdet
Annonseinformasjon
| FINN-kode | 443788303 |
|---|---|
| Sist endret | 31. des. 2025 09:08 |
| Referanse | QN4.2382 |
Annonsene kan være mangelfulle i forhold til lovpålagt opplysningsplikt. Før bindende avtale inngås oppfordres interessenter til å innhente komplett informasjon fra meglerforetaket, selger eller utleier.





















