Bildegalleri

God belysning i alle rom
Kr 30 000 per mnd! Kontorlokale - tidligere legekontor - Rives i 2028.
Nøkkelinfo
- Areal
- 373 m²
- Bruttoareal
- 373 m²
- Rom
- 1
- Byggeår
- 1951
Type lokale
Leies ut rimelig som følge av at leieperioden er begrenset til mai 2028.
Ønsker du kontorlokaler med god planløsning, lyse rom og sentral beliggenhet i Oslo? Nå har du muligheten til å leie nettopp det!
Lokalet er tidligere brukt som legekontor.
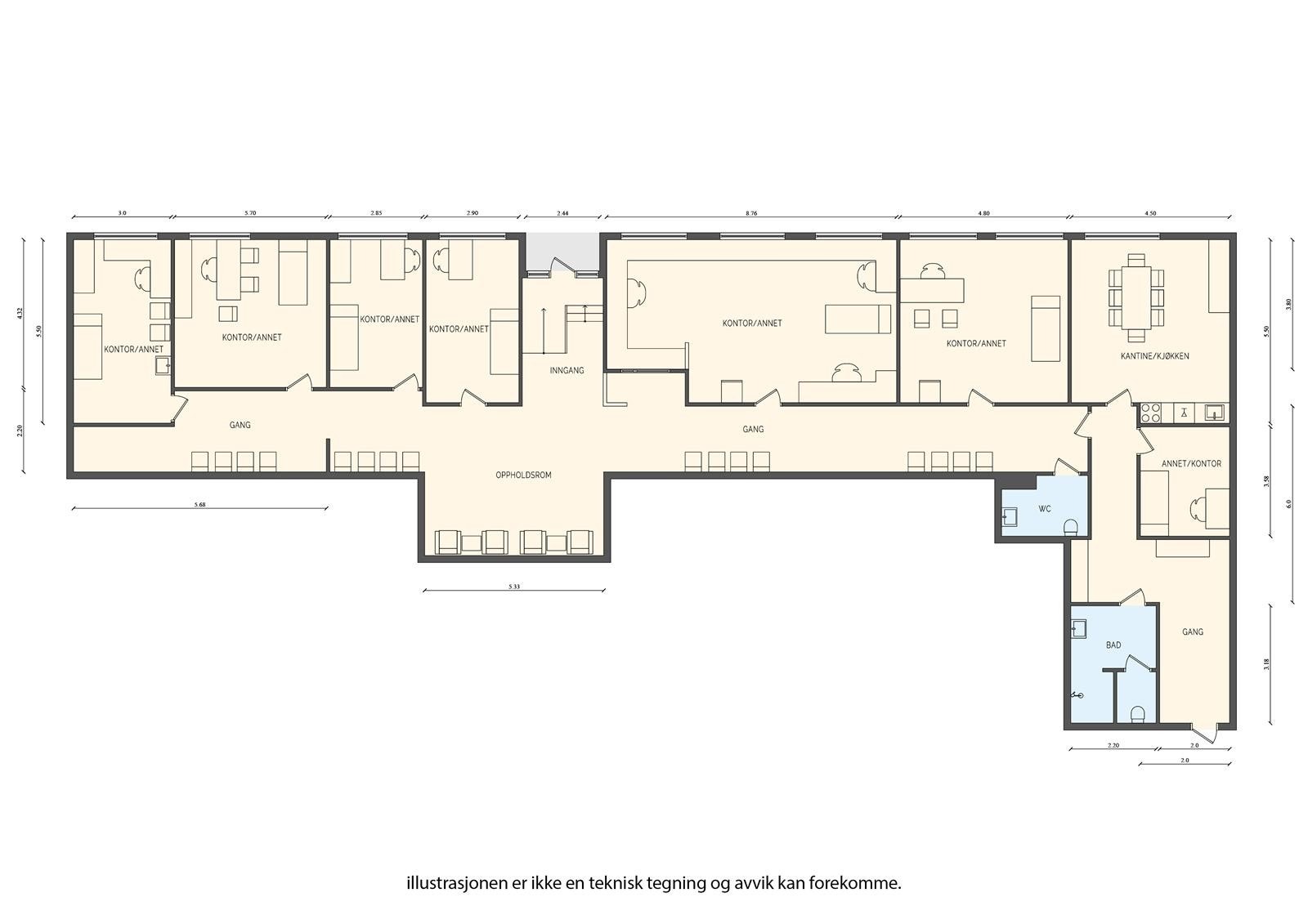
Om lokalet
Lokalene er funksjonelle og godt vedlikeholdt, og består av:
Flere kontor-/behandlingsrom i ulik størrelse
Stort oppholdsrom med mange sitteplasser
Fullt utstyrt kantine/kjøkken
Møterom og fleksible kontorplasser
Resepsjonsområde og venterom
Toalettfasiliteter og bad
God belysning og ventilasjon
Enkel adkomst via felles inngangsparti med rampe
Lokalene egner seg svært godt for helserelaterte virksomheter, men er også fleksible nok til bruk som kontor for andre bransjer som rådgivning, psykologer, terapeuter eller annen tjenesteyting.
Beliggenhet
Sandakerveien 78 ligger i et attraktivt område med enkel adkomst til både kollektivtransport (trikk og buss) og gode parkeringsmuligheter. Området har et pulserende byliv med kafeer, butikker og treningssentre like i nærheten.
Kort oppsummert
Ca. 350 kvm
Tidligere legekontor
Flere kontor-/behandlingsrom
Kjøkken/kantine og oppholdsrom
Egner seg godt for helse, rådgivning og kontor
Sentral beliggenhet på Sandaker
Ta kontakt for visning eller mer informasjon!
Beliggenhet:
Eiendommen ligger på Sandaker, midt i mellom Torshov og Nydalen.
I Sandakerveien 58 har du gangavstand til populære Torshov, parkområder i umiddelbar nærhet, samt Akerselva med turstier både mot sentrum og opp til Maridalsvannet.
Nydalen ligger like ved eiendommen, 5 minutter gange til Handelshøyskolen BI og Storo Storsenter (Oslos største kjøpesenter).
Nydalen har hatt en rivende utvikling de senere år og kan by på shopping, rekreasjon, bademuligheter, mikrobryggeri og et godt utvalg av kaféer og restauranter.
Kort avstand til Grünerløkka og Sagene - her har du alt av hyggelige kafeer, restauranter og yrende uteliv rett i nærheten.
Heimstaden er et av Europas ledende boligeiendomsselskap med rundt 159 000 boliger i ni land og en samlet eiendomsverdi på 330 milliarder svenske kroner. Vi kjøper, utvikler og forvalter utleieboliger i et evighetsperspektiv. Med bakgrunn i våre verdier Care, Dare, Share, skaper våre 1900 kollegaer hjem med omtanke for våre kunder og verdi for våre eiere.
Heimstaden tilbyr også et bredt utvalg av både store og små næringslokaler med sentral beliggenhet. Porteføljen består av blant annet matbutikker, restauranter, treningssentre, kontor og servicefasiliteter. Vi er opptatt av miljø og markedets utvikling, og ønsker leietakere med langsiktig perspektiv.
Se gjerne www.heimstaden.no for flere boliger og næringslokaler.
Vår Referanse: Sa78/N002
Matrikkelinformasjon
Visning

Heimstaden AS
Nærområdet
Annonseinformasjon
| FINN-kode | 443661761 |
|---|---|
| Sist endret | 11. mars 2026 10:29 |
| Referanse | L-Sa78/N002 |
Annonsene kan være mangelfulle i forhold til lovpålagt opplysningsplikt. Før bindende avtale inngås oppfordres interessenter til å innhente komplett informasjon fra meglerforetaket, selger eller utleier.









