Bildegalleri

Velkommen til Gullhaugveien 1-3
Moderne kontorlokaler med god utsikt og flott eksponering i umiddelbar nærhet til Nydalen T-banestasjon
Nøkkelinfo
- Areal
- 152 - 1 084 m²
- Tomt
- Eiet
- Energimerking
- C - Lysegrønn
Type lokale
Fasiliteter
Arealspesifikasjon
1. etg: 152 kvm Kontor, showroom, lager
1. etg: 292 kvm Kontor, kurs, showroom
2. etg: 292 kvm Kontor
3. etg: 1084 kvm Kontor
Beliggenhet
Gullhaugveien 1-3 med sin gjenkjennelige teglsteinsfasade, ligger flott eksponert i avkjøringen til Nydalsveien fra Sandakerveien, vis-a-vis Handelshøyskolen BI og Nydalen T-banestasjon- i hjertet av Nydalen.
Nærområdet oppleves som urbant, dynamisk og vel etablert, med en god mix av bolig og næring, handels- og opplevelsestilbud. Nydalen er en vellykket sammensmeltning av naturskjønnhet og urbane kvaliteter, bla. med vakre turstier langs Akerselva, samt et bredt spekter av handels- og servicetilbud. Innen kort gangavstand er et utvalg av spennende restauranter, Storo Storsenter med alt man trenger av handel-, service- og helsetilbud og Norges største kinosenter ODEON/IMAX.
Området har puls og en dynamisk atmosfære fra morgen til kveld, i tillegg til meget god kommunikasjon.
Leietakere i nærområdet er bla.:
NGI (Norges Geotekniske Institutt), Emma Systems, Buypass, Crayon, Elkjøp Norge, Ice, Squarehead Technology og mange flere.
Gullhaugveien 1-3:
Gullhaugveien 1-3 har sentral beliggenhet og et attraktivt fellesfasilitetstilbud.
I dag planlegges ytterligere oppgraderinger av fellesarealene som bla.:
Hovedinngangen flyttes:
Inngangspartiet flyttes fra Sandakerveien til inngang fra Gullhaugveien som peker mot Nydalen T-banestasjon.
Grepet gir bygget en mer naturlig flyt og adkomstmønster fra kommunikasjonspunktene i nærområdet. Synonymt med tiltaket vil uteområdene få et løft for en delikat inngangssituasjon som skal stå klart i løpet av August 2026.
Sykkelparkeringen:
Sykkelparkeringen skal oppgraderes med etablering av sykkelvask og servicestasjon - et verdsatt tilbud for syklende, spesielt på uværsdager.
Andre tiltak:
Av andre tiltak planlegges oppgradering av byggets dusj- og garderoberom, samt etablering av treningsfasiliteter i eiendommen.
Utendørsparkeringen planlegges omgjort til besøksparkering med korttidsbetaling for besøkende til eiendommen,
Øvrig har personalrestauranten fått et ordentlig løft. Restauranten som er etablert i 1. etasje har en lys, luftig og innbydende atmosfære, og god kontakt til glassatriet der byggets hovedinngang flyttes til. Restauranten driftes av Compass Group og har et attraktivt serveringskonsept, med varm mat, salatbar, påsmurt og trustshop mv. - et tilbud tilpasset den enkelte.
Inneholder
I Gullhaugveien 1-3 har vi attraktive, fleksible lokaler med god kontakt til- og utsikt til nærmiljøet:
3. Etasje - ca. 1 085 kvm BTA. (Delingsmulighet fra ca. 500 kvm BTA.).:
Arealene har åpen flater og gode siktlinjer, gode vindusflater som gir rikelig med dagslys til arbeidsplassene, samt hyggelig utsikt til nærområdet. Godt egnet for både åpne landskap, cellekontorer og teamkontorer er arealene fleksible i innredning, med god plass til de viktige støttefunksjonene man har behov for i hverdagen.
3. etasje har mulighet for deling i to mindre leieenheter, fra omtrentlig 500 kvm BTA.
- Eksempler til deling er vist i bildearkivet samt vedlagt som nedlastbare plantegninger i PDF.
2. Etasje - ca. 292 kvm BTA.:
Kontorene i 2.etasje er lyse og fine og pt. tilrettelagt kontorlandskap med god støtte av møte- og multirom/cellekontor.
Lokalet har god kontakt til byggets kjerne for heis og trappeløp, samt enkel adkomst fra eksisterende og ny hovedinngang.
Arealene er pent oppusset og har mulighet for overtakelse på kort varsel.
1. Etasje - ca. 292 kvm BTA.:
God plassering i første etasje og med god kontakt til byggets atrium.
Lokalene har direkte utgang til byggets personalrestaurant med sin gode atmosfære. i tillegg har arealet utgang til byggets felles varemottak som gjør disse godt egnet for både showroom-, og typisk nettlagervirksomhet, i tillegg til kontorvirksomhet.
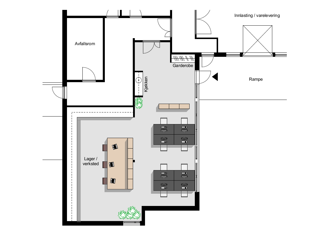
1. Etasje - ca. 152 kvm BTA.:
Lyse lokaler på plan 1. med direkte utgang til felles varemottak med lasterampe.
Med enkel fly t til varemottaket er arealene egnet for kontor, i tillegg til showroom og plukklager o.l.
Generelt om de ledige lokalene:
Tilgjengelige arealer i eiendommen kan skreddersys til den optimale løsningen for leietakeres virksomhet.
- Vedlagte planforslag viser eksempler til innredning av arealene.
- Plantegning av 2. etasje viser dagens omtrentlige utforming
Adkomst
Til Gullhaugveien er det meget enkel adkomst via offentlig kommunikasjon og Ring 3.
Bygget ligger omtrent på toppen av Nydalen T-banestasjon, med avganger for buss, flybuss, T-bane, tog og trikk innenfor gangavstand.
T-bane:
Fra Nydalen T-banestasjon er det 24 avganger i timen.
Ca. 9min. reisetid til Majorstuen, ca. 11min. Nationaltheatret og 12.min. til Oslo S.
Buss:
Bussforbindelser i alle retninger samt flybuss direkte til Oslo lufthavn Gardermoen.
Tog:
Gjøvikbanen har hyppige avganger til- og fra Nydalen med stopp ved Oslo S, Nationaltheatret og Skøyen stasjon.
Bil:
Fra eiendommen er det enkel tilgang til vegnettet, til Ring 3, E6 og E18.
Gullhaugveien har god parkeringsdekning som gjør adkomsten enkel via vegnettet
Bebyggelse
Gullhaugveien 1-3 ble opprinnelig oppført for Hjemmet Mortensen i 1996 og er totalt på ca. 12 700 kvm BTA. Bygget ble totalrehabilitert i 2012/14 og igjen i 2024.
Bygget har Energiklasse C (lys grønn).
Matrikkelinformasjon
Visning
Ta kontakt for å avtale visning.DNB Næringsmegling AS Avd Oslo
Nærområdet
Annonseinformasjon
| FINN-kode | 442952172 |
|---|---|
| Sist endret | 12. feb. 2026 09:37 |
| Referanse | DNN5.2511 |
Annonsene kan være mangelfulle i forhold til lovpålagt opplysningsplikt. Før bindende avtale inngås oppfordres interessenter til å innhente komplett informasjon fra meglerforetaket, selger eller utleier.






















