Bildegalleri

Fasade
Attraktive kontor- og forretningslokaler midt i Sarpsborg sentrum
Nøkkelinfo
- Areal
- 105 m²
- Bruttoareal
- 105 m²
- Tomteareal
- 322 m² (eiet)
Type lokale
Beliggenhet
Velkommen til Kirkegata 42 - et representativt og sentralt beliggende næringslokale i hjertet av Sarpsborg. Her tilbys fleksible kontor- og forretningslokaler med svært god synlighet og enkel tilgjengelighet..
Eiendommen har en attraktiv beliggenhet med kort gangavstand til offentlig transport, butikker, serveringssteder og øvrige servicetilbud. Dette gir både ansatte og kunder en effektiv og komfortabel hverdag. Beliggenheten i Kirkegata sikrer høy eksponering.
Lokalene fremstår lyse og funksjonelle, med gode planløsninger som kan tilpasses ulike behov
Dette er en unik mulighet til å etablere eller videreutvikle din virksomhet i et attraktivt område med solid kundestrøm og sentral beliggenhet.
Nærområdet
Nærområdet består av både butikker, servicetilbud, Kulåsparken, gågate, kino, boliger osv. Alt for enhvert smak. Kort vei til kommunikasjonsmider mm.
Adkomst
Kjør til Sarpsborg kirke, følg Kirkegata østover. Lokalene ligger straks på høyre side rett etter bensinstasjon.
Kort om eindommen
Kontor/forretningslokaler beliggende i sentralt i Sarpsborg sentrum. Meget god eksponering mot Kirkegata.
Innhold
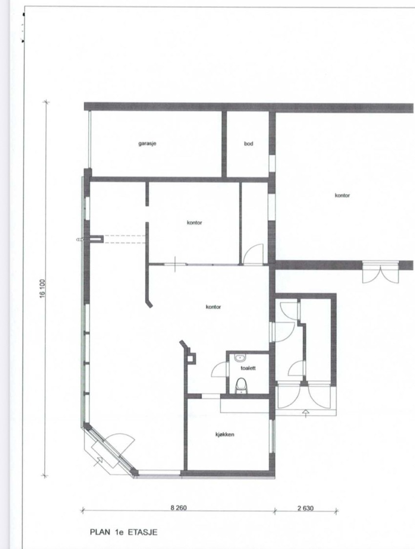
Lokalene inneholder:
Åpent areal, kontorer, et lite kjøkken, toalett/bad, møterom/kontor og arkivrom. Det er muligheter for ytterligere areal for riktig leietaker.
Det kan forekomme avvik på plantegning.
Areal
Bruttoareal: 105 kvm
Standard
Store vinduer og med god eksponering mot hovedvei. Lokalene har lyse vegger, parkettlaminat på gulv. Taket har hvitmalt gips og noe trepanel.
Oppvarming/kjøling/ventilasjon
Elektrisk oppvarming.
Parkering
Døgnpris parkering på plassen ved Jenseg kr.134 pr døgn, gratis etter kl.14.
Ellers er det mulig å leie plass på YX el.
Vei/vann/avløp
Offentlig tilknyttet.
Felleskostnader
Inngår i leien. Om man er avhengig av egen/spesiell renovasjonløsning så kommer det evt. i tillegg.
Leiepris
Kr. 12.900.- pr.mnd. inkl vann/kloakk/felleskostnader. Tilgangsnøkkel til nedgravde søppelkontainerne i Rosenkrantzgate.
Leietid
Etter avtale.
Partenes oppsigelsesadgang
Etter avtale.
Eiendommens betegnelse
Gnr. 1 Bnr. 545 i Sarpsborg kommune
Betalingsbetingelser/sikkerhet
Depositum/garanti må påregnes.
Overtagelse*
Overtagelse etter nærmere avtale med eier.
Lov om hvitvasking
Det følger av lov om tiltak mot hvitvasking og terrorfinansiering at meglerforetaket er forpliktet til å foreta kundetiltak av begge parter i handelen. For oppdragsgiver skjer dette i forbindelse med inngåelse av oppdraget, og for kjøper på tidspunkt for kontraktsinngåelse. Dersom slik kundekontroll ikke kan gjennomføres, er meglerforetaket pålagt å avstå fra gjennomføring av oppgjøret. Partene er selv ansvarlig for eventuelle kostnader og ansvar dette kan medføre uten at det kan anføres et kontraktsrettslig ansvar overfor meglerforetaket.
Personopplysninger
Som følge av meglerforetakets plikt til å oppbevare kontrakter og dokumenter i minst 10 år, jf. eiendomsmeglingsforskriften § 3-7 (3), er mulighetene for å få slettet personlige opplysninger som er formidlet til megler, begrenset. Du kan lese mer om vår personvernpolicy på våre hjemmesider, www.proaktiv.no.
Matrikkelinformasjon
Nyttige lenker
Proaktiv Eiendomsmegling Sarpsborg
Nærområdet
Annonseinformasjon
| FINN-kode | 442883995 |
|---|---|
| Sist endret | 25. des. 2025 03:09 |
| Referanse | 110250284 |
Annonsene kan være mangelfulle i forhold til lovpålagt opplysningsplikt. Før bindende avtale inngås oppfordres interessenter til å innhente komplett informasjon fra meglerforetaket, selger eller utleier.


















