Bildegalleri

Kontorer nær E6 og Lørenskog stasjon.
Nøkkelinfo
- Areal
- 300 - 1 000 m²
- Overtakelse
- 1.3.2024
Type lokale
Kontor
Fasiliteter
Bredbåndstilknytning
Garasje/P-plass
Heis
Kantine
Om eiendommen
Følgende arealer for utleie:
Ta kontakt for mer informasjon eller visning!
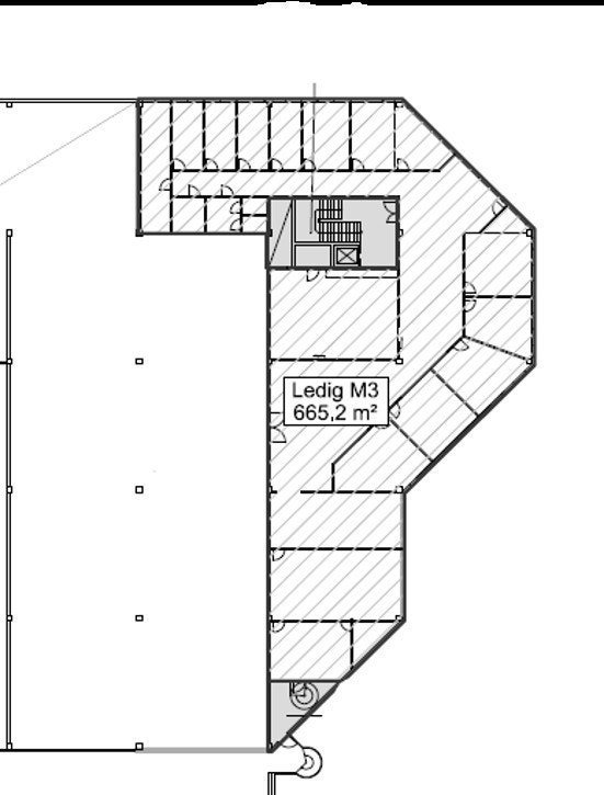
- 3. etg: Ca 695 kvm kontorer innredet primært med cellekontorer, møterom, showroom og kjøkken/spiserom.
- 4. etg: Ca 300 kvm kontorer innredet primært med cellekontorer og møterom.
- 4. etg: Ca 700 kvm kontorer innredet primært med cellekontorer og møterom. Kan utvides med ytterligere 300 kvm.
Ta kontakt for mer informasjon eller visning!
Beliggenhet
Beliggende i Norges nye knutepunkt for aktivitet og opplevelser med handel, næringsliv, innovasjon og inspirasjon!
Rett ved stasjonsbyen på Lørenskog etablerer vi verdens første bydel som har som mål å vise at lek, aktivitet, kunnskap og inspirasjon er forutsetninger for et godt liv. Prosjektet blir beskrevet som et av de mest innovative, kommersielle prosjekter som er blitt initiert i Norge noensinne. Snøbyen blir en levende bydel med for beboere og til vil bli et knutepunkt for næringsaktører innen blant annet sport og helse som ønsker å utveksle kunnskap og erfaringer. Bydelen vil by på alt fra nærings- og kunnskapspark til boliger, hotell og butikker, i tillegg til nye og innovative aktivitetskonsepter.
Eiendommen er svært sentralt beliggende ved E6 og R163 (Østre Akervei) og leieobjektet ligger sentralt i Snøbyen med inngang fra gateplan i Snøkrystallen samt direkte inngang fra Snølia. Det er enkel adkomst til byggets parkeringshus med bil og kort vei fra buss og Lørenskog stasjon.
Bydelen er under konstant utvikling og med et hurtig økende tilbud rundt fritid, aktivitet og kompetanse. Kontorer, aktivitetstilbud, butikker, hotell, konferansesenter er åpnet og mer er på vei.
Rett ved stasjonsbyen på Lørenskog etablerer vi verdens første bydel som har som mål å vise at lek, aktivitet, kunnskap og inspirasjon er forutsetninger for et godt liv. Prosjektet blir beskrevet som et av de mest innovative, kommersielle prosjekter som er blitt initiert i Norge noensinne. Snøbyen blir en levende bydel med for beboere og til vil bli et knutepunkt for næringsaktører innen blant annet sport og helse som ønsker å utveksle kunnskap og erfaringer. Bydelen vil by på alt fra nærings- og kunnskapspark til boliger, hotell og butikker, i tillegg til nye og innovative aktivitetskonsepter.
Eiendommen er svært sentralt beliggende ved E6 og R163 (Østre Akervei) og leieobjektet ligger sentralt i Snøbyen med inngang fra gateplan i Snøkrystallen samt direkte inngang fra Snølia. Det er enkel adkomst til byggets parkeringshus med bil og kort vei fra buss og Lørenskog stasjon.
Bydelen er under konstant utvikling og med et hurtig økende tilbud rundt fritid, aktivitet og kompetanse. Kontorer, aktivitetstilbud, butikker, hotell, konferansesenter er åpnet og mer er på vei.
Adkomst
Enkel adkomst fra E6 og E163. Gangsavstand til busser og Lørenskog stasjon med avgang hvert kvarter og 18 min reisetid til Oslo S. Parkeringsplasser rundt bygget, samt parkeringshus i Snøbyen.
Matrikkelinformasjon
Kommunenr: 3029
Gårdsnr: 106
Bruksnr: 133
NB: Knappen for å vise hele beskrivelsen har kun en visuell effekt.
NB: Knappen for å vise hele beskrivelsen har kun en visuell effekt.
Visning
Etter avtale
Nyttige lenker
Snøbyen
Livet er best i bevegelse
Nærområdet
Annonseinformasjon
| FINN-kode | 442540394 |
|---|---|
| Sist endret | 17. mars 2026 10:10 |
| Referanse | Kontor L2 |
Annonsene kan være mangelfulle i forhold til lovpålagt opplysningsplikt. Før bindende avtale inngås oppfordres interessenter til å innhente komplett informasjon fra meglerforetaket, selger eller utleier.




















