Bildegalleri

Lager- og kombinasjonsbygg til leie sentralt i Hønefoss, Gigstads vei 13
Nøkkelinfo
- Areal
- 770 m²
- Tomteareal
- 3 400 m²
- Kontorplasser
- 1
- Overtakelse
- 1.6.2026
Type lokale
Fasiliteter
Om eiendommen
Attraktiv eiendom med god beliggenhet på Eikli, Hønefoss sør. Kort vei til sentrum, E16 og Rv35. Eiendommen har stor gårdsplass med gode adkomstforhold for varetransport, samt flere porter og fleksible lagersoner.
- Mulighet for oppdeling eller tilpasning etter leietakers behov.
- Bruttoareal: ca. 770 m2.
- Tomtestørrelse: ca. 3 400 m²
- Stor parkerings- og oppstillingsplass.
- God eksponering mot Gigstads vei.
Beliggenhet
Gigstads vei 13 ligger i et etablert næringsområde på Hønefoss vest, omgitt av bilverksteder, lager, kontorer og nye boligprosjekter.
Kort avstand til sentrum, E16 mot Oslo/Gardermoen og Rv7 mot Hallingdal. Området har god infrastruktur og enkel tilkomst.
Standard
- Flere porter for enkel adkomst til lagerhallene
- Delvis asfaltert gårdsplass med gode manøvreringsforhold
- Mulighet for oppdeling eller tilpasning etter leietakers behov
- Enkel standard, men funksjonelt bygg med varierende takhøyde
- Egen kontordel med kjøkken, wc og sosial sone
Innhold
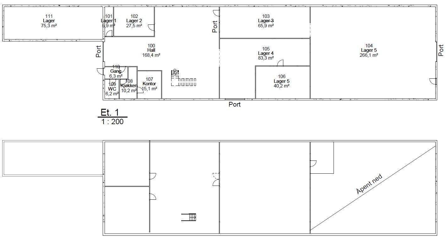
Bygget har et samlet areal på ca. 770 m² fordelt på to plan, og består av:
- Hall: ca. 168 m²
- Lagerrom: flere rom på hhv. 27,5 m², 40,2 m², 65,9 m², 75 m², 83,3 m², 168 m² og 266 m²
- Kontor: ca. 15 m²
- Kjøkken/kantine: ca. 10 m²
Andre etasje består av åpent areal med potensial for kontor, mesaninlager eller personalrom.
Visning
Ta kontakt for å avtale visning.Nyttige lenker
Hensmoveien 20 AS
Nærområdet
Annonsene kan være mangelfulle i forhold til lovpålagt opplysningsplikt. Før bindende avtale inngås oppfordres interessenter til å innhente komplett informasjon fra meglerforetaket, selger eller utleier.


















