Bildegalleri

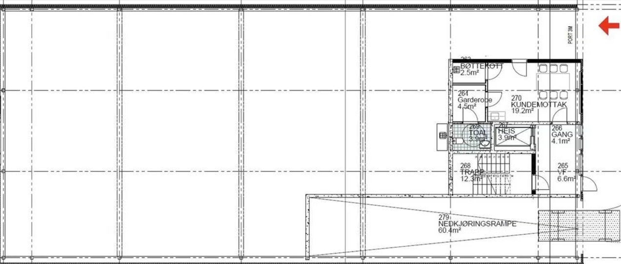
Lager med god takhøyde ca. 6,60 m (ca. 5,6 m under drager) og mulighet for resepsjon/kundemottak. Lageret er på ca. 440 kvm.
Alna/Bryn: Moderne lager og kontor - Parkeringskjeller
Nøkkelinfo
- Areal
- 1 250 m²
Type lokale
Fasiliteter
Om eiendommen
Fleksibelt og moderne kombinasjonslokale
Eiendommen tilbyr en effektiv og funksjonell planløsning over flere plan:
Underetasje: Egen parkeringskjeller med plass til ca. 15 biler.
1. etasje: Romslig lager på ca. 440 kvm med svært god takhøyde, ca. 6,60 m (ca. 5,6 m under drager). Arealet gir også mulighet for etablering av resepsjon eller kundemottak.
2. etasje: Moderne kontorarealer bestående av åpent landskap, cellekontorer, kjøkken, garderober og to WC.
Bygget er oppført i henhold til TEK10.
Beliggenhet
Standard
Visning
Ta kontakt for å avtale visning.Malling & Co Næringsmegling AS
Nærområdet
Annonsene kan være mangelfulle i forhold til lovpålagt opplysningsplikt. Før bindende avtale inngås oppfordres interessenter til å innhente komplett informasjon fra meglerforetaket, selger eller utleier.












