Bildegalleri

Kontorer rett på Nationaltheatret i fullservice bygg med fantastisk utsikt.
Nøkkelinfo
- Areal
- 140 - 959 m²
- Byggeår
- 2004
- Energimerking
- C - Mørkegrønn
Type lokale
Beskrivelse
Stortingsgata 6 – Et arealeffektive og moderne kontorlokaler sentralt i Oslo sentrum med Stortinget som nærmeste nabo.
Etasje 6
Attraktive kontorlokaler med flott utsikt – sentralt ved Nationaltheatret
Etasjen er godt egnet for åpent kontorlandskap, med tilhørende teamkontor og tre romslige møterom.
I bakkant av lokalet finner du en skjermet og innbydende sosial sone med kjøkken. Lokalene holder en god kontorstandard og har rikelig med naturlig lys. Alt ligger til rette for en funksjonell og trivelig arbeidshverdag.
- Type Kontor
- Antall arbeidsplasser 20 — 25
- Leieareal 469 kvm
- Ledig fra Q3 2026
- Egnet til Kontorlandskap og Aktivitetsbaserte arbeidsplasser
- Standard Det vil legges opp til en god standard
Etasje 5
Attraktive kontorlokaler med flott utsikt – sentralt ved Nationaltheatret
Areal effektiv etasje med høy kontorstandard og rikelig lysinnslipp fra alle fire himmelretninger.
Lokalene har en balansert kombinasjon av cellekontorer, teamkontorer, møterom og stillerom. I bakkant av lokalet finner du en hyggelig, avskjermet sosial sone med tilhørende kjøkken – et naturlig samlingspunkt for pauser og uformelle samtaler.
- Type Kontor
- Antall arbeidsplasser 40 — 50
- Leieareal 959 kvm
- Ledig fra Q3 2026
- Egnet til Kontorlandskap
- Standard Det vil legges opp til en god standard
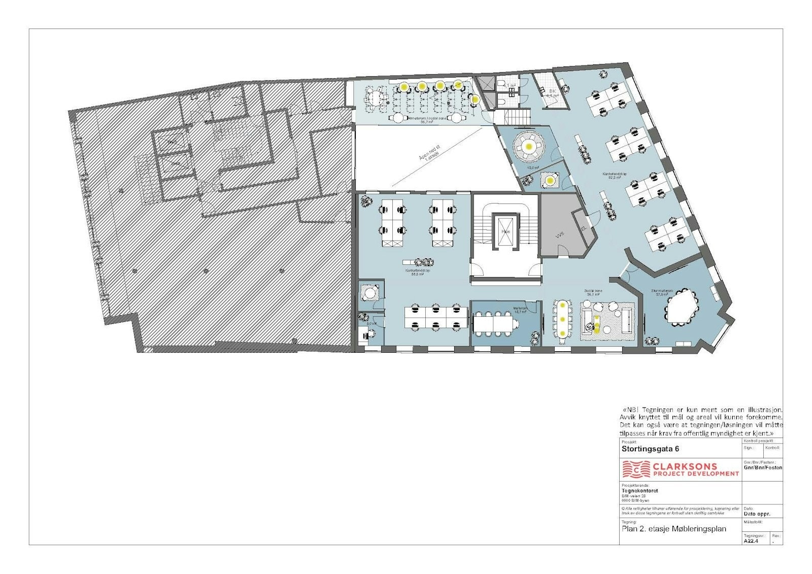
Etasje 2
Kontorlokalet er optimalt strukturert for aktivitetsbaserte arbeidsplasser
Lokalet tilbyr en balansert kombinasjon av åpne landskap, møterom, stillerom og skjermede sosiale soner – noe som gir rom for både konsentrert arbeid og uforstyrrede pauser.
- Type Kontor
- Antall arbeidsplasser 20 — 25
- Leieareal 713 kvm
- Ledig fra Etter avtale
- Egnet til Kontorlandskap
- Standard Det vil legges opp til en god standard
Etasje 1. - UTLEID
Kontorlokalet er optimalt strukturert for aktivitetsbaserte arbeidsplasser
Flott kontorlokale på bakkeplan med svært god takhøyde og store vinduer. Tilpasses etter leietakers ønske.
- Type Kontor
- Antall arbeidsplasser 10 — 12
- Leieareal 140 kvm
- Ledig fra Etter avtale
- Egnet til Kontorlandskap
- Standard Det vil legges opp til en god standard
Etasje 7 - UTLEID
Velkommen til unike kontorlokaler med høy standard, privat takterrasse og rikelig lysinnslipp fra flere retninger.
Lokalene har en gjennomtenkt planløsning med en god balanse mellom åpent landskap, teamkontor og møterom. Det finnes to romslige møterom samt mulighet for å etablere 2–3 telefonbokser.
Fra inngangspartiet kommer man inn i en hyggelig sosial sone som egner seg godt til pauser og uformelle samtaler. Lokalet kan nås direkte fra heisen med egen inngang ut mot den private takterrassen. Alternativt er det adkomst via trapperommet inn til den sosiale sonen.
- Type Kontor
- Antall arbeidsplasser 15 — 20
- Leieareal 382 kvm
- Ledig fra Q3 2026
- Egnet til Kontorlandskap, Aktivitetsbaserte arbeidsplasser og Teamkontor
- Standard Det vil legges opp til en god standard
Bygget
Stortingsgaten 6 er et moderne kontorbygg over syv etasjer, totalrehabilitert og utvidet med nybygg i 2004. Bygget har et samlet areal på 6.700 kvm. Første etasje huser Thunes showroom, mens øvrige etasjer benyttes til kontorer. Eiendommen tilbyr fasiliteter som personalrestaurant (oppusset i 2021), sykkelparkering, dusj og garderobe i underetasjen. I 2022 ble det etablert et nytt og innbydende inngangsparti fra Rosenkrantzgate, med god takhøyde og moderne uttrykk.
Fasiliteter
- Kantine
- Garderobe
- Smartbygg
- Dusj
- Sykkelparkering
- Håndkleservice
Område
Eiendommen ligger på et av Oslos mest profilerte gater, med direkte utsyn mot Oslos viktigste og mest sentrale byrom med umiddelbar nærhet til Stortinget og Nationaltheatret.
Området byr på et bredt utvalg av butikker, kaféer, restauranter og kulturtilbud.
Eiendommen har umiddelbar nærhet til både Stortinget og Nationaltheatret stasjoner, med tilgang til T-bane, trikk, buss, tog, Flytoget og båtforbindelser fra Aker Brygge.
Offentlig transport
Buss
Ca. 3 minutter gange til busstoppet på Wessels plass
Linje: 30, 31, 37, 70, 70E, 81Trikk
Ca. 3 minutter gange til trikke holde plassen Kontraskjæret
Linje: 12T-bane
Ca. 5 minutter gange til t-bane stasjonen på Nationaltheatret
Linje: 1, 2, 3, 4, 5Tog
Ca. 5 minutter gange til Nationaltheatret stasjon
Visning
Ta kontakt for å avtale visning.Nyttige lenker
Akershus Eiendom AS
Nærområdet
Annonsene kan være mangelfulle i forhold til lovpålagt opplysningsplikt. Før bindende avtale inngås oppfordres interessenter til å innhente komplett informasjon fra meglerforetaket, selger eller utleier.





















