Bildegalleri

Lager-/verksted i Narviga
Nøkkelinfo
- Areal
- 130 m²
Type lokale
Fasiliteter
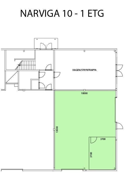
Om eiendommen
Sentralt og attraktivt lager sentralt i Narviga blir ledig fra nyttår.
Eiendommen kort oppsummert:
Ca 130 kvm lager/høytlager
God takhøyde - 4,5 meter.
Mulighet for en mindre kontordel i etasjen rett over lageret ved behov.
Godt med parkeringsplasser
Strategisk lokasjon supersentralt rett ved E18.
Overtakelse: Q1 2026
Naboer i umiddelbar nærhet er blant andre Carrier, Sector Alarm, Mizuno, Stryntrappen, Motek, 4Subsea, Glamox og Meny Albert.
Ta kontakt for en hyggelig prat/visning.
Ånund Lunde Gruppen er ett av Sørlandets tradisjonsrike private utleieselskap av bolig, næring og lager. Våre eiendommer holder god standard, og våre dyktige medarbeidere sørger for tett oppfølging og god service.
Matrikkelinformasjon

Ånund Lunde Eiendom AS
Nærområdet
Annonsene kan være mangelfulle i forhold til lovpålagt opplysningsplikt. Før bindende avtale inngås oppfordres interessenter til å innhente komplett informasjon fra meglerforetaket, selger eller utleier.











