Bildegalleri

8B8A5002.jpg
Innflytningsklare og tiltalende kontor lokaler til leie ved knutepunkt Gulskogen.
Nøkkelinfo
- Tomt
- Eiet
Type lokale
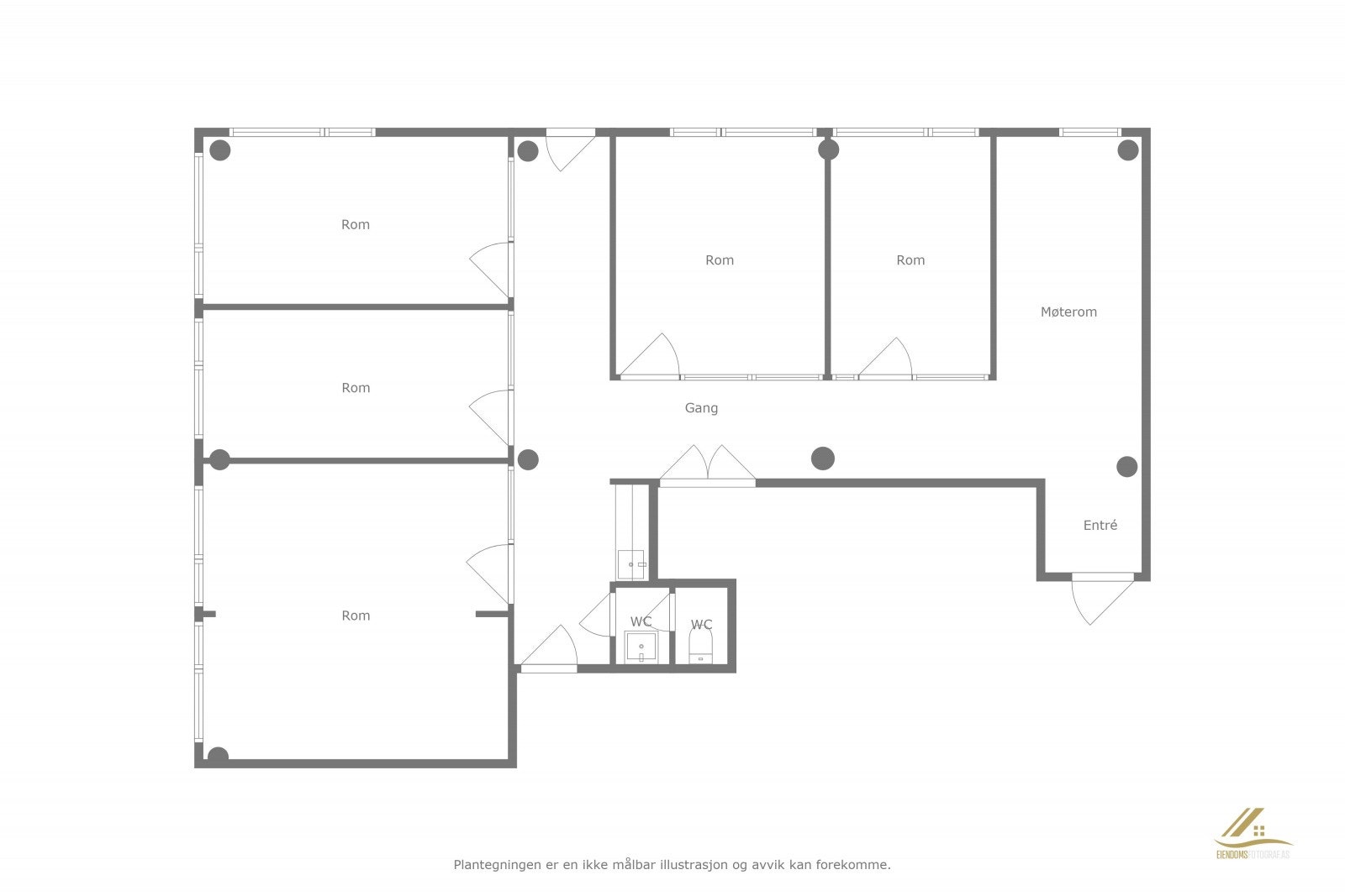
Beskrivelse
Vi har nå ledig attraktive kontorlokale;
1.etg ca 172 kvm.
2. etg ca. 200 kvm.
Lokalene har en fleksibel planløsning med både cellekontorer og åpent landskap, og kan tilpasses etter leietakers ønsker og behov.
Fasiliteter og standard:
God standard med moderne ventilasjon og kjøling
Mulighet for kantineløsning
Lyse og trivelige lokaler
Gårdeier tilbyr skreddersydd tilpasning
Beliggenhet:
Eiendommen ligger sentralt i Nedre Eikervei 65, med kort vei til Gulskogen stasjon og enkel adkomst til hovedveinettet.
Parkering:
Det er gode parkeringsmuligheter for ansatte og besøkende på eiendommen.
Dette er et flott alternativ for bedrifter som ønsker representative og funksjonelle kontorer i et sentralt område.
Matrikkelinformasjon
Visning
Ta kontakt for å avtale visning.Buskerud Næringsmegling AS
Jens-Petter Frøiland
Pål Gurrik
Nærområdet
Annonseinformasjon
| FINN-kode | 442156254 |
|---|---|
| Sist endret | 16. des. 2025 13:01 |
| Referanse | BUNM1.2527 |
Annonsene kan være mangelfulle i forhold til lovpålagt opplysningsplikt. Før bindende avtale inngås oppfordres interessenter til å innhente komplett informasjon fra meglerforetaket, selger eller utleier.












































