Bildegalleri

Fasade etter rehabilitering
Sentrale romslige butikk-og kontorlokaler til leie
Nøkkelinfo
- Areal
- 40 - 2 700 m²
- Kontorplasser
- 40
- P-plasser
- 70
- Renovert år
- 2025
Type lokale
Kontor
Butikk/Handel
Produksjon/Industri
Lager/Logistikk
Kombinasjonslokaler
Fasiliteter
Bredbåndstilknytning
Garasje/P-plass
Kjøreport
Om eiendommen
Det gamle Topp Auto bygget rehabiliteres utvendig og innvendig i disse dager og vil fremstå som et meget attraktivt nytt næringskvartal så snart arbeidet er ferdig. Rema 1000 og 4Sound er allerede på plass. Vi ønsker nå gjerne å komme i kontakt medleietagere som har behov for butikk, kontor eller industrilokaler (kontor og industri i 2. etg).
Som en av de meget få sentrumseiendommer i Gjøvik er det godt med parkeringsareal tilknyttet eiendommen på ca 5 mål.
Samlet ledig areal for utleie er 2 000 m2
Som en av de meget få sentrumseiendommer i Gjøvik er det godt med parkeringsareal tilknyttet eiendommen på ca 5 mål.
Samlet ledig areal for utleie er 2 000 m2
Beliggenhet
Strandgata 16 ligger kun et par hundre meter fra Gjøvik Rådhus og har Gjøvik gårds grønne lunge som nærmeste nabo.
Adkomst
Eiendommen ligger ca 250 meter fra jernbanestasjonen og buss-stasjonen på Gjøvik. Det er rikelig med ansatt-/kundeparkering tilknyttet eiendommen (ca 70 parkeringsplasser)
Innhold
Beliggende i Gjøvik sentrum, med nærhet til offentlig kommunikasjon og alle sentrumsfasiliteter. En av få eiendommer i sentrum med god parkeringsdekning.
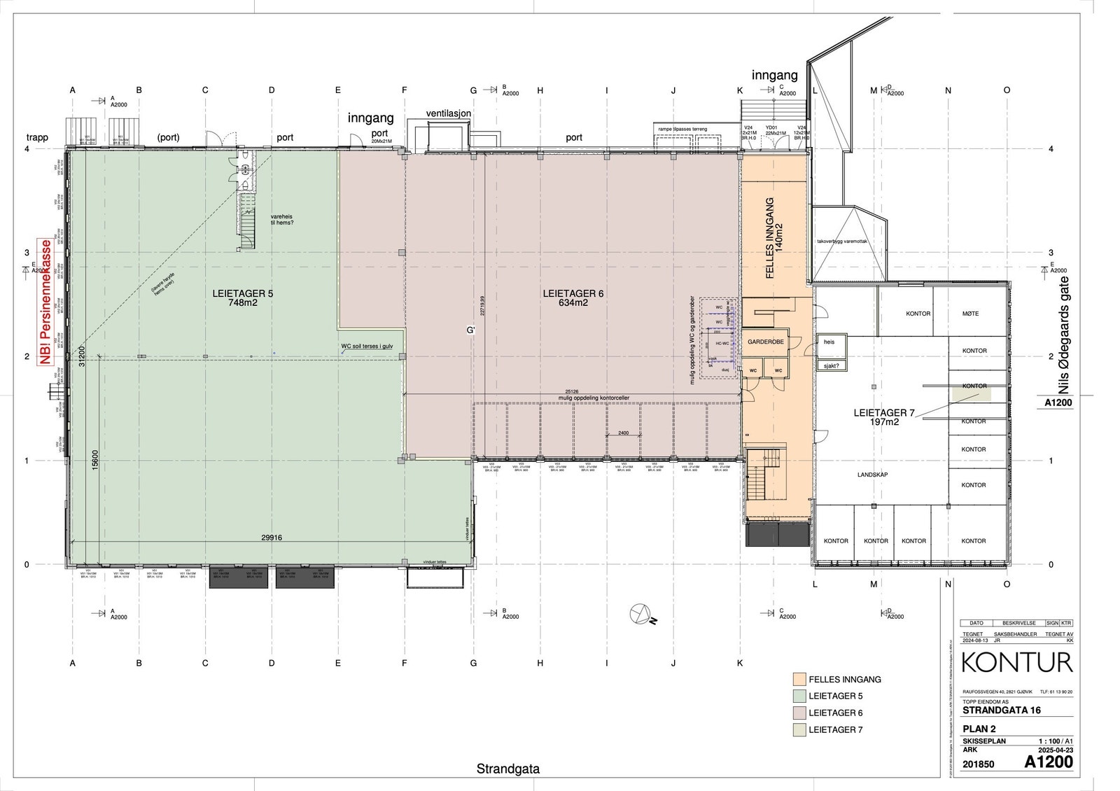
I plan 1 er det ledig butikklokale på ca 200 m2.
I plan 2 er det 1800 m2 tilgjengelig for kontor/lager/industri/verksted. Lokalene kan tilpasses ut fra leietagers behov og ønsker.
NB: Knappen for å vise hele beskrivelsen har kun en visuell effekt.
NB: Knappen for å vise hele beskrivelsen har kun en visuell effekt.
Visning
Ta kontakt for å avtale visning.Nyttige lenker
Strandgata 16 Gjøvik AS
Nærområdet
Annonseinformasjon
| FINN-kode | 442007485 |
|---|---|
| Sist endret | 15. des. 2025 11:56 |
| Referanse | x11.06.25,ESx |
Annonsene kan være mangelfulle i forhold til lovpålagt opplysningsplikt. Før bindende avtale inngås oppfordres interessenter til å innhente komplett informasjon fra meglerforetaket, selger eller utleier.






















