Bildegalleri

Fasade.
MJØNDALEN. Kontorer til leie. Sentralt beliggende inntil E134.
Nøkkelinfo
- Areal
- 9 - 1 400 m²
- Byggeår
- 2013
- Overtakelse
- Omgående
Type lokale
Fasiliteter
Om eiendommen
Moderne næringsbygg med svært sentral beliggenhet i Mjøndalen, rett ved E134. Bygget holder høy teknisk standard og gir meget gode arbeidsforhold med vannbåren varme, isvannskjøling og gode solskjermingsløsninger.
Fleksible løsninger – fra enkeltkontorer til større sammenhengende arealer. (Pris etter avtale ved leie av større arealer)
Ledige lokaler:
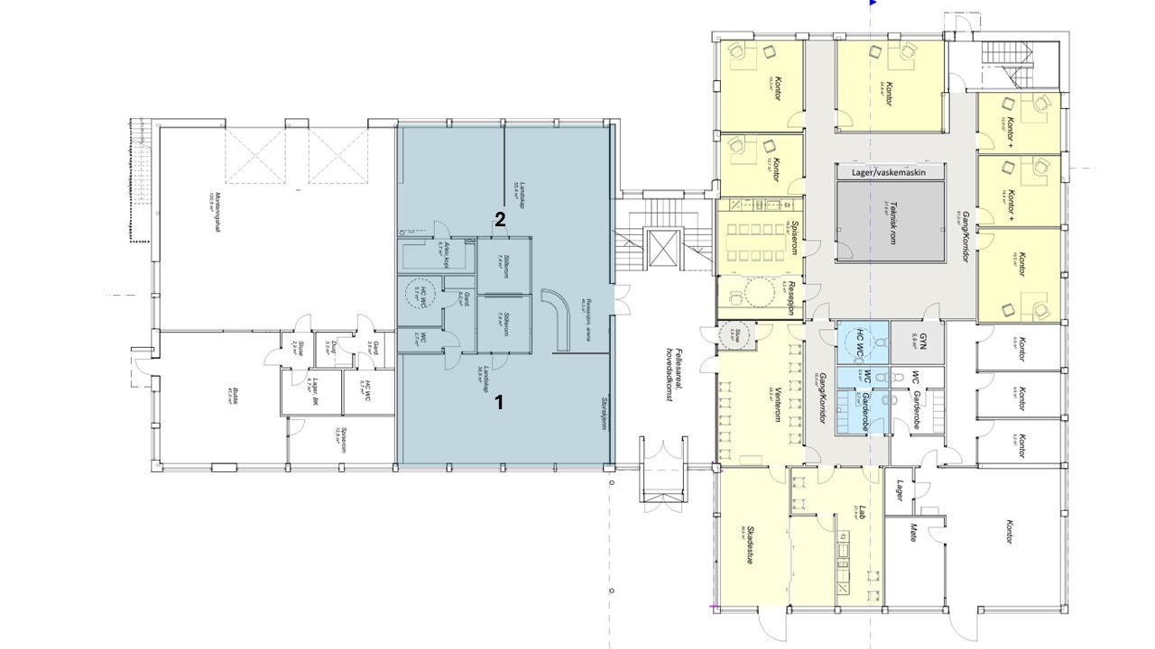
1. etasje
- Lokale på ca 230 kvm inkl andel fellesareal. Lokalet kan deles som vist på plantegning.
Pris: Etter avtale.
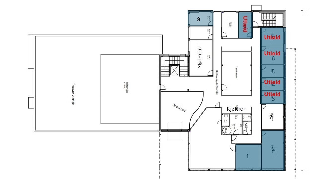
2. etasje
086: Cellekontor i indre kjerne, ca. 10 kvm. Pris: kr 3 600 + mva pr. mnd (alt inkludert)
41: Cellekontor 9,6 m² (1–2 arbeidsplasser) Pris: kr 4 600 + mva pr. mnd (alt inkludert)
110: Cellekontor 9,6 m² (1–2 arbeidsplasser) Pris: kr 4 600 + mva pr. mnd (alt inkludert)
109: Cellekontor 9,6 m² (1–2 arbeidsplasser) Pris: kr 4 600 + mva pr. mnd (alt inkludert)
107/108: Cellekontor 20 m² ( 1-4 arbeidsplasser) Pris: kr 9200 + mva pr. mnd (alt inkludert)
3. etasje
1: Kontor 21,5 m² (1–3/4 arbeidsplasser) Pris: kr 9 900 + mva pr. mnd (alt inkludert)
2: Kontor 28 m² (1–6 arbeidsplasser) Pris: kr 12 900 + mva pr. mnd (alt inkludert)
3: Utleid.
4: Utleid
- 5: Kontor 9,6 m² (1–2 arbeidsplasser) Pris: kr 4 800 + mva pr. mnd (alt inkludert)
6: Reservervet. Kontor 13,5 m² (1–2 arbeidsplasser)Pris: kr 6 500 + mva pr. mnd (alt inkludert)
7: Utleid.
8: Kontor 9,6 m² (1–2 arbeidsplasser) Pris: kr 4 700 + mva pr. mnd (alt inkludertt)
9: Kontor 9,6 m² (1–2 arbeidsplasser) Pris: kr 4 700 + mva pr. mnd (alt inkludert)
Fasiliteter for leietakere
I Strandveien får du full fleksibilitet og høy komfort, inkl.:
24/7 tilgang via egen app
Felles moderne kjøkken med egen kaffeavtale
Fri bruk av stort møterom
Vannbåren gulvvarme
Isvannskjøling på ventilasjon
Meget godt inneklima, sommer som vinter
Rikelig med parkering på eiendommen
Gode profileringsmuligheter mot E134
- Renhold
- Fiber
Våre leietakere
Et stort mangfold av virksomheter understreker byggets attraktivitet og fleksibilitet:
Nedre Eiker Legesenter • DNB Eiendom • Meny • Fiskeruta • Huber • Narvesen Revisjon • Runex • VAS •
Rør System • CT Arita Group • Flyt Digital • Mjøndalen Kiropraktorklinikk • Støren Treindustri • Alog AS •
Oslo Revisjon • Sanntidsregnskap • A-Å Regnskap • Pro Arkitekt • Riis Bilglass • Norrvik • Scandinavian Sertification •
IV Produkt • Silent Ink • Taksystemer • Parterapeut og Sexolog Johnsen • Arkhi • Accord Industries • BM Takst m.fl.
* Bygget har rammetillatelse for et påbygg med intill 2 etasjer slik at 300- 1400 kvm kan tilbyes i nytt påbygg for en eller felre leioetakere.
Ta kontakt for mer informasjon eller for å avtale visning. Nye etasjer i påbygg kan skreddersys etter behov.
Beliggenhet
Eiendommen har en av Mjøndalens beste eksponeringsmuligheter med profilering mot E134, hvor ca. 20 000 biler passerer daglig (ÅDT).
Adkomst
Svært enkel adkomst fra E134. Eiendommen ligger ved Shell og hovedinnkjøringen til Mjøndalen.
Buss: Holdeplass grenser til eiendommen
Tog: Gangavstand til Mjøndalen stasjon (buss- og taxiholdeplass)
Standard
Lavenergibygg
Vannbåren varme
Ventilasjon med kjøling
Solskjerming på utsatte fasader
Varmepumpeanlegg med energibrønner
Et godt inneklima sommer som vinter
Matrikkelinformasjon
Visning
Strandveien 37-41 As
Nærområdet
Annonseinformasjon
| FINN-kode | 441585400 |
|---|---|
| Sist endret | 05. feb. 2026 19:29 |
| Referanse | Henning Bermingrud |
Annonsene kan være mangelfulle i forhold til lovpålagt opplysningsplikt. Før bindende avtale inngås oppfordres interessenter til å innhente komplett informasjon fra meglerforetaket, selger eller utleier.
























