Bildegalleri

Fleksibelt næringslokale ved Bøler Senter – perfekt for kontor, helse, handel eller lager
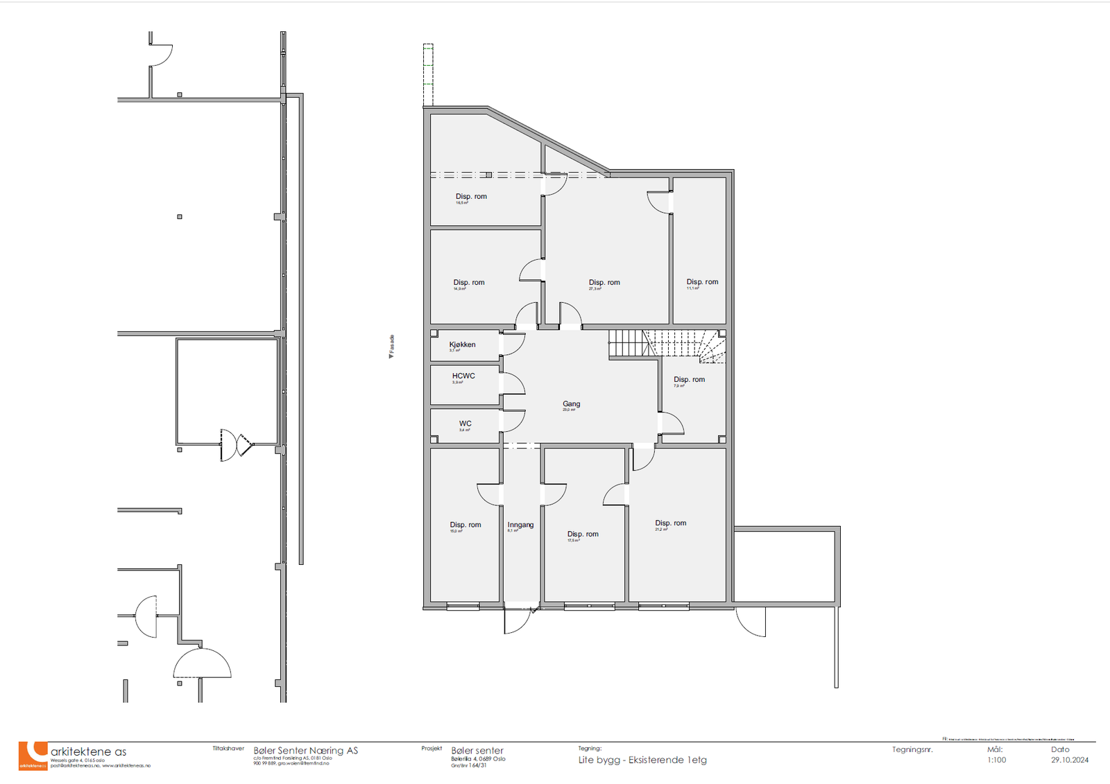
Nøkkelinfo
- Areal
- 225 m²
- Etasje
- 1.
Type lokale
Andre
Kontor
Butikk/Handel
Produksjon/Industri
Lager/Logistikk
Kombinasjonslokaler
Kjøpesenter
Serveringslokale/Kantine
Undervisning/Arrangement
Fleksibelt næringslokale ved Bøler Senter – perfekt for kontor, helse, handel eller lager
Dette arealet ligger rett utenfor Bøler Senter og gir en sjelden kombinasjon av synlighet, enkel adkomst og fleksibel bruk. Lokalet har tidligere vært benyttet som legekontor, men egner seg like godt til kontor, showroom, behandlings-/helserelatert virksomhet, butikk, eller mindre lager/logistikk.
Lokalet byr på:
- Praktisk planløsning som kan tilpasses ulike konsepter
- Kort avstand til kollektivtransport og gode parkeringsmuligheter
- Trygg og etablert beliggenhet med jevn kundestrøm
- Umiddelbar nærhet til servicetilbud på Bøler Senter
Et godt valg for virksomheter som ønsker en tilgjengelig og effektiv base i et attraktivt boligområde.
- Innflytting: Ledig nå
- Beliggenhet: Bøler senter
- Offentlig transport: 3 minutters gange til Bøler T-banestasjon
Interessert i å høre mer om muligheten?
Ta kontakt for en uforpliktende prat.
NB: Knappen for å vise hele beskrivelsen har kun en visuell effekt.
NB: Knappen for å vise hele beskrivelsen har kun en visuell effekt.
Visning
Ta kontakt for å avtale visning.Malling & Co Næringsmegling AS
Nærområdet
Annonseinformasjon
| FINN-kode | 441468211 |
|---|---|
| Sist endret | 12. des. 2025 09:38 |
| Referanse | 693ac42b8b593bb436778c65 |
Annonsene kan være mangelfulle i forhold til lovpålagt opplysningsplikt. Før bindende avtale inngås oppfordres interessenter til å innhente komplett informasjon fra meglerforetaket, selger eller utleier.









