Bildegalleri

Myrens Verksted 2
Myrens Verksted - fleksible kontorlokaler i attraktive omgivelser langs Akerselva
Nøkkelinfo
- Areal
- 300 - 3 000 m²
Type lokale
Fasiliteter
Om eiendommen
Ledige lokaler på Myrens Verksted, eid av Myren Eiendom AS. Området er historisk kjent fra fabrikken Myren Verksted som ble grunnlagt i 1848, og var arbeidsplass for fabrikkarbeidere i over 100 år. Området er i dag næringslokaler fordelt over 12 bygg, bestående av restaurerte opprinnelige bygg, påbygg og nyere bygg. Her finnes løsninger for både små og store bedrifter.
I dag har Myrens Verksted et av Oslos største og mest inspirerende miljø innen film og produksjon, og også tunge og store fagmiljøer i så vel offentlig sektor som tradisjonell nærings- og industriell virksomhet.
Du skal alltid føle deg varmt velkommen på Myrens Verksted, både som besøkende og som leietaker.
Beliggenhet
Midt i hjertet av Myrens Verksted på Torshov, sentralt ved Ring 2. En pulserende næringspark med historie og sjarm rett ved Akerselva, omringet av grøntområde og trivelige boligsameier.
På området finnes Myrens Sportssenter, Klatreverket og Crossfit Sagene for et bredt utvalg av treningsmuligheter. Gangavstand til dagligvare, butikker og kaféer.
Adkomst
Enkel adkomst med bil eller offentlig kommunikasjon.
Innhold
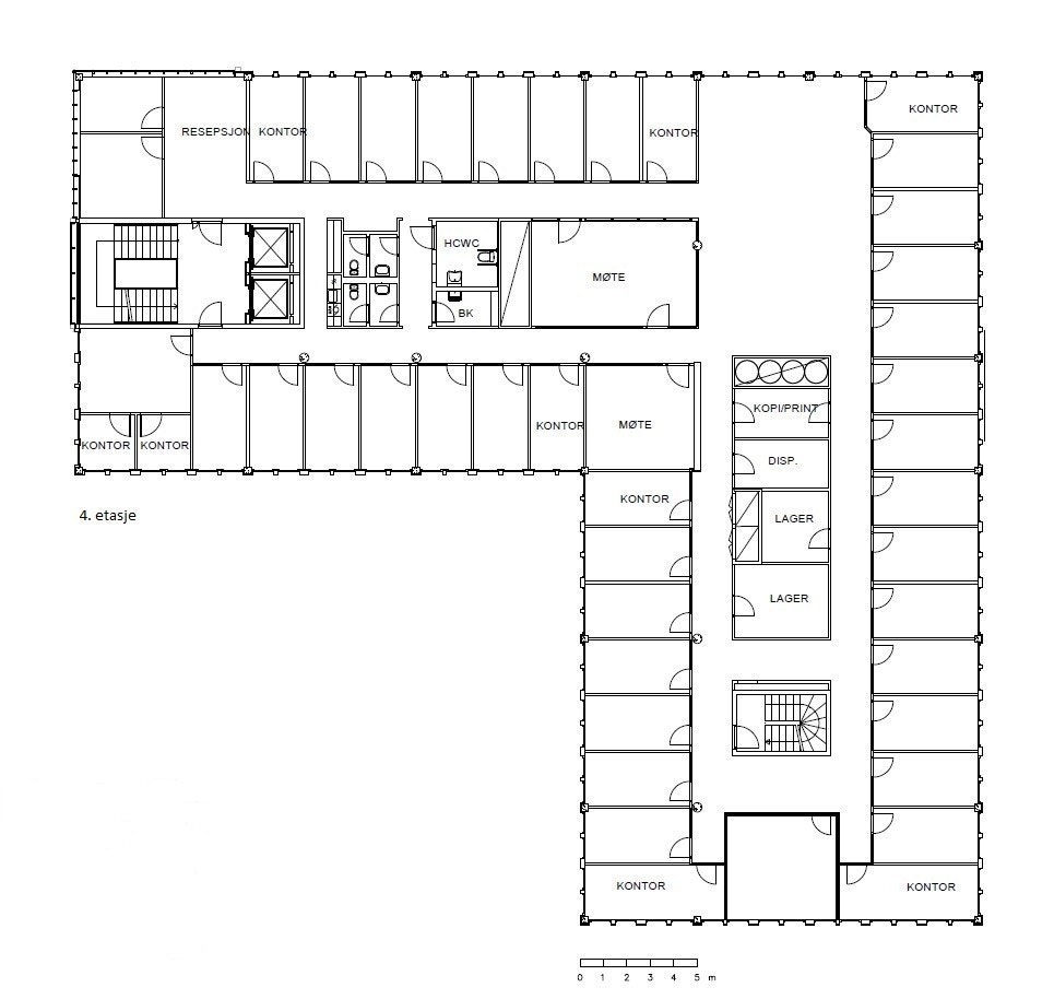
Ledige lokaler over tre etasjer med stor fleksibilitet. Hver etasje er på ca 1100 m2.
Lokalene består av en mengde cellekontorer med plass til 1 til 2 personer, flere møterom, kjøkken og toaletter. De fleste rommene har store vinduer som gir mye dagslys, og lokalene fremstår som lyse og trivelige.
I bygget finnes en felles takterrasse der man kan nyte lunsjen sin i solen.
Lokalene kan etter avtale med gårdeier tilpasses ulike behov, og vil være ledige fra 2026.
Visning
Ta kontakt for å avtale visning.Nærområdet
Annonseinformasjon
| FINN-kode | 441130804 |
|---|---|
| Sist endret | 09. des. 2025 09:37 |
| Referanse | Myrens Verksted 2 |
Annonsene kan være mangelfulle i forhold til lovpålagt opplysningsplikt. Før bindende avtale inngås oppfordres interessenter til å innhente komplett informasjon fra meglerforetaket, selger eller utleier.
















