Bildegalleri

Dyrmyrgata 48
Kontorlokaler i Dyrmyrgata 48
Nøkkelinfo
- Areal
- 404 m²
- Internt bruksareal
- 404 m² (BRA-i)
- Eksternt bruksareal
- 373 m² (BRA-e)
- Etasje
- 2.
Type lokale
Kontor
Fasiliteter
Aircondition
Alarm
Bredbåndstilknytning
Garasje/P-plass
Heis
Om eiendommen
Kontorlokaler til leie i Dyrmyrgata 48.
Lokalet ligger i 2. etasje, og kan tilpasses etter leietakers ønsker og behov.
Tilgang til resepsjon, fellesmøterom, kantine (i Dyrmyrgata 47) og trimrom. Felles parkeringsplasser rett utenfor og i parkeringskjeller.
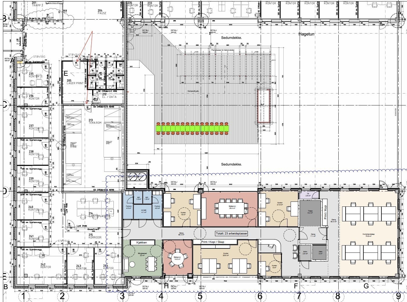
Lokalet er i dag er grålokale og innredes etter leietakers ønske og behov. Plantegning er bare et forslag på hvordan lokalet kan utnyttes.
Lokalet ligger i 2. etasje, og kan tilpasses etter leietakers ønsker og behov.
Tilgang til resepsjon, fellesmøterom, kantine (i Dyrmyrgata 47) og trimrom. Felles parkeringsplasser rett utenfor og i parkeringskjeller.
Lokalet er i dag er grålokale og innredes etter leietakers ønske og behov. Plantegning er bare et forslag på hvordan lokalet kan utnyttes.
Beliggenhet
Eiendommen ligger sentralt øverst i Dyrmyrgata, 6-7 min. gange fra Kongsberg knutepunkt.
Innhold
Kontorlokaler innredes etter leietakers ønske og behov.
Plantegning er kun et forslag og kan justeres etter leietakers ønske.
Plantegning er kun et forslag og kan justeres etter leietakers ønske.
Matrikkelinformasjon
Kommunenr: 3303
Gårdsnr: 8007
Bruksnr: 5
NB: Knappen for å vise hele beskrivelsen har kun en visuell effekt.
NB: Knappen for å vise hele beskrivelsen har kun en visuell effekt.
Visning
Ta kontakt for å avtale visning.PK Eiendom AS
Nærområdet
Annonsene kan være mangelfulle i forhold til lovpålagt opplysningsplikt. Før bindende avtale inngås oppfordres interessenter til å innhente komplett informasjon fra meglerforetaket, selger eller utleier.





