Bildegalleri

Fasade
Rimelige og flotte kontorlokaler i Havnelageret | Mulighet for korttidsleie - Ledig nå!
Nøkkelinfo
- Areal
- 980 m²
- Etasje
- 1.
- Byggeår
- 1916
- Renovert år
- 2017
- Energimerking
- Overtakelse
- Omgående
Type lokale
Fasiliteter
Om eiendommen
Langkaia 1A, Oslo Havnelager, er et ikonisk bygg i hjertet av Oslo Sentrum. Oslo Havnelager er et monument over sjøfartens enorme utvikling under og etter første verdenskrig, opprinnelig oppført i perioden 1916-1920 for å lagre varer fra hele verden. I senere tid har bygget gjennomgått flere omfattende utvendige og innvendige rehabiliteringer og er i dag et kontorbygg på 39 477 over 10 etasjer, som huser flere leietakere som bl.a. Eniro, Retriever, Bohr, Thales Norway og Forsvaret.
Fasiliteter:
- Felles resepsjon
- Kaffebar
- Narvesen Kiosk
- Frisør
- Stor felles kantine med egne møtesone
- Treningsrom med garderobe og dusj
- Flott terasse
- Sykkelparkering i kjeller
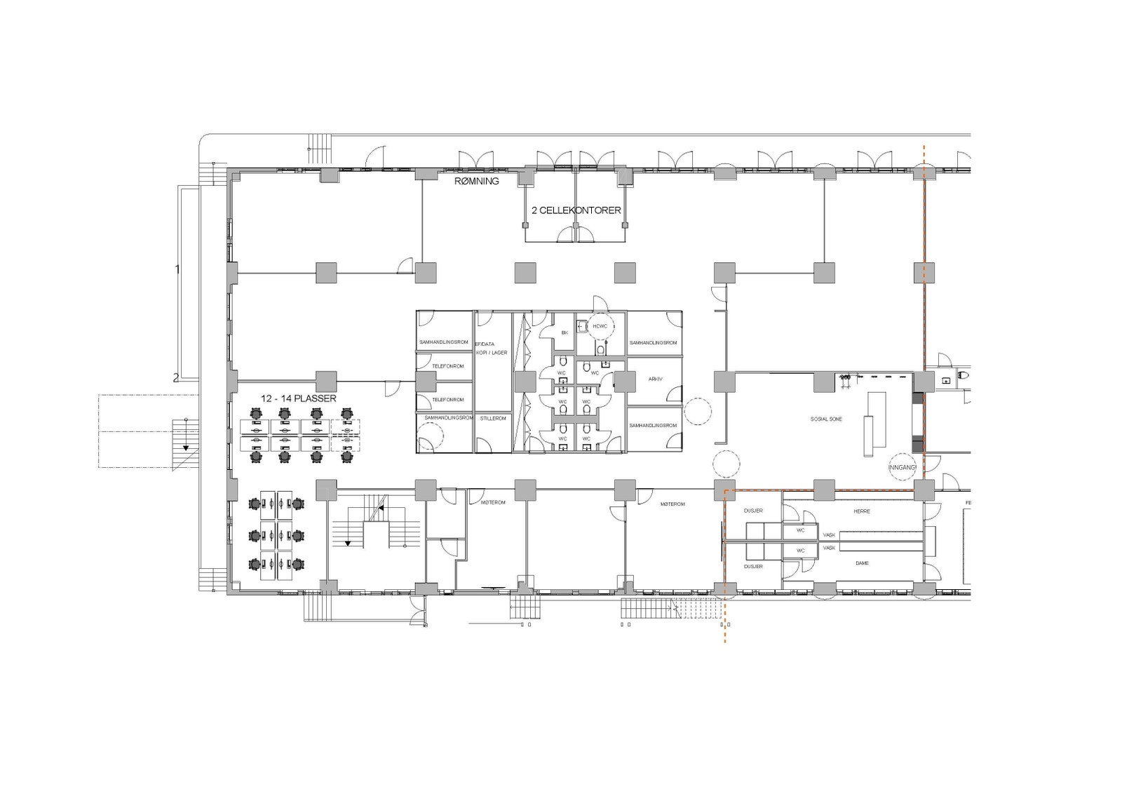
1. etasje | 980 kvm - Ledig omgående
Dagens rominndeling består hovedsakelig av åpent landskap, med tilhørende støttefunksjoner som stille- og møterom naturlig plassert i kjernen av lokalet.
Lokalet har en flott kombinasjon av gode takhøyder og vindusflater på flere sider, som skaper lyse og luftige lokaler.
Øvrig holder lokalet gjennomgående god standard og kan overtas "as is".
Beliggenhet
Adkomst
Havnelageret ligger strategisk plassert på Oslo Havn, hvor alt av kollektiv finnes lett tilgjengelig i en behagelig gangavstand:
- Gangavstand til Norges største kollektivknutepunkt, Oslo Sentralstasjon, hvor alt av buss, trikk, t-bane og tog finnes
- Gangavstand til Oslo Bussterminal og Bjørvika
- Sykkelparkering på eiendommen
- Tilgjengelig parkering rett utenfor eiendommen med flere P-hus i området
Visning
Nyttige lenker
CBRE
Nærområdet
Annonsene kan være mangelfulle i forhold til lovpålagt opplysningsplikt. Før bindende avtale inngås oppfordres interessenter til å innhente komplett informasjon fra meglerforetaket, selger eller utleier.
















