Bildegalleri

Til Leie - Lagerlokaler "White Box Leveranse" på ca 923 m² under oppføring på Grini Næringspark
Nøkkelinfo
- Areal
- 923 m²
- Bruttoareal
- 923 m²
- Tomteareal
- 9 666 m² (eiet)
- Byggeår
- 2025
Type lokale
Ansvarlig megler
Eirik Werner Frøytlog
Avdelingsleder/eiendomsmegler
Kort om eiendommen
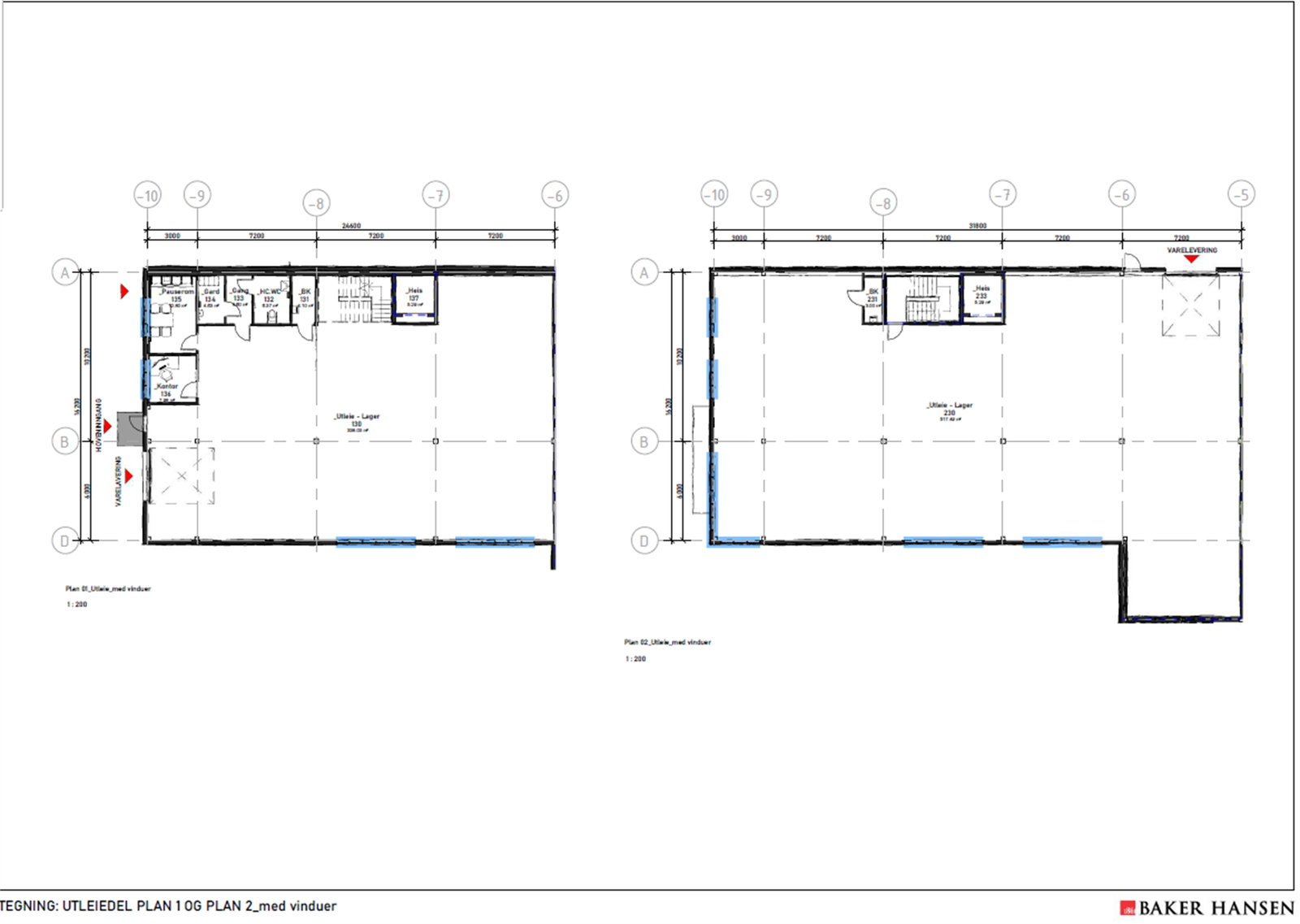
Baker Hansen er i gang med å utvide sitt bygg i Grini Næringspark 7, og vi har gleden av å tilby et helt nytt næringslokale til utleie med et areal på ca 923 m². Forventet ferdigstillelse i løpet av 2 kvartal 2026.
Utleielokalene er fordelt på to plan og inneholder blant annet et lager på ca 338 m² i 1. etasje og lager på ca 540 m² i 2. etasje. I tillegg inneholder lokalene kontor, pauserom, garderobe og wc. Det er garasjeport for varelevering i hver etasje og oppkjøring til 2.etg bak bygget.
Leietaker vil disponere 5 parkeringsplasser, én av disse er HC-parkering. Det er mulighet for å leie flere parkeringsplasser etter avtale.
Lokalene ligger i Grini Næringspark, et etablert næringsområde med god profilering mot trafikkerte Griniveien. Her er det kort vei til Oslo sentrum, og eiendommen har enkel adkomst til hovedfartsårer som E18 og E16. Lokalet er under utbygging, noe som gir potensielle leietakere mulighet til å påvirke utformingen og skape lokaler som passer perfekt for deres behov.
Beliggenhet
Eiendommen ligger i Grini Næringspark, langs Griniveien i Bærum kommune. Omkringliggende område består av boligområder og marka. Næringsparken ligger ca 15 minutter fra Oslo sentrum og er lett tilgjengelig fra Ring 3, E18 og E16. Av nærmeste naboer nevnes blant annet Jula, Europris, Leos' Lekeland, Rush Trampolinepark, Padel, XL bygg og Plantasjen.
Reguleringsforhold
Eiendommen ligger i et område som iht. eldre reguleringsplan datert 14.05.2003 er regulert til industri, lager, forretning.
Reguleringsformål er: industri, lager, forretning (arealkrevende produkter som for eksempel biler, kjøkkeninnredning, møbler, engroshandel, servicevirksomhet.)
Parkering
Leietaker vil disponere 5 parkeringsplasser, én av disse er HC-parkering. Det er mulighet for å leie flere parkeringsplasser etter avtale.
Matrikkelinformasjon
Nyttige lenker
EiendomsMegler 1 Østlandet - avd. Næring
Nærområdet
Annonsene kan være mangelfulle i forhold til lovpålagt opplysningsplikt. Før bindende avtale inngås oppfordres interessenter til å innhente komplett informasjon fra meglerforetaket, selger eller utleier.













