Bildegalleri

Fasade
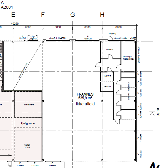
Hunndalen - Flott nybygg samlokalisert med Posten/Bring leies ut. 580 m2.
Nøkkelinfo
- Areal
- 580 m²
- Bruksareal
- 580 m²
- Tomt
- Eiet
- Byggeår
- 2024
Type lokale
Kort om eiendommen
Posten/Bring flytter inn i nye, flotte lokaler på Amsrudsvingen i Hunndalen. Det vil derfor åpne seg muligheter for å leie den andre halvparten av bygget.
Bygget er klar for ny leietaker som sammen med eier kan utforme sine lokaler.
Området er regulert i plan godkjent 26.03.15. og sist revidert 23.01.23. Reguleringsplan/kart datert 05.03.15., sist revidert 09.01.2023.
Eiendommen er avsatt til næring og forretning og kan benyttes til lett industri, håndverksbedrifter, lager og plasskrevende varehandel. Med plasskrevende varehandel menes biler, motorkjøretøy, landbruksmaskiner, trelast og andre byggevarer, salg fra planteskoler/hagesentre, lystbåter og campingvogner. Innenfor næringsbebyggelse kan det tillates mindre forretninger knyttet til hovedformålets virksomhet. Det er ikke tillatt med virksomhet som kan medføre særlige miljøulemper for området og nærliggende boligbebyggelse. Midlertidige skur, haller mv. tillates ikke.
Bygget er tilknyttet fjernvarme. Øvrig oppvarming via strøm og ventilasjon.
Matrikkelinformasjon
Visning
Ta kontakt for å avtale visning.
Innlandet Næringsmegling AS
Nærområdet
Annonseinformasjon
| FINN-kode | 440971721 |
|---|---|
| Sist endret | 08. des. 2025 08:45 |
| Referanse | INM7.2414 |
Annonsene kan være mangelfulle i forhold til lovpålagt opplysningsplikt. Før bindende avtale inngås oppfordres interessenter til å innhente komplett informasjon fra meglerforetaket, selger eller utleier.































