Bildegalleri

Lyse og moderne lokaler beliggende i Rolf Olsens vei 28 på Kjeller
Kjeller/Åråsen: Moderne kontorlokale på 329 kvm m/ mulighet for lite lager - Gode parkeringsmuligheter
Nøkkelinfo
- Areal
- 25 - 354 m²
- Tomt
- Eiet
Type lokale
Fasiliteter
Arealspesifikasjon
25 kvm Lagerlokale
1. etg: 329 kvm Kontorlokaler
Inneholder
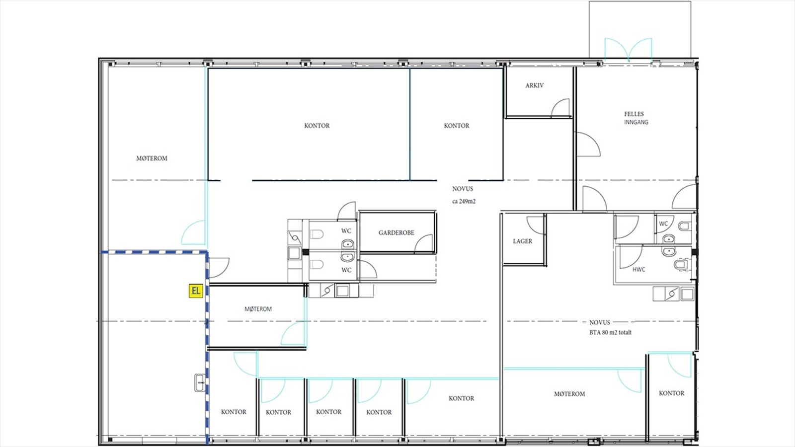
Lokalene i Rolf Olsens vei 28 består av moderne kontorarealer med i hovedsak cellekontorer og møterom. Til kontorarealet er det mulighet for å leie lite lager på ca. 25 kvm i underetasjen. Eiendommen har en attraktiv beliggenhet på Kjeller i Lillestrøm kommune, i et etablert næringsområde med enkel adkomst fra Fetveien (Rv22).
LEDIG LOKALE
Kontor, ca. 329 kvm i 1. etasje:
Lokalet består av to deler/seksjoner med separate innganger, og kan deles opp slik at inntil tre leietakere kan etableres.
Arealet inneholder cellekontorer, møterom, kjøkken med spiseplass, WC og lager/arkivrom. Lokalene ble oppgradert i 2023 og fremstår med meget god standard og materialvalg.
Det største lokalet har to separate kjøkken og to toaletter, mens det minste lokalet har kjøkken og to toaletter.
Lager, ca. 25 kvm i underetasjen:
Lager leies kun ut sammen med kontorarealet (ikke separat). Kontorlokalet kan leies alene.
DIVERSE
- Ventilasjonsanlegg med kjøling.
- Elektrisk oppvarming.
- Fiber.
- Moderne og svært god teknisk standard.
- Kjøkkenløsning i begge lokaler.
- Gode profileringsmuligheter på byggets fasade.
- Fremleie.
PARKERING
Mulighet for leie av p-plasser etter nærmere avtale.
BELIGGENHET
Eiendommen ligger sentralt på Kjeller, et etablert og attraktivt næringsområde i Lillestrøm kommune. Området har enkel adkomst fra Fetveien (Rv22) og Lillestrøm sentrum. Kollektivtilbudet i området er godt, med bussforbindelser i gangavstand og korte avstander til både Kjeller og Lillestrøm sentrum, samt Romerike for øvrig.
Andre leietakere i eiendommen er blant annet Østheimgruppen AS, Malermester Eckholm AS og Norsk Naturstein AS.
Tomt kvadratmeter
0
Matrikkelinformasjon
Visning
Ta kontakt for å avtale visning.
Real Næringsmegling AS
Nærområdet
Annonsene kan være mangelfulle i forhold til lovpålagt opplysningsplikt. Før bindende avtale inngås oppfordres interessenter til å innhente komplett informasjon fra meglerforetaket, selger eller utleier.
















