Bildegalleri

Ryen: Høytlager m/ mange porter og unik beliggenhet i Oslo
Nøkkelinfo
- Areal
- 4 702 m²
Type lokale
Sandstuveien 70
Kort om eiendommen
Velkommen til Sandstuveien 70 – et romslig og fleksibelt høytlager med svært gode logistikkmuligheter.
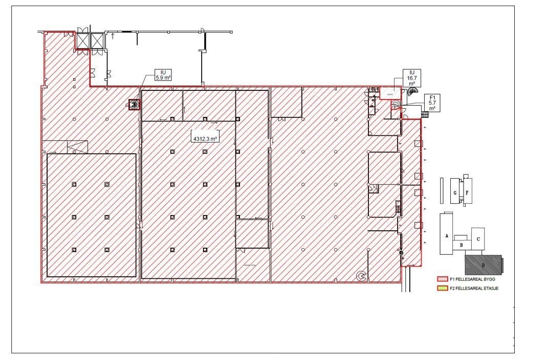
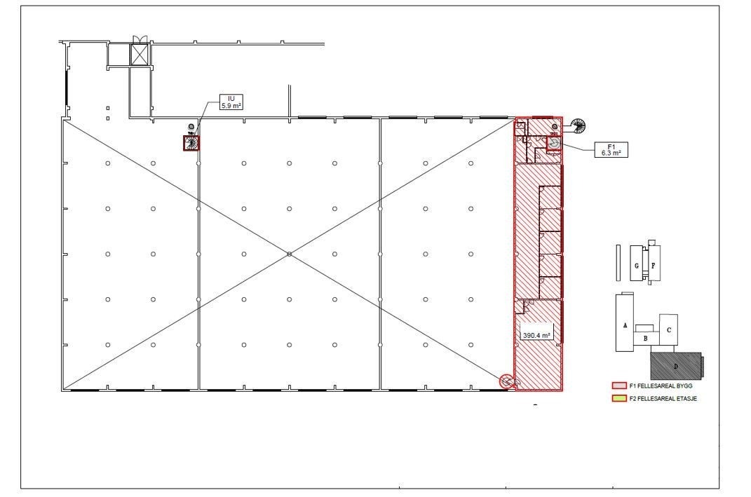
Lokalet består av over 4 300 m² i en høy og effektiv lagerhall i første etasje, med ca. 6–7 meter takhøyde som gir optimal utnyttelse for pallereoler, høylagring og annet volumkrevende lagerhold. I tillegg finner du 390 m² i andre etasje, velegnet som kontor, lagerstøtte, pakkesone eller andre støttefunksjoner.
Lagerhallen er utstyrt med 9 porter med rampe, noe som gir rask og effektiv vareflyt inn og ut av bygget – ideelt for virksomheter med høy omlastingsfrekvens. Lokalet har også tidligere vært benyttet med kjøle- og frysekapasitet, og er derfor særlig godt egnet for aktører som håndterer temperaturregulert vare og ønsker rask distribusjon inn mot Oslo-området.
Dette er et fleksibelt og funksjonelt lager for virksomheter innen logistikk, distribusjon, grossist, næringsmiddel, netthandel eller andre bransjer som trenger en kombinasjon av høylager, kjøl/frys og kontorfasiliteter under samme tak.
- Areal lager (plan 1): 4 312 m²
- Areal kontor / lagerstøtte (plan 2): 390 m²
- Totalt areal: 4 702 m²
- Takhøyde: ca. 6–7 meter
- Porter / ramper: 9 porter med rampe
Beliggenhet
Eiendommen har en svært attraktiv plassering på Ryen, et av Oslos mest sentrale og etablerte logistikkområder. Plasseringen gir rask tilgang til E6 og Ring 3, noe som gjør varetransport inn og ut av Oslo enkelt og effektivt. Dette er et område som er spesielt etterspurt av distributører, grossister og aktører som trenger korte og forutsigbare transportlinjer.
Bygget har i tillegg meget god eksponering mot hovedfartsåren, noe som gir høy synlighet for virksomheter som ønsker profilering langs motorveien. Ryen er samtidig et område i sterk utvikling, med et bredt servicetilbud og gode kollektivmuligheter som gjør arbeidsreisen enkel for ansatt
- Beliggenhet: Oslo
Visning
Ta kontakt for å avtale visning.Nyttige lenker
Malling & Co Næringsmegling AS
Nærområdet
Annonseinformasjon
| FINN-kode | 439421807 |
|---|---|
| Sist endret | 28. nov. 2025 14:17 |
| Referanse | 69282346c297968e336883cd |
Annonsene kan være mangelfulle i forhold til lovpålagt opplysningsplikt. Før bindende avtale inngås oppfordres interessenter til å innhente komplett informasjon fra meglerforetaket, selger eller utleier.














