Bildegalleri

Innbydende kontorlokaler med sentral beliggenhet!
Nøkkelinfo
- Areal
- 185 - 535 m²
- Energimerking
- A
Type lokale
Fasiliteter
Om eiendommen
Det gamle Max-bygget i Tempevegen 22 er totalrehabilitert, og er et av de mest ambisiøse rehabiliteringsprosjektene som har vært gjennomført i Midt-Norge!
I 1. etasje er det dagligvarebutikk, apotek, frisør, sykkelbutikk og mobiltelefonverksted, mens det i 2. etasje er Strinda Smådyrklinikkk, Spear og HØR. Det er også direkte adkomst fra kontorenes hovedinngang inn til nærsenteret. Alle som jobber i bygget har derfor meget kort vei til det meste av servicetilbud.
I underetasjen er det god kapasitet på parkeringsplasser for både biler og sykler, med ladestasjoner for el-biler og el-sykler. Alt er lagt til rette for de som ønsker å sykle til jobb, med både tørkerom og garderober nært sykkelparkeringen.
Beliggenhet
Bygget/ eiendommen ligger inntil E6 med meget god eksponering inntil hovedfartssåren inn mot Trondheim sentrum fra syd, og ligger midt i en akse av forbindelser.
Bygget er et knutepunkt som virkelig får glede av Trondheim kommune sin satsing på sykkelfelt og metrobuss. Dette skal være et senter for byens innbyggere hvor de får en følelse av livet i Trondheims gater. Det vil være lunt og trivelig samtidig som det skal være moderne og funksjonelt.
Med planlagt uteservering og spennende uterom, jobber vi mot å skape et fantastisk treffsted og en sosial arena både for gjester, nærmiljø og de som jobber i bygget. Uterommet får et spennende uttrykk med både myke og harde flater. Kunst i samspill med grønne innslag preger nederste delen av fasaden til bygget. Sammen med oppbygging av lameller på fasaden så er dette blitt et unikt bygg i dette området.
Nærhet til rekreasjonsområder på Tempe og flotte sykkelveier som strekker seg helt inn til sentrum.
Aksen langs E6 fra Tempe og inn mot Trondheim Sentrum står foran en betydelig utvikling, med fortetting til både bolig- og næringsformål. Området ligger nært opp til Lerkendal med Sintef-miljøet og NTNU på Gløshaugen.
Adkomst
Se kartskisse.
Standard
Kontorarealene er klassifisert til BREEAM Outstanding og energiklasse.
Det er valgt energieffektive ventilasjonsløsninger, godt isolerte yttervegger og nye vinduer som gir godt dagslys samtidig som de beholder varmen inne om vinteren. Solcelleanlegget vil tilsvare lading av årsforbruk til ca. 35 elbiler.
Alle innvendige løsninger er valgt for fremme god arkitektur og miljø. Dette gir gode og varige løsninger for brukerne, som på sikt også vil gi avkastning for miljøet. Alle materialvalg tilfredsstiller BREEAM-NOR sine ambisiøse miljøkrav, både ved overtakelse og gjennom drift.
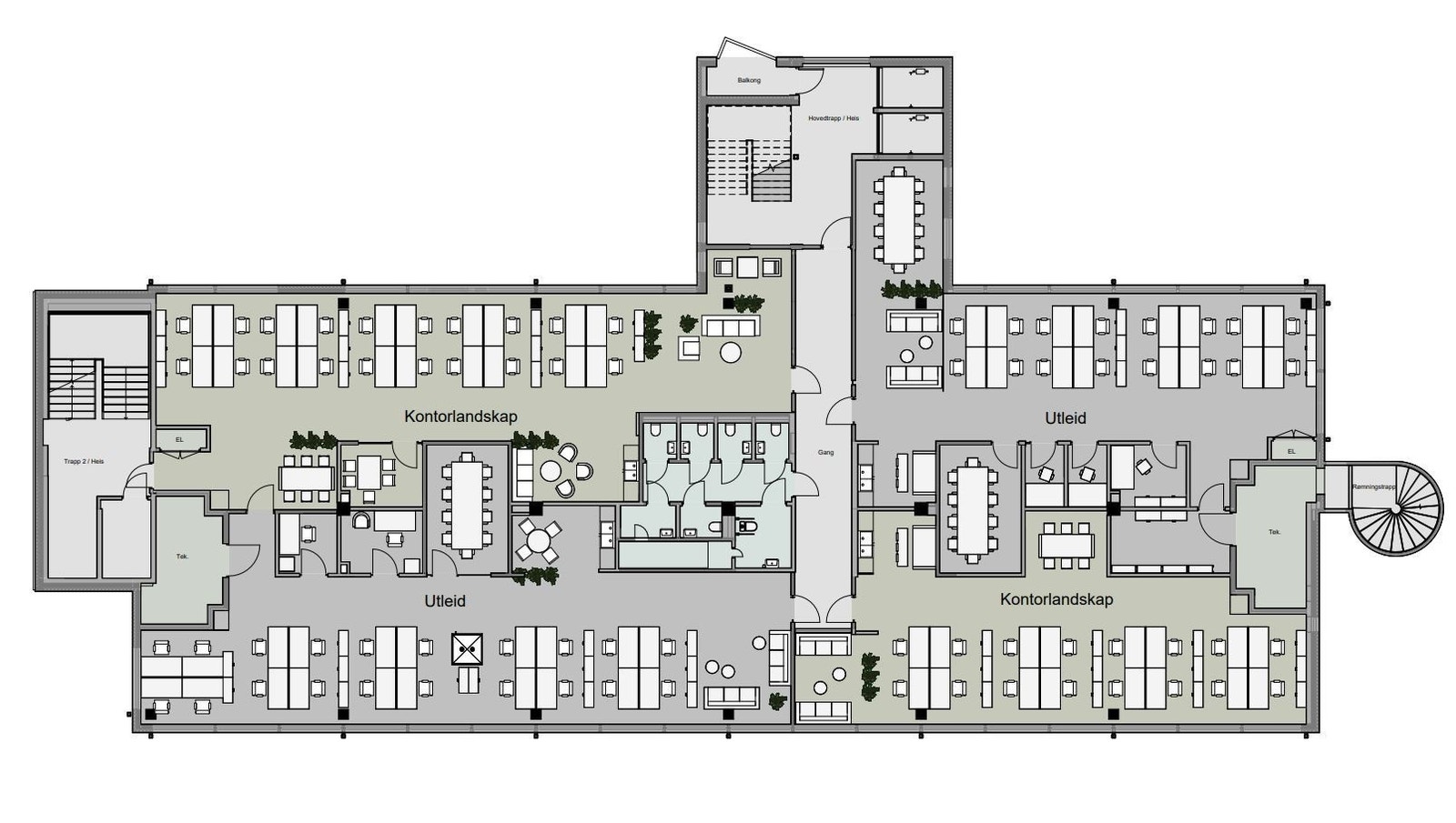
Planløsningene i kontoretasjene er planlagt for å være mest mulig fleksible. Lukkede rom er planlagt nærmest tekniske rom for å ha en ekstra himlingshøyde i kontorlandskapet. Ved å plassere kjøkken sentralt rundt kjernen så oppnår en kortere føringsveier noe som er en fordel for energiforbruket og fleksibiliteten. Åpne kontorlandskap ut mot fasaden gir gode lyse lokaler.
Innhold
Arealer tilgjengelig:
5. etg: BTA ca 185 - 262 kvm inkl andel fellesarealer.
6. etg: BTA ca 535 kvm inkl andel fellesarealer.
Ta kontakt for en nærmere presentasjon av NYE Max-bygget på Tempe!
Matrikkelinformasjon
Visning
Ta kontakt for å avtale visning.Nyttige lenker

KLP Eiendom Trondheim AS
Nærområdet
Annonseinformasjon
| FINN-kode | 439264232 |
|---|---|
| Sist endret | 27. nov. 2025 12:28 |
| Referanse | XSØ-Tempevegen22X |
Annonsene kan være mangelfulle i forhold til lovpålagt opplysningsplikt. Før bindende avtale inngås oppfordres interessenter til å innhente komplett informasjon fra meglerforetaket, selger eller utleier.
























