Bildegalleri

Sandvika - Kontorer m/lager . Flere arealstørrelser - Fra 16 kvm til 354 kvm
Nøkkelinfo
- Areal
- 16 - 245 m²
- Etasje
- 1.
- Overtakelse
- Etter avtale
Type lokale
Kontor
Lager/Logistikk
Fasiliteter
Bredbåndstilknytning
Garasje/P-plass
Om eiendommen
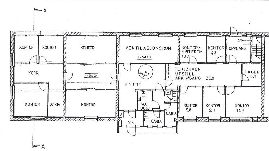
Vi har for utleie pene og moderne kontorer i Eyvind Lyches vei 23 B i Sandvika. Arealene kan leies samlet eller delt. Det kan leies arealer på 45 kvm, 79 kvm, 121 kvm, eller samlet 245 kvm. Ved leie av hele arealet på 245 kvm vil arealet på 121 kvm ligge i 2. etasje. De øvrige arealene ligger samlet i 1. etasje.
Vi har i tillegg et enkeltkontor på 16 kvm i en annen eiendom like ved, i Eyvind Lyches vei 6.
Vi har i tillegg et enkeltkontor på 16 kvm i en annen eiendom like ved, i Eyvind Lyches vei 6.
Beliggenhet
Eiendommen har en hyggelig og attraktiv beliggenhet i Sandvika, med Sandvikselven rennende forbi, og på samme område som Jula, Jysk og Circle K.
Eyvind Lychesvei 23 ligger 7 - 10 minutters gange fra Sandvika sentrum, og et par minutters kjøring til Sandvika Storsenter og E18. Tunnelen i retning Skui og E16 mot Sollihøgda ligger like ved.
Eyvind Lychesvei 23 ligger 7 - 10 minutters gange fra Sandvika sentrum, og et par minutters kjøring til Sandvika Storsenter og E18. Tunnelen i retning Skui og E16 mot Sollihøgda ligger like ved.
Adkomst
Enkel adkomst med bil. Noe parkering kan tilbys. 10 minutters gange til Sandvika Togstasjon, med bl.a. Flytoget. Bussholdeplass 150 meter unna.
Standard
Lokalene er pent oppusset og har en god teknisk standard.
Innhold
Lokalene består av en kombinasjon av kontorlandskap, showroom og enkeltkontorer, i tillegg til fra 45 til ca. 100 kvm som kan benyttes til lager.
NB: Knappen for å vise hele beskrivelsen har kun en visuell effekt.
NB: Knappen for å vise hele beskrivelsen har kun en visuell effekt.
Visning
Ta kontakt for å avtale visning.Sandia Megling AS
Sandia
Nærområdet
Annonseinformasjon
| FINN-kode | 439134830 |
|---|---|
| Sist endret | 26. nov. 2025 14:42 |
| Referanse | AE/ELV23 |
Annonsene kan være mangelfulle i forhold til lovpålagt opplysningsplikt. Før bindende avtale inngås oppfordres interessenter til å innhente komplett informasjon fra meglerforetaket, selger eller utleier.






