Bildegalleri

World Seafood Center - ledige kontorarealer i 2. og 4. etasje
Kontor/showroom/lager til leie i Gardermoen Næringspark - Langtids- og korttidsleie mulig
Nøkkelinfo
- Areal
- 100 - 1 332 m²
Type lokale
Fasiliteter
Om eiendommen
Vi har ledige kontorarealer i 2. og 4. etasje i World Seafood Center - Oslo Airport City!
2. etasje:
Byggets 2. etasje er i dag leid ut til flere leietakere og det er mulighet for å leie kontor på kort eller lang sikt. Lokalene holder god standard, og deles med blant anent Oslo Airport City.
4. etasje:
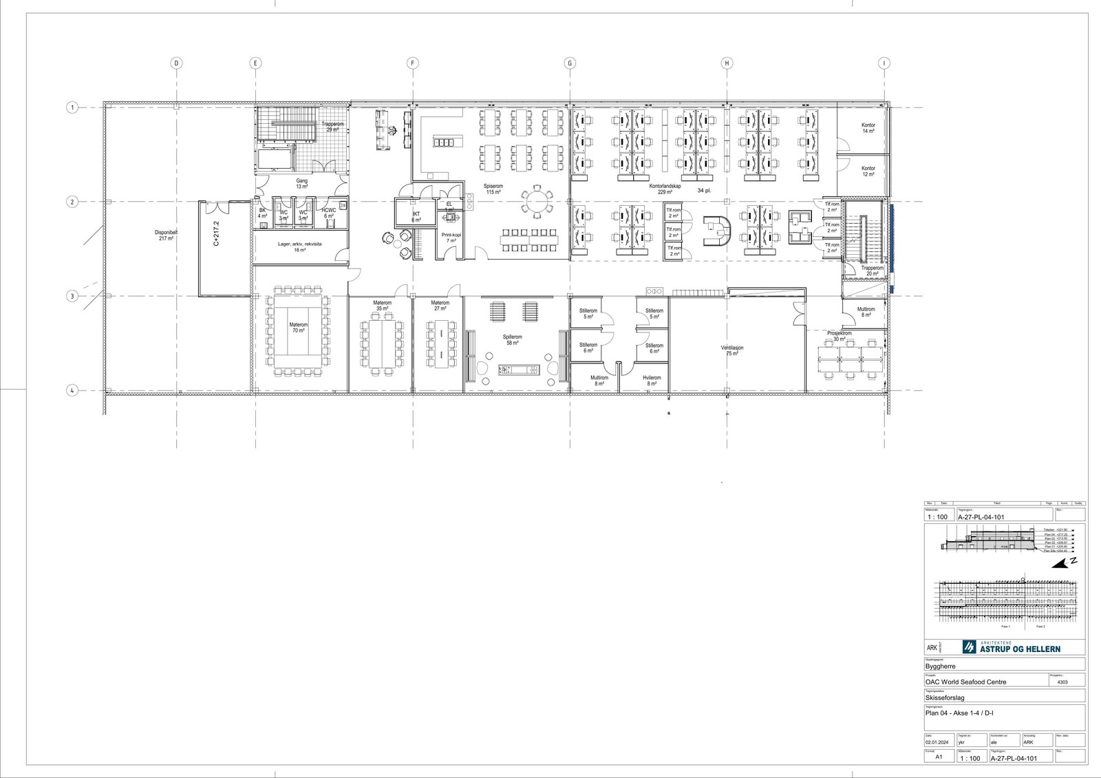
Byggets 4. etasje står ledig og er per i dag et rålokale. Dette arealet vil tilpasses ny brukers behov. Se illustrasjoner på hvordan arealene kan utformes. Her er det også mulighet for å legge til rette for lager, men tilkomsten er begrenset til vanlig personheis.
Etasjen er på totalt 1332 kvm BTA.
Ta kontakt for visning og diskutere muligheter.
Beliggenhet
Leietakere innen sjømat, logistikk, bil/mobilitet og lagring har allerede valgt Oslo Airport City som samarbeidspartner for etablering av sine virksomheter, herunder, bl.a. World Seafood Center på ca. 55.000 kvm med leietakere som Mowi (verdens største lakseoppdretter), GPC og Oslo Seafood Center. Kunstlageret er ferdigstilt og overlevert til leietakere (Kistefos og Astrup Fearnley). GF Logistikk har nylig flyttet inn i nyoppført bygg. I tillegg flytter Grieg Seafood og Oslo Fryselager inn i nye bygg i løpet av det neste året. Gardermoen Næringspark er et område i vekst.
Adkomst
Fra Jessheim sentrum tar det 8 minutter med bil.
Standard
Visning
Ta kontakt for å avtale visning.Nyttige lenker
Oslo Airport City AS
Nærområdet
Annonsene kan være mangelfulle i forhold til lovpålagt opplysningsplikt. Før bindende avtale inngås oppfordres interessenter til å innhente komplett informasjon fra meglerforetaket, selger eller utleier.

















