Bildegalleri

Kongens gate 38
Moderne forretningslokaler med parkering, i sentrum.
Nøkkelinfo
- Areal
- 635 m²
- Bruttoareal
- 635 m²
- Tomteareal
- 846 m² (eiet)
- Etasje
- 1.
- Byggeår
- 2008
Type lokale
Fasiliteter
| Kort om eiendommen
Glimrende beliggenhet og eksponering i sentrum, med p-plasser på tomten.
| Bebyggelse
Kombinasjon av næring og bolig
| Innhold
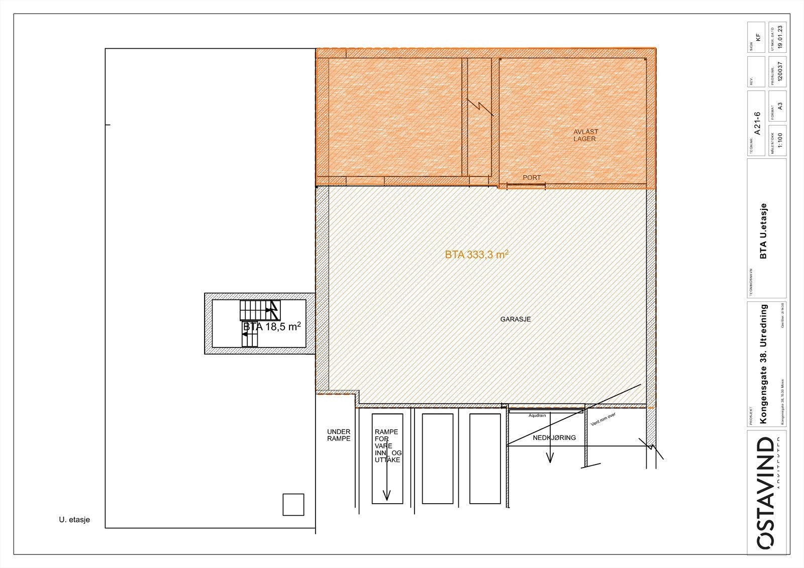
Bygningsmassen inneholder lager og/eller parkeringsplasser i u.etg./kjeller, butikklokaler på bakkeplan, to store leiligheter og noe kontor i 2. etg. og lager.
For utleie:
1. etg. Forretningslokale 395 kvm
2. etg. Kontor/sosiale rom 76 kvm
Loft/lager 54 kvm
Kjeller/lager 110 kvm
| Beliggenhet
Eiendommen har en attraktiv og sentral beliggenhet ved innkjøringen til Moss sentrum, med adresse Kongens Gate 38. Området preges av en blanding av forretningsbygg, kontorer, handel og boligbebyggelse, og har nærhet til alle sentrumsfunksjoner. Eiendommen ligger i umiddelbar gangavstand til kollektivknutepunktet ved Moss jernbanestasjon, med hyppige togavganger mot Oslo og regionen for øvrig, samt kort avstand til fergeterminalen for Moss Horten-fergen.
Området har god tilgjengelighet både med bil og kollektivtransport, og det er enkel adkomst til E6 via både Mosseporten og Kambo. Beliggenheten gir dermed effektiv logistikk og synlighet for virksomheter som ønsker nærhet til både lokalmarkedet og regionen.
| Adkomst
Fra avkjøring E6 Mosseporten > kjør mot vest på Rv19 2,3 km > i rundkjøringen: ta 1. avkjøring ut på Vogts gate/Rv19 - 36 m > sving til høyre og inn på Kongens gate > eiendommen ligger på høyre hånd etter 81 m.
| Parkering
Det er opparbeidet og oppmerket 7 parkeringsplasser på egen grunn oppå bakken, og 4-5 plasser i p-kjeller.
| Standard
God.
| Beskrivelse av tomt
Hele tomten er bebygget eller opparbeidet med asfalt.
| Oppvarming
Hele bygningen er elektrisk oppvarmet.
| Ventilasjon
Balansert mekanisk ventilasjon med varmegjenvinning i store deler av butikklokalene.
| Energimerking
Energimerking foreligger ikke.
Ytterligere opplysninger om energimerking finner du på www.energimerking.no
| Offentlig kommunikasjon
Det er flere stoppesteder for buss med både nær- og fjernruter i en radius på 100 m.
Det er 450 m å gå til byens bussterminal og hovedholdeplass for taxi.
Det er 1 km å gå til Moss jernbanestasjon.
Det er 1,3 km å gå til ferge Moss - Horten.
Matrikkelinformasjon
Visning
Ta kontakt for å avtale visning.Metra Næringsmegling AS
Nærområdet
Annonseinformasjon
| FINN-kode | 438100999 |
|---|---|
| Sist endret | 20. nov. 2025 11:30 |
| Referanse | MTRA1.2541 |
Annonsene kan være mangelfulle i forhold til lovpålagt opplysningsplikt. Før bindende avtale inngås oppfordres interessenter til å innhente komplett informasjon fra meglerforetaket, selger eller utleier.














