Bildegalleri

Eiendommen
EIDSVOLL: Ledig butikk-/servering- og kontorlokaler. God beliggenhet v/Torget
Nøkkelinfo
- Areal
- 42 - 1 002 m²
- Tomt
- Eiet
- Byggeår
- 1985
Type lokale
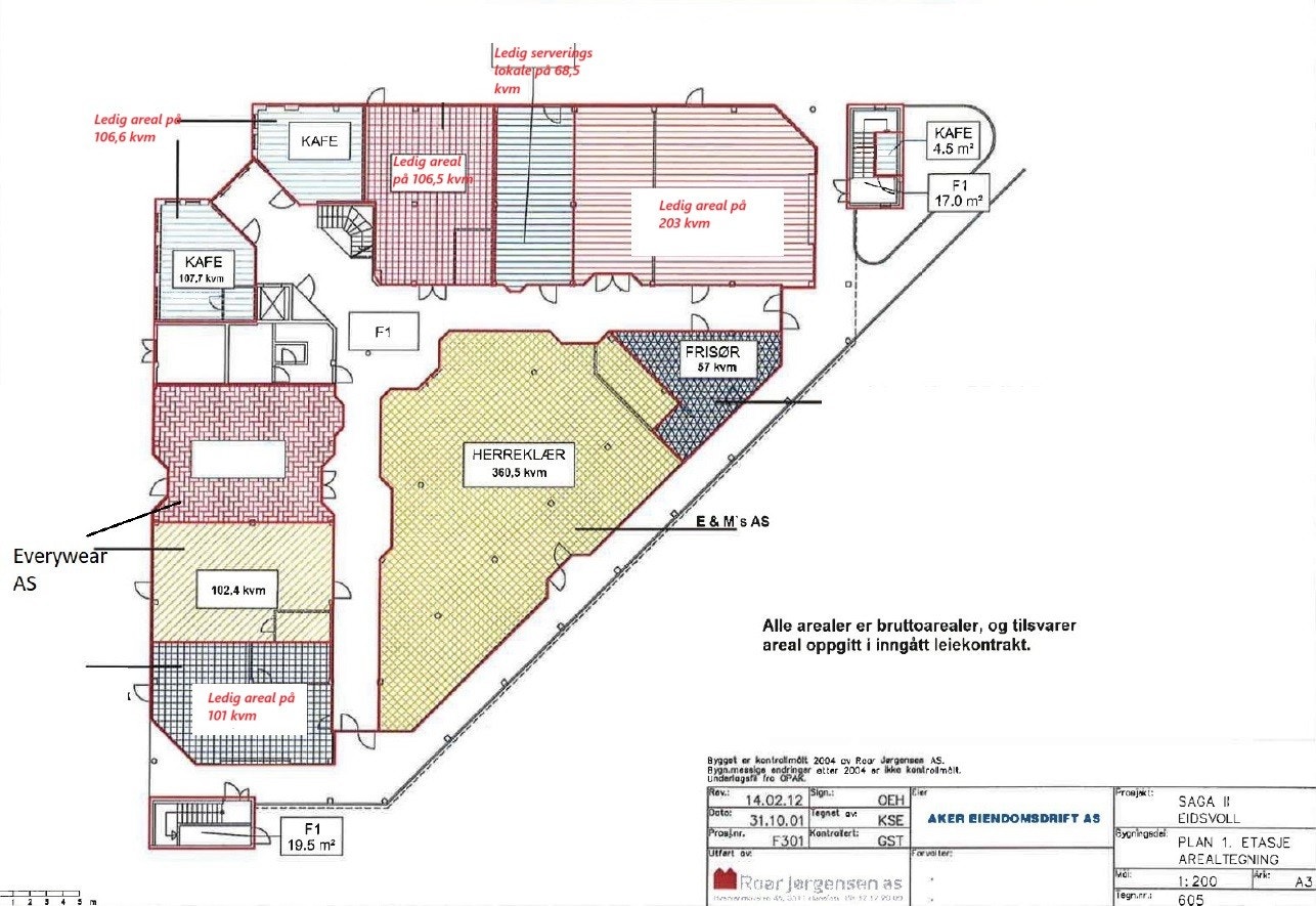
Arealspesifikasjon
1. etg: 68 kvm Servering
1. etg: 101 kvm Butikk
1. etg: 106 kvm Butikk
1. etg: 106 kvm Cafe
1. etg: 203 kvm Butikklokale
2. etg: 42 kvm Kontor
2. etg: 77 kvm Kontor
2. etg: 79 kvm Kontor
2. etg: 218 kvm Kontor
Kort om eiendommen
Wergelands gate 7 i Eidsvoll, også kjent som Saga 2, er en næringseiendom på 3467 kvadratmeter som ble oppført i 1985. Den huser blant annet NAV-kontoret for Eidsvoll og Hurdal. I tillegg er det kafe, serveringsted, bingo, frisører og klesbutikk på senteret.
Eiendommen ligger sentralt i Eidsvolls bykjerne, og området er godt tilrettelagt med nærhet til lokale fasiliteter og transportmuligheter, noe som gjør den praktisk både for beboere og forretningsdrivende.
Beliggenhet
Saga Senter 2 (Wergelands gate 7) ligger i Sundet, som er det kommersielle og administrative sentrum av Eidsvoll. Sundet har en blanding av boliger, butikker, kaféer, restauranter og lokale tjenestetilbud. Her finner du typiske urbane fasiliteter som kjøpesentre, banker og ulike tjenester.
Gjennom de siste årene har det vært en sterk befolkningsvekst rundt Eidsvoll sine to tettsteder; Sundet og Råholt.
Sundet ligger vakkert plassert ved Vorma, rett sør for Mjøsa.
Det er kort avstand til kollektivtransport, med både bussforbindelser og Eidsvoll stasjon like i nærheten, som gjør det enkelt å pendle til både Oslo ca. 35 min. og Gardermoen ca. 10 min.
Adkomst
Se vedlagt kart.
Inneholder
Butikklokaler i 1.etg.:
Vi har tre ledige butikklokaler på ca. 203, 101,5 og 106,4 kvm BTA. Lokalene har inngang fra gateplan og via senteret. Lokalet på 203 kvm kan vurderes omgjort til serveringslokale. I tillegg har vi ledig et cafe lokale på ca. 106,6 kvm BTA. og et mindre serveringslokale på 68,5 kvm.
Lokalene på 203, 106,4 og 68,5 kvm kan slås sammen til et areal på 378 kvm BTA. Vi er fleksible i forhold til virksomhet (butikk, servering, trening eller annet).
Vi kan se på muligheten for leie av et større areal i denne etasjen og kan fristille et butikkareal på ca. 500-600 kvm BTA.
2. etg.: kontorlokaler som passer godt for helserelaterte virksomheter.
Ledig areal på 42, 79, 77 og 218 kvm BTA. 3 av lokalene kan leies sammen og arealet utgjør da ca. 374 kvm BTA.
Lokalene er lyse med store vindusflater som gir godt arbeidslys.
Planløsningen kan endres ved behov og tilpasses etter leietakers ønsker.
Matrikkelinformasjon
Visning
Ta kontakt for å avtale visning.
AREALPARTNER NÆRINGSMEGLING AS
Nærområdet
Annonseinformasjon
| FINN-kode | 438087289 |
|---|---|
| Sist endret | 20. nov. 2025 09:50 |
| Referanse | APN1.2459 |
Annonsene kan være mangelfulle i forhold til lovpålagt opplysningsplikt. Før bindende avtale inngås oppfordres interessenter til å innhente komplett informasjon fra meglerforetaket, selger eller utleier.
































