Bildegalleri

ASKIM - Flotte lyse kontorer med sentral beliggenhet!
ASKIM - Flotte lyse kontorer med sentral beliggenhet!
Nøkkelinfo
- Areal
- 450 m²
- Bruttoareal
- 450 m²
- Tomt
- Eiet
Type lokale
| Kort om eiendommen
Sentralt beliggende lokaler med kort avstand til butikker og offentlige tjenestetilbud.
Store planer for sentrumsutvikling er ventet å gi stor vekst de kommende år.
God eksponering mot hovedferdselsåre og fri parkering.
| Bebyggelse
Næringsbygg oppført i 1964, utbygget i 2004-08. Bygningen er oppført på betongsålefundament på antatt fast grunn. Grunnmur er oppført i armert betong. Bærende konstruksjoner i betong, dels med søyler og dragere. Yttervegger dels i pusset, malt betong, hovedsakelig forblendet med tegl og mindre felter med panel. Etasjeskille i armert betong. Valmet tak av tre på støpt flatt dekke tekket med takstein.
Vinduer med isolerglass og diverse utvendige markiser for solavskjerming.
| Innhold
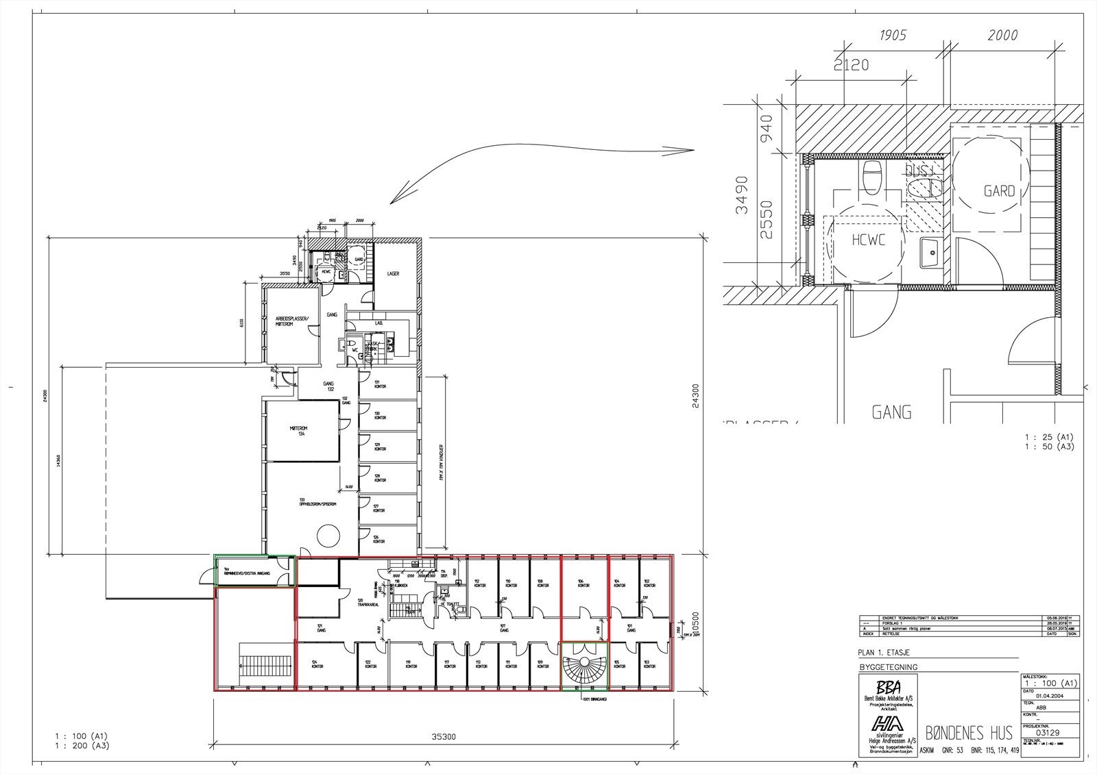
Underetasje: Inngangsparti, møterom, garderober med dusjer/wc, arkiv, tekniske rom og gang med trapp til 1. etasje.
1. etasje: Resepsjon, kontorer, kjøkken/ spiserom og wc
Lyse lokaler med gjennomgående god standard. P.t. innredet for ca. 20 arbeidsplasser med kontorer, møterom, kjøkken og garderober med dusjer/wc. Kan tilpasses etter leietakers ønsker og behov. Lokalene står ledige fra februar 2024 med mulighet for rask tiltredelse. Arealet leies ut samlet til en aktør med ønske om langvarig leieforhold. Leienivå "som det står" kr 950,-/kvm/år. Kostnader for eventuelle tilpasninger vil komme i tillegg. Kvartalsvis forhåndsbetaling og 6 måneders sikkerhetsstillelse i form av bankgaranti. Leien reguleres hver 1. januar, i forhold til eventuelle økninger i Statistisk Sentralbyrås konsumprisindeks (KPI). I tillegg til leien betaler leietaker en forholdsmessig andel av eiendommens fellesutgifter, så som snøbrøyting, alarm, ventilasjon etc. stipulert til kr 50,-/kvm/år.
| Beliggenhet
Sentral næringseiendom ved hovedrundkjøringen til Askim sentrum med god eksponering fra hovedinnfartsåre. I Askim er det et svært variert næringsliv med noen store og mange små virksomheter. Byen har stor tilvekst av næringsliv og økende innbyggertall. Eiendommen har kort gangavstand til bykjerne med rikt servicetilbud og handelssenteret "Askim Torget", samt til Askim jernbanestasjon/bussterminal med videre forbindelser til Oslo og de andre Østfoldbyene.
| Adkomst
Eiendommen ligger langs Fylkesvei 128 (tidligere E18) med god tilgjengelighet ved hovedinnkjøringen til Askim sentrum fra øst og vest. Det er bussholdeplasser på begge sider av fylkesveien og med gode kommunikasjonsforhold til vei og jernbane.
| Parkering
Rikelig med egne p-plasser på utsiden av lokalene langs siden av bygget til leietakers fri disposisjon.
| Beskrivelse av tomt
Tomten er opparbeidet med asfalterte adkomstveier/parkeringsarealer, grøntanlegg, belegningsstein og med singlet gårdsplass på øvre plan.
| Oppvarming
Elektrisk oppvarming med panelovner og varmeelement knyttet til ventilasjonsanlegget. Det er installert varmepumper og etterisolert himling i 2022/23. Leietaker belastes for elektrisitet etter måler i forhold til leid areal.
| Lovanvendelse
Ved utleie vil meglers leiekontrakt bli benyttet. Husleielovens vil bare i begrenset utstrekning kunne påberopes av Leietaker. Kontakt vårt kontor for nærmere opplysninger og gjennomlesing av avtalen.
Utleier forbeholder seg her bl.a. retten til å kunne registrere utleievirksomheten i merverdiregisteret.
Eml. §§ 4-4, 6-2, 6-7, 6-10, 7-1 og 8-8 fravikes ved dette oppdraget.
Lov om hvitvasking
Eiendomsmeglere er underlagt lov om hvitvasking. Dette innebærer at oppdragsansvarlig har plikt til å melde fra til Økokrim om eventuelle mistenkelige transaksjoner.
Matrikkelinformasjon
Visning
Ta kontakt for å avtale visning.Metra Næringsmegling AS
Nærområdet
Annonseinformasjon
| FINN-kode | 437821289 |
|---|---|
| Sist endret | 18. nov. 2025 13:54 |
| Referanse | MTRA1.23145 |
Annonsene kan være mangelfulle i forhold til lovpålagt opplysningsplikt. Før bindende avtale inngås oppfordres interessenter til å innhente komplett informasjon fra meglerforetaket, selger eller utleier.










