Bildegalleri

Bjørnerudveien 17
Bjørnerud: Kombinasjonslokaler til leie på 1.100 & 940 kvm BTA. Lager med 8 meter takhøyde og flere kjøreporter.
Nøkkelinfo
- Areal
- 20 - 2 060 m²
- Tomt
- Eiet
Type lokale
Fasiliteter
Arealspesifikasjon
1. etg: 940 kvm Kombinasjonslokale
1. etg: 1100 kvm Kombinasjonslokale
2. etg: 20 kvm Kontor Bjørnerudveien 12
Beliggenhet
Bjørnerudveien 17 har en sentral beliggenhet i et veletablert industri- og næringsområde (Bjørnerud Industriområdet).
Enkel kommunikasjon til hovedfartsårene i alle retninger. Det tar kun 2 minutter med bil til E6 og ca. 5 minutter til E18.
Offentlig kommunikasjon med buss 77 fra Nebbejordet ca. 3 min gange. Det er også en holdeplass i Ljabruveien med buss 77, 515, 550. Hauketo togstasjon er heller ikke langt unna. De mange rutene gjør det enkelt og effektiv å bruke offentlig kommunikasjon.
Det er også enkelt å komme til og fra området med sykkel, via et godt nettverk av sykkelveier.
Adkomst
Se vedlagt kart
Inneholder
Ledige lokaler i Bjørnerudveien 17:
Kombinasjonslokaler på ca. 1.100 kvm BTA.
Kontordel på 500 kvm BTA:
Resepsjonsområde, 14 enkelt kontorer og 3 større kontorer for 1-4 personer, 1 møterom, kjøkken med spiseplass, HCWC, lager/arkiv. To toaletter i felles trappegang.
Lager på ca. 600 kvm BTA med takhøyde på ca. 8 meter. 2 kjøreporter fra gateplan.
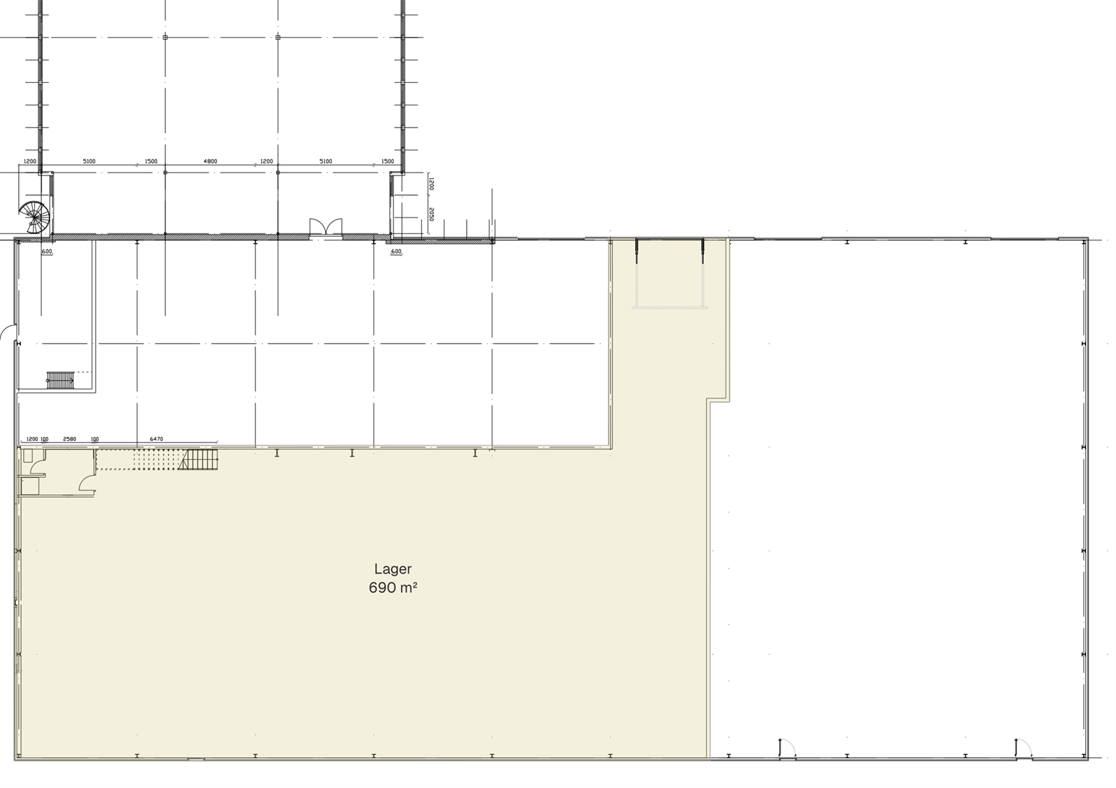
Kombinasjonslokale på ca. 940 kvm BTA.
Kontordel på 250 kvm BTA:
6 enkelt kontorer, 2 grupperom og 1-2 møterom, samt kjøkken.
Lagerdel på 690 kvm BTA med takhøyde på 8 meter, en kjøreport fra gateplan.
Lageret på 600 og 690 kvm ligger inntil hverandre og kan enkelt gjøres om til et lager på 1.290 kvm BTA.
Lokalene kan tilpasses iht. leietakers behov og ønsker.
Det forutsettes at kontor og lager leies sammen.
Bjørnerudveien 12: Vi har ledig tre kontorer i hyggelig kontorfellesskap.
Matrikkelinformasjon
Visning
Ta kontakt for å avtale visning.
AREALPARTNER NÆRINGSMEGLING AS
Nærområdet
Annonseinformasjon
| FINN-kode | 437798665 |
|---|---|
| Sist endret | 19. jan. 2026 12:21 |
| Referanse | APN1.2548 |
Annonsene kan være mangelfulle i forhold til lovpålagt opplysningsplikt. Før bindende avtale inngås oppfordres interessenter til å innhente komplett informasjon fra meglerforetaket, selger eller utleier.





























