Bildegalleri

Flotte kontorlokaler sentralt beliggende på Helsfyr/ Fyrstikktorget
Nøkkelinfo
- Areal
- 467 m²
- Etasje
- 2.
Type lokale
Kontor
Fasiliteter
Alarm
Bredbåndstilknytning
Garasje/P-plass
Om eiendommen
Lyse og pene kontorlokaler sentralt beliggende på Helsfyr i eiendom med sjel (den røde teglsteinsbygningen hvor Nittedals Tændstikfabrikker produserte fyrstikker fra 1875)
Eiendommen består i dag av ca 23000 kvm fordelt på ulik virksomhet som kontor, butikk, servering, legekontor/tannlege, frisør, apotek, trening m.m.
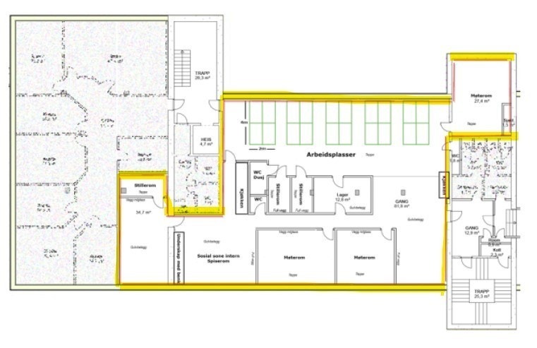
Lokalene er relativt nyoppusset og består av kontor hovedsakelig i åpen løsning samt diverse møterom/stillrom, kjøkken m.m.
Svært sentralt beliggende med offentlig kommunikasjon (buss, T-bane) i umiddelbar nærhet.
Det er mulig å leie p-plasser i eiendommens garasjeanlegg. Avgiftsbelagt kundeparkering i tilknytning til eiendommen.
Eiendommen skal på sikt utvikles og forventet byggestart er Q3-Q4 2026, se nærmere informasjon;
https://soeiendom.no/prosjekter/fyrstikktorget/kommer-snart
Arealene leies dermed ut til redusert markedsleie. Det er mulig å leie lokalene også gjennom byggeperioden og etter at prosjektet er ferdigstilt. Det må påregne noe støy fra byggeplass.
Lokalene er ledig nå
Eiendommen består i dag av ca 23000 kvm fordelt på ulik virksomhet som kontor, butikk, servering, legekontor/tannlege, frisør, apotek, trening m.m.
Lokalene er relativt nyoppusset og består av kontor hovedsakelig i åpen løsning samt diverse møterom/stillrom, kjøkken m.m.
Svært sentralt beliggende med offentlig kommunikasjon (buss, T-bane) i umiddelbar nærhet.
Det er mulig å leie p-plasser i eiendommens garasjeanlegg. Avgiftsbelagt kundeparkering i tilknytning til eiendommen.
Eiendommen skal på sikt utvikles og forventet byggestart er Q3-Q4 2026, se nærmere informasjon;
https://soeiendom.no/prosjekter/fyrstikktorget/kommer-snart
Arealene leies dermed ut til redusert markedsleie. Det er mulig å leie lokalene også gjennom byggeperioden og etter at prosjektet er ferdigstilt. Det må påregne noe støy fra byggeplass.
Lokalene er ledig nå
Matrikkelinformasjon
Gårdsnr: 130
Bruksnr: 2
NB: Knappen for å vise hele beskrivelsen har kun en visuell effekt.
NB: Knappen for å vise hele beskrivelsen har kun en visuell effekt.
Visning
Ta kontakt for å avtale visning.Stor-Oslo Eiendom AS
Nærområdet
Annonseinformasjon
| FINN-kode | 437657444 |
|---|---|
| Sist endret | 17. nov. 2025 13:48 |
| Referanse | K.K2, 467 kvm "Friday" |
Annonsene kan være mangelfulle i forhold til lovpålagt opplysningsplikt. Før bindende avtale inngås oppfordres interessenter til å innhente komplett informasjon fra meglerforetaket, selger eller utleier.















