Bildegalleri

Fasade Strandgaten 11
Moderne og sentrale kontorlokaler til leie i Strandgaten 11, i Bergen sentrum
Nøkkelinfo
- Areal
- 296 - 592 m²
- Etasje
- 5.
- Renovert år
- 2023
Type lokale
Fasiliteter
Om eiendommen
Moderne og arealeffektive kontorlokaler til leie i Bergens handlegate.
Vi har 2 ledige arealer. Lokalene kan leies ut separat eller kobles sammen om ønskelig.
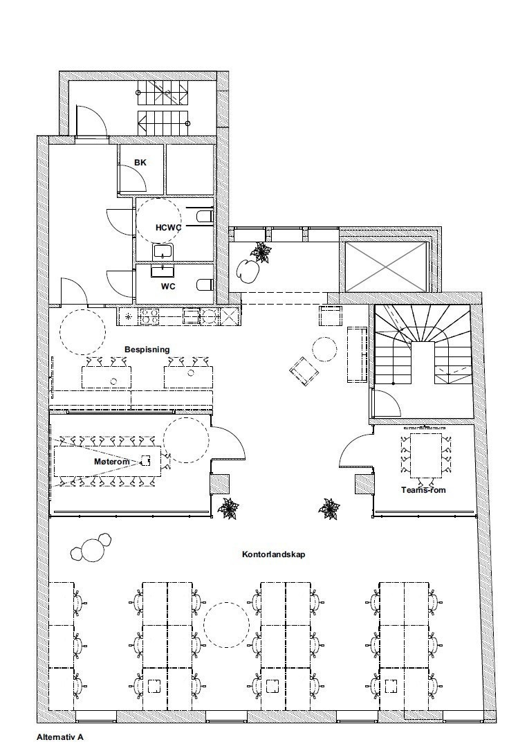
Plan 4: 296 m2 BTA inkludert fellesareal
Plan 5: 296 m2 BTA inkludert fellesareal
Lokalene ligger i eiendommens fjerde og femte etasje og vil innredes til nye leietakere. Etasjene kan knyttes sammen om ønskelig eller deles på to leietakere. Kontorlokalene har egen inngang fra Strandgaten og tilkomst med felles heis til egne lokaler.
Per i dag er fremstår lokalene som rålokaler og vi tilpasser lokalene etter nye leietakers ønsker og behov. Sammen med arkitekt skreddersyr vi lokalene med tanke på farger, planløsning og design. Bilder i annonse er laget som forslag fra arkitekt.
Strandgaten 11 har blitt rehablitert, hvor blant annet heis og ventilasjonsanlegg er blitt skiftet og ny sykkelparkering og garderobe etablert.
Kommunikasjon og parkering
Bergen Sentrum har offentlig kommunikasjon til alle bydeler. Både flybussen og bybanen nås på et par minutters gange. Det er parkeringsmuligheter både i Klostergarasjen og i City Park. EL-biler kan parkere til halv pris i Bygarasjen, som kun er ca. 10 min. spasertur unna.
Beliggenhet
Bygget har adresse Strandgaten 11 og ligger i nærheten av både Torgallmenningen, Fisketorget og Bryggen.
Området er meget attraktivt, og vi ser økende interesse for å etablere seg i Strandgaten. Det er flere nye, spennende etableringer de siste årene. Vi ser en økende kundetilstrømming til hele Strandgaten.
Vil du bli en del av bygget i Strandgaten 11?
Noen av leietakerne våre i Strandgaten er: Kicks, Frisørskolen, Media Vest, SRF, Funbit, Dråpe Media, Arko og Trafikkland.
Bygget har 8. etasjer.
Fornøyde leietakere
VestenFjeldske Eiendom drifter alle eiendommer med egne ansatte. Gjennom høy fagkompetanse og tilstedeværelse sørger våre driftsansvarlige for at byggene fungerer optimalt.
Vi gjør det også enkelt for våre leietakere å vokse sammen med oss da vi eier en stor eiendomsportefølje i Bergen Sentrum.
Om oss
VestenFjeldske Eiendom AS er et eiendomsselskap under Reitan Eiendom AS. Vi er et rendyrket eiendomsselskap med en attraktiv eiendomsportefølje hovedsakelig i Bergen sentrum.
Med beste beliggenhet på våre eiendommer og god standard på lokalene skal vi være et naturlig førstevalg når det kommer til leie av kontor, restaurant- og butikklokaler.
Utstyr og produkter i våre eiendommer skal være moderne og fremtidsrettet, og miljøvennlig teknologi skal selvsagt benyttes.
Et av Reitangruppen sine verdigrunnlag er Kunden er vår øverste sjef – for oss er det viktig å skape gode og langsiktige relasjoner til våre leietakere gjennom gode prosesser og at man sammen finner løsninger som gir stabilitet og lønnsomhet.
Velkommen til oss i VestenFjeldske Eiendom AS!
Ta gjerne kontakt for visning eller en uforpliktende samtale.
Matrikkelinformasjon
Visning
Vestenfjeldske Eiendom AS
Nærområdet
Annonseinformasjon
| FINN-kode | 437639916 |
|---|---|
| Sist endret | 17. nov. 2025 12:13 |
| Referanse | xKristina ChristophersenX |
Annonsene kan være mangelfulle i forhold til lovpålagt opplysningsplikt. Før bindende avtale inngås oppfordres interessenter til å innhente komplett informasjon fra meglerforetaket, selger eller utleier.

















