Bildegalleri

Lager/showrom på Vinterbro rett ved E6 og E18
Nøkkelinfo
- Areal
- 1 530 m²
- Bruttoareal
- 1 530 m²
- Tomteareal
- 6 001 m² (eiet)
Type lokale
| Kort om eiendommen
Eiendommen ligger sentralt til med god parkeringsdekning og fin adkomst for varelevering. Bygningen har generelt god standard og varmes opp med Pellets. det er balansert ventilasjon og kjøling.
| Innhold
Følgende eksklusive leieobjekter er tilgjengelige i eiendommen:
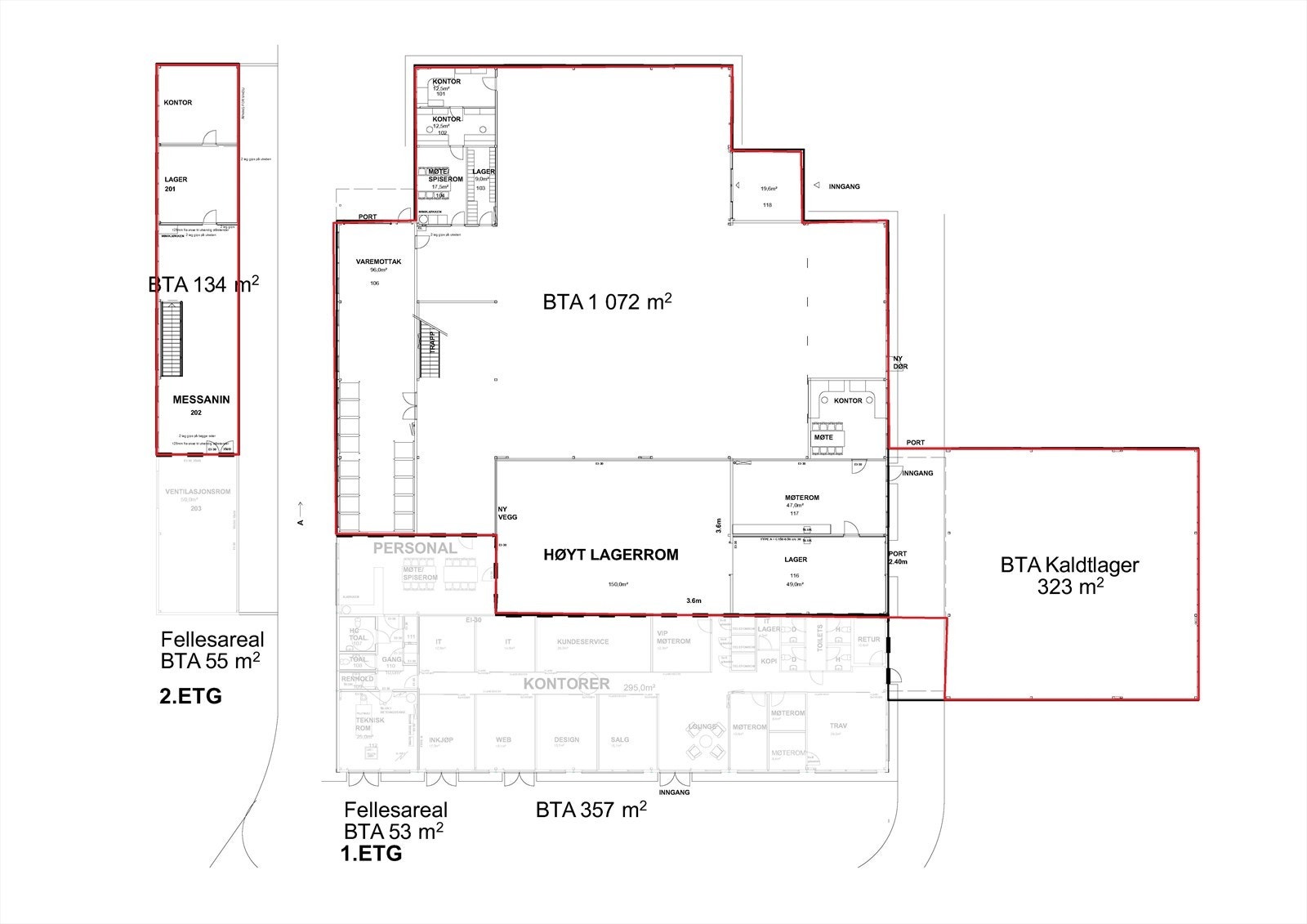
Mesanin: Kontorlokaler og lager på ca 130 kvm som også egner seg til showroom.
1. etg: I første etasje et det ca 900 kvm lager/showrom, ca 100 kvm varemottak og kontordel på ca 70 kvm.
i tilleg et det et kaldtlager på ca 325 kvm med egen kjøreport.
Fri takhøyde lager fra ca 4,5 - 6,5 meter.
Felesarealer:
I første etasje er det felles toalett kjerne.
| Beliggenhet
Eiendommen ligger på Vinterbro Næringsområde med Rema 1000 distribusjon som en av de nærmeste naboer. Kort vei til storhandelsområde på Nygårdskrysset, Ski sentrum og handelsområdet på Vinterbro. Næringsparken ligger rundt 3 km fra Ski stasjon med god kollektivdekning via bussrute mellom Vinterbro og Ski. Bygget ligger med kort avstand til påkjøringsrampe for både E6 og E18. Det er ca 25 minutters kjøretur til Oslo, Askim og Moss fra eiendommen.
| Oppvarming
Eiendommen oppvarmes med Pellets, varmegjenvinning fra ventilasjon og elektrisk.
| Ventilasjon
Det er balansert ventilasjon med kjøling.
| Lovanvendelse
Ved utleie vil meglers leiekontrakt bli benyttet. Husleielovens vil bare i begrenset utstrekning kunne påberopes av Leietaker. Kontakt vårt kontor for nærmere opplysninger og gjennomlesing av avtalen.
Utleier forbeholder seg her bl.a. retten til å kunne registrere utleievirksomheten i merverdiregisteret.
Eml. §§ 4-4, 6-2, 6-7, 6-10, 7-1 og 8-8 fravikes ved dette oppdraget.
Lov om hvitvasking
Eiendomsmeglere er underlagt lov om hvitvasking. Dette innebærer at oppdragsansvarlig har plikt til å melde fra til Økokrim om eventuelle mistenkelige transaksjoner.
| Hvitvaskingsloven
Hvitvaskingsregelverk
I henhold til Lov av 6. mars 2009 nr. 11 om tiltak mot hvitvasking og terrorfinansiering (Hvitvaskingsloven) er megler pliktig å gjennomføre kundetiltak av både oppdragsgiver og kjøper.
Dette innebærer blant annet plikt for meglerforetaket til å bekrefte identiteten til kjøper på grunnlag av gyldig legitimasjon. Samt plikt til å foreta kontroll av eventuelle reelle rettighetshavere. Der kjøper opptrer i henhold til fullmakt må også fullmaktsgivers identitet bekreftes på grunnlag av gyldig legitimasjon. Kundetiltak av kjøper, skal senest skje på kontraktsmøtet.
Dersom budgiver opptrer i henhold til fullmakt, må fullmakten fremlegges samtidig som bud inngis. Dersom kjøper er en juridisk person, plikter kjøper å fylle ut og returnere egne kundekontrollskjemaer før kontraktsmøtet. Firmaattest eller fullmakt må fremlegges samtidig som det inngis bud.
Dersom kundetiltak ikke kan gjennomføres kan ikke meglerforetaket bistå med gjennomføring av handelen, herunder ikke foreta oppgjør. Meglerforetaket er videre forpliktet til å rapportere mistenkelige transaksjoner til Økokrim. Med mistenkelig transaksjon menes transaksjon som mistenkes å involvere utbytte fra straffbar handling eller som skjer som ledd i terrorfinansiering. Manglende mulighet for kundetiltak kan også være et forhold som gjør transaksjonen mistenkelig. Det kan ikke gjøres ansvar gjeldende motmeglerforetaket som følge av at meglerforetaket overholder sine plikter etter Hvitvaskingsloven.
Matrikkelinformasjon
Visning
Ta kontakt for å avtale visning.Metra Næringsmegling AS
Nærområdet
Annonseinformasjon
| FINN-kode | 437009282 |
|---|---|
| Sist endret | 19. des. 2025 06:49 |
| Referanse | MTRA3.25105 |
Annonsene kan være mangelfulle i forhold til lovpålagt opplysningsplikt. Før bindende avtale inngås oppfordres interessenter til å innhente komplett informasjon fra meglerforetaket, selger eller utleier.







