Bildegalleri

Velkommen til lyse og moderne lokaler i MAX bygget.
TEMPE - Ca. 454 kvm BTA lyse moderne lokaler for rimelig fremleie. Parkeringskjeller
Nøkkelinfo
- Areal
- 457 m²
- Bruttoareal
- 457 m²
- Tomt
- Eiet
- Energimerking
- A - Mørkegrønn
Type lokale
Kort om eiendommen
Tempe - Ca. 454 kvm BTA lyse moderne lokaler for fremleie. Arealet kan deles.
Redusert leie.
Store vindusflater god profilering og utsikt.
Åpent kontorareal med stillerom, møterom og pent kjøkken.
Det er egen sykkelgarasje hvor syklene står innelåst i eget rom.
Ladestasjoner til el-biler og e-sykler. Felles garderobe og tørkerom for leietakere.
Trondheim Parkering leier byggets garasjeanlegg og utvendig i plan 2. Parkeringsplasser for ansatte leies for . 2000,- eks mva pr mnd.
Totalt ca. 144 innendørs p-plasser til besøkende til senteret og ansatte. 1 times gratis parkering.
Beliggenhet
Eiendommen ligger inntil E6 med meget god eksponering til hovedfartssåren inn mot Trondheim sentrum fra syd. Området ligger nært opp til Lerkendal med Sintef-miljøet og NTNU på Gløshaugen. Du kommer deg enkelt til og fra eiendommen med kollektivt der det er flere bussavganger. Nærhet til rekreasjonsområder på Tempe og flotte sykkelveier som strekker seg helt inn til Trondheim sentrum.
Adkomst
Fra Trondheim sentrum kjører en E6 opp Elgeseter gate. Ta til høyre etter Lerkendal stadion til Tempe og bygget med nedkjøring til parkering kommer straks på venstre hånd etter bensinstasjonen. Parkering i sokkel. Bussholdeplass med flere bussavganger nært bygget.
Innhold
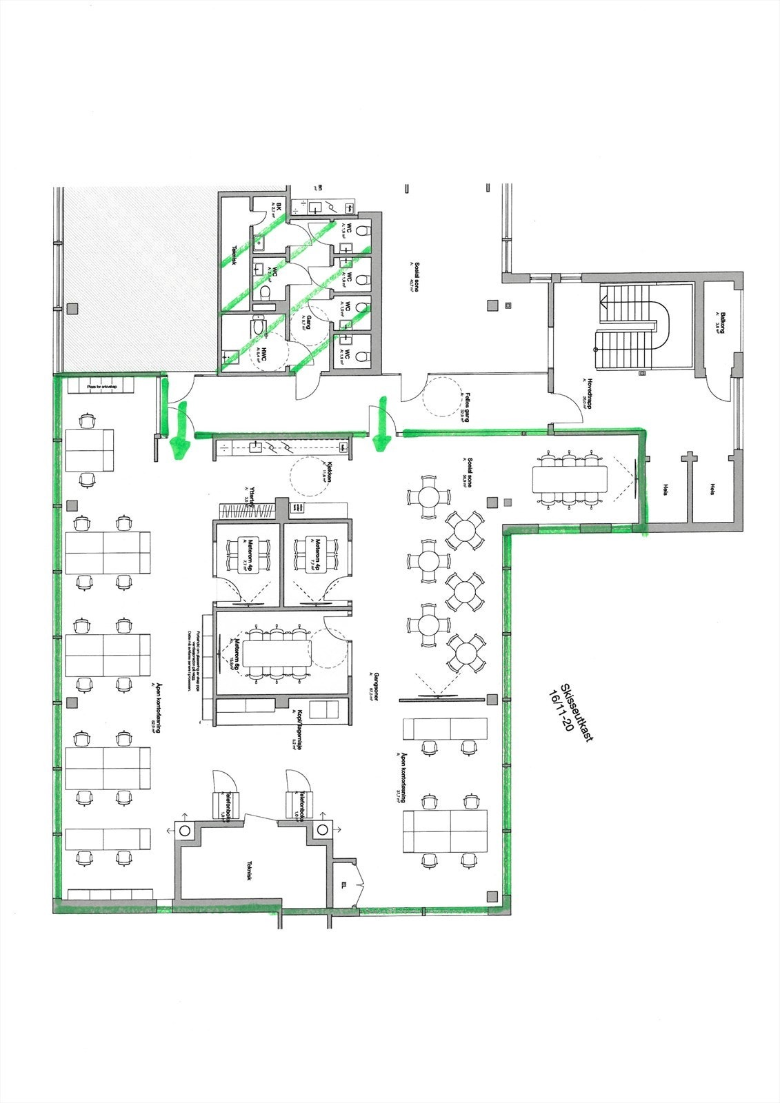
Ca. 454 kvm BTA ledig kontor i 6. etasje.
Åpent kontorareal med møterom, stillerom og pent kjøkken.
Tepper på gulv.
2 inngangsdører gjør at arealet kan deles til 2 leietakere.
Parkering
Parkering i bygget garasjeanlegg og utvendig i plan 2.
Totalt 144 innendørs p-plasser fordeles på besøkende til senteret og leietakere.
1 time gratis deretter mot vederlag.
Ansvarlig megler
Kirsten Setsaas
Matrikkelinformasjon
Visning
Ta kontakt for å avtale visning.Nyttige lenker
Creto Næringsmegling AS
Nærområdet
Annonseinformasjon
| FINN-kode | 436835169 |
|---|---|
| Sist endret | 10. feb. 2026 07:17 |
| Referanse | CN9.2561 |
Annonsene kan være mangelfulle i forhold til lovpålagt opplysningsplikt. Før bindende avtale inngås oppfordres interessenter til å innhente komplett informasjon fra meglerforetaket, selger eller utleier.





















