Bildegalleri

Fasade Refstadveien
Ledige kontorlokaler i Refstadveien 60-74 på Bjerke
Nøkkelinfo
- Areal
- 165 - 500 m²
- Byggeår
- 1966
- Renovert år
- 2021
- Overtakelse
- 01.06.2024
Type lokale
Kontor
Butikk/Handel
Lager/Logistikk
Garasje/Parkering
Fasiliteter
Aircondition
Bredbåndstilknytning
Garasje/P-plass
Heis
Kjøreport
Om eiendommen
Ledige lokaler på plan 2; 165 m² BTA inkl fellesareal - Universelt utformet med mulig felles venterom, HC-WC. Kan tilpasse etter leietakers behov. Meget gode lysforhold.
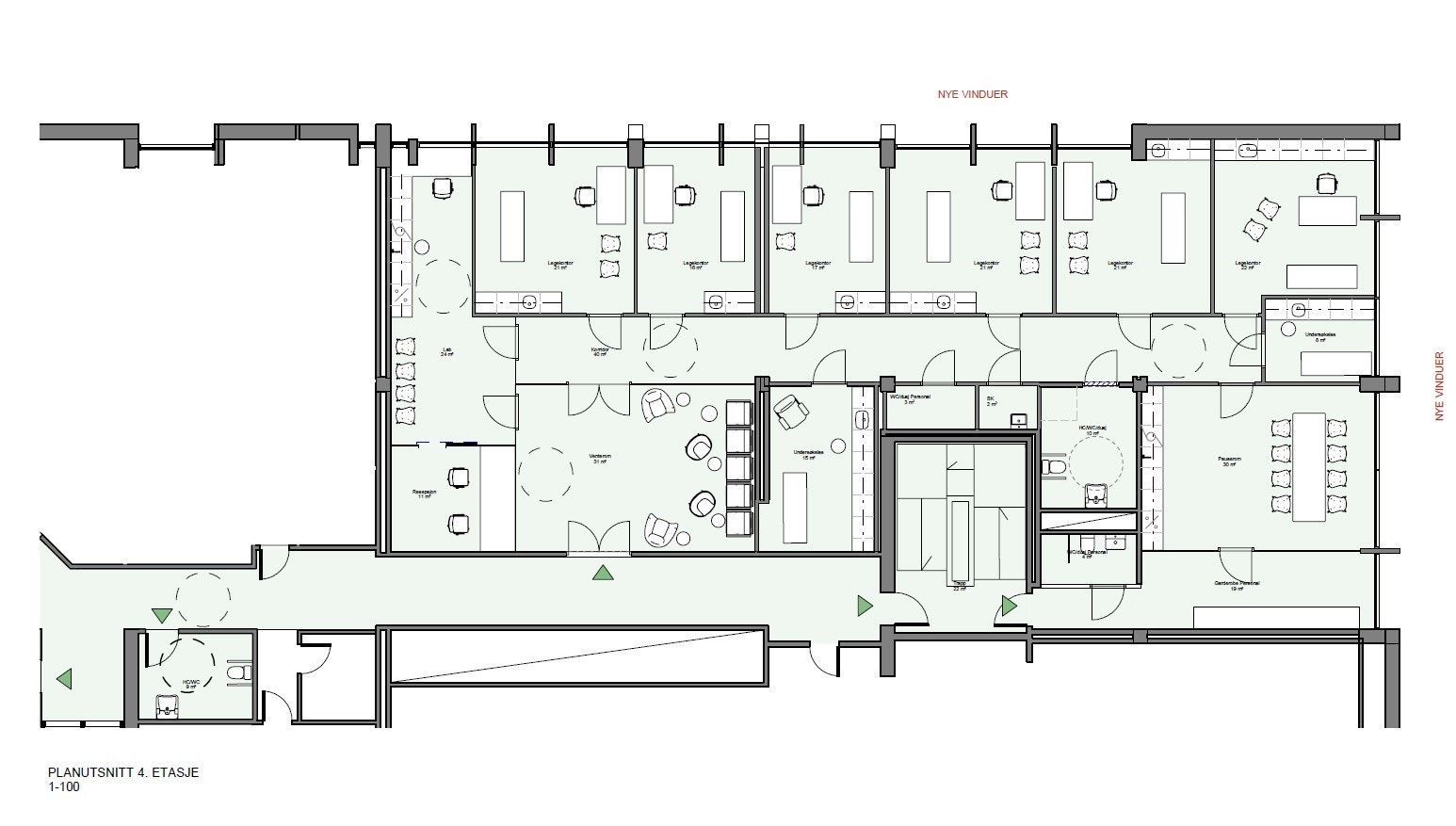
Ledige lokaler i 4 etg: Fra 120 - 500 m² BTA inkl. fellesareal. Lokalene fremstår i dag som rålokaler, men kan tilpasses iht. leietaker ønsker/behov.
Eiendommen er godt eksponert mot Trondheimsveien og Refstadveien
Øvrige leietakere i eiendommen er blant annet: Coop Extra, Fitness24Seven, Oslo Kommune, Tonsenhagen Fysikalske, Tannlegefelleskapet Bjerke, Deichmanske Bibliotek, Lagerboks AS, Bjerke Sushi, En til! AS (pizza), Dragen Restaurant
Ledige lokaler i 4 etg: Fra 120 - 500 m² BTA inkl. fellesareal. Lokalene fremstår i dag som rålokaler, men kan tilpasses iht. leietaker ønsker/behov.
Eiendommen er godt eksponert mot Trondheimsveien og Refstadveien
Øvrige leietakere i eiendommen er blant annet: Coop Extra, Fitness24Seven, Oslo Kommune, Tonsenhagen Fysikalske, Tannlegefelleskapet Bjerke, Deichmanske Bibliotek, Lagerboks AS, Bjerke Sushi, En til! AS (pizza), Dragen Restaurant
Beliggenhet
Lokalene ligger i Bydel Bjerke like ved Bjerkebanen i knutepunktet mellom Årvoll, Diesen, Resfstad, Brobekk og Vollebekk.
Adkomst
Adkomst via Trondheimsveien (RV4) eller Refstadveien. Kundeparkering og parkering for ansatte.
Busslinjer: 31,31E, 33, 58, 380, 390, FB1(Flybussen), kort vei til Sinsen T-Bane stasjon
Busslinjer: 31,31E, 33, 58, 380, 390, FB1(Flybussen), kort vei til Sinsen T-Bane stasjon
Standard
Ved inngåelse av leieavtale vil det bli gitt mulighet for tilpasning av leide lokaler iht. leietakers ønsker/behov.
Matrikkelinformasjon
Kommunenr: 301
Gårdsnr: 84
Bruksnr: 192
NB: Knappen for å vise hele beskrivelsen har kun en visuell effekt.
NB: Knappen for å vise hele beskrivelsen har kun en visuell effekt.
Visning
Ta kontakt for visning
Fearnley Real Estate AS
Nærområdet
Annonsene kan være mangelfulle i forhold til lovpålagt opplysningsplikt. Før bindende avtale inngås oppfordres interessenter til å innhente komplett informasjon fra meglerforetaket, selger eller utleier.










