Bildegalleri

Nøstegaten 58 - presentert av Stephane Trotta v/ EiendomsMegler 1 Næringseiendom.
Fullservice, nyrenovert kontorbygg sentralt i Bergen Sentrum
Nøkkelinfo
- Areal
- 139 - 4 615 m²
- Bruttoareal
- 1 830 m²
- Tomt
- Eiet
- Etasje
- 4.
- Byggeår
- 1989
- Renovert år
- 2023
- Energimerking
- B - Mørkegrønn
Type lokale
Fasiliteter
Arealspesifikasjon
2. etg: 447 kvm Kontor
3. etg: 139 kvm Kontor
5. etg: 1365 kvm Kontor
6. etg: 1337 kvm Kontor
7. etg: 1327 kvm Kontor
Kort om eiendommen
Dette er en meget spennende eiendom i Bergen sentrum med alle fasiliteter en bedrift ønsker for å være attraktiv for sine ansatte. Eiendommen består av Hovedbygget og Nybygget. Hovedbygget er mer eller mindre totalrenovert de siste årene, mens Nybygget ble totalrenovert i 2022.
Beliggenhet
Nøstegaten 58A har en flott og sentral beliggenhet. Kun en kort spasertur til Torgallmenningen, bybanestopp, buss og alle byens fasiliteter.
Innhold
Vi har i dag/får følgende ledige arealer i Nøstegaten 58.
Hovedbygget:
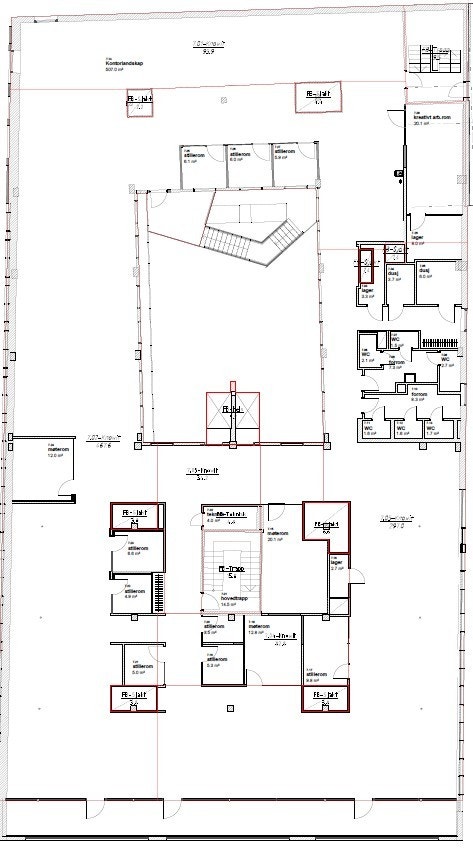
5. etasje. ca.BTA 1365 m². Lokalene blir ledige 31.12.2026. Hele etasjen blir da ledig. Lokalene er i dag hovedsakelig innredet med åpent landskap, stillerom, møterom og sosiale soner. 2 heiser, med adgangskontroll, direkte inn i lokalene.
6. etasje. ca. BTA 1334 m². Lokalene blir ledige 31.12.2026. Hele etasjen blir da ledig. Lokalene er i dag hovedsakelig innredet med åpent landskap, stillerom, møterom og sosiale soner. 2 heiser, med adgangskontroll, direkte inn i lokalene. Etasjen har egen balkong mot sjøen.
7. etasje. ca. BTA 1327 m². Lokalene blir ledige 31.12.2026. Hele etasjen blir da ledig. Lokalene er i dag hovedsakelig innredet med åpent landskap, stillerom, møterom og sosiale soner. 2 heiser, med adgangskontroll, direkte inn i lokalene. Etasjen har egen balkong mot sjøen.
De tre etasjene har en egen "interntrapp" som knytter etasjene sammen. Lokalene kan leies samlet eller hver for seg.
Nybygget:
2. etasje. ca. BTA 447 m². Lokalene kan fristilles etter avtale. Lokalene er i dag innredet med landskap, 2 møterom, stillerom og sosial sone. Tilgang til felles toaletter, garderober og kjøkken i etasjen.
3. etasje. ca. BTA 139 m². Lokalene er ledige og kan overtas etter avtale. Det ledige lokalet er i dag innredet med et åpent landskap for 4-8 personer, 2 stillerom/kontor og en liten sosial sone. Tilgang til felles toaletter, garderober og kjøkken i etasjen.
Som leietaker på denne eiendommen har man fri tilgang til byggets kantine (mat og kantinebidrag må dekkes av leietaker), møteroms-pool med fult utstyrte møterom, auditorium for 144 personer med mulighet for streaming, et fult utstyrt treningsrom og garderober med dusj. Dette bygget har alt en bedrift kan forvente av et moderne kontorbygg.
Standard
De innredede lokalene i Hovedbygget har normalt god kontorstandard.
Oppvarming
Fjernvarme
Energimerking
Bygget vil bli energimerket på nytt etter oppgradering
Adkomst
Enkelt tilkomst til fots for kollektivreisende og bilister slipper å kjøre gjennom sentrum for å komme til eiendommen uavhengig av hvilken del av regionen man kommer fra.
Parkering
Det er mulig å leie parkering i tilknytning til lokalene.
Offentlig kommunikasjon
Kort avstand til kollektiv tilbud som buss og Bybane.
Overtakelse
Lokalet kan overtas etter avtale.
Sentrale lover
Oppdraget reguleres i henhold til Lov om eiendomsmegling av 29.06.2007 nr. 73. Fravikeligheten som framgår av lovens § 1-3 og forskriftens § 1-2 er anvendt for dette oppdraget.
Dersom det avtales påkostninger/vedlikehold av leieobjektet som dekkes av utleier eller leietaker må partene selv avklare skattemessige konsekvenser, herunder avskrivningsregler og eventuelle justeringsregler for merverdiavgift med sine respektive revisorer eller advokater. Megler er uten ansvar for konsekvenser reglene påfører partene.
Leietaker er ansvarlig overfor alle offentlige myndigheter for at hans benyttelse av leieobjektet tilfredsstiller de til enhver tid gjeldende offentligrettslige krav i leieperioden.
Offentligrettslige krav knyttet til universell utforming skal besørges og bekostes av leietaker, når kravet i hovedsak kan tilbakeføres til leietakers særlige bruksformål eller den bransje leietaker driver i leieobjektet. Offentligrettslige krav knyttet til universell utforming, som ville blitt pålagt uavhengig av de alternative bruksformål som leieobjektet lovlig kan benyttes til, skal besørges og bekostes av utleier.
Utleie av eiendommen vil skje på alminnelige betingelser for leie av næringslokaler.
Utleiers krav til sikkerhet
6 mnd leie og felleskost inkl. mva.
Fremleie
Fremleie kan tillates med utleiers godkjennelse.
Hvitvaskingsregelverk
I henhold til Lov av 6. mars 2009 nr. 11 om tiltak mot hvitvasking og terrorfinansiering (Hvitvaskingsloven) er megler pliktig å gjennomføre kundetiltak av både oppdragsgiver og leietaker.
Dette innebærer blant annet plikt for meglerforetaket til å bekrefte identiteten til leietaker på grunnlag av gyldig legitimasjon. Samt plikt til å foreta kontroll av eventuelle reelle rettighetshavere. Der leietaker opptrer i henhold til fullmakt må også fullmaktsgivers identitet bekreftes på grunnlag av gyldig legitimasjon. Kundetiltak av leietaker skal senest skje på kontraktsmøtet.
Dersom leietaker opptrer i henhold til fullmakt, må fullmakten fremlegges samtidig som kontrakt inngås. Dersom leietaker er en juridisk person (AS mv.) plikter leietaker å fylle ut og returnere egne kundekontrollskjemaer før kontraktsmøtet i tillegg til å fremlegge firmaattest.
Dersom kundetiltak ikke kan gjennomføres kan ikke meglerforetaket bistå med gjennomføring av oppdraget. Meglerforetaket er videre forpliktet til å rapportere mistenkelige avtaleinngåelser til Økokrim. Med mistenkelig avtaleinngåelse menes en avtale som mistenkes å involvere utbytte fra straffbar handling eller som skjer som ledd i terrorfinansiering. Manglende mulighet for kundetiltak kan også være et forhold som gjør oppdraget mistenkelig. Det kan ikke gjøres ansvar gjeldende mot meglerforetaket som følge av at meglerforetaket overholder sine plikter etter Hvitvaskingsloven.
Vedlegg til salgsoppgaven
Plantegninger
Matrikkelinformasjon
Nyttige lenker
EiendomsMegler 1 Næring Bergen
Nærområdet
Annonseinformasjon
| FINN-kode | 436024441 |
|---|---|
| Sist endret | 29. jan. 2026 13:14 |
| Referanse | 2902210041 |
Annonsene kan være mangelfulle i forhold til lovpålagt opplysningsplikt. Før bindende avtale inngås oppfordres interessenter til å innhente komplett informasjon fra meglerforetaket, selger eller utleier.































































