Bildegalleri

Torvstikkeren-1b
Råde - Nyoppførte lagerbygg til leie
Nøkkelinfo
- Areal
- 206 - 936 m²
- Bruttoareal
- 262 m²
- Tomteareal
- 3 246 m² (eiet)
- Byggeår
- 2025
- Overtakelse
- Mulig med rask overtakelse.
Type lokale
Arealspesifikasjon
1. etg: 206 kvm Bygg 1
1. etg: 206 kvm Bygg 2
1. etg: 262 kvm Bygg 3
1. etg: 262 kvm Bygg 4
| Kort om eiendommen
Nyoppførte lagerbygg til leie. Lager og lager/kontor i kombinasjon.
| Bebyggelse
Nyoppførte lagerbygg i Råde med nærhet til E6.
Byggene kan leies ut samlet eller hver for seg.
| Innhold
Nyoppførte lagerbygg til leie.
Byggene er ferdigstilt og klare for overlevering.
Det er 3 nyoppførte bygg på eiendommen som kan leies ut hver for seg eller samlet.
Bygg 3 og 4:
Kaldtlager på ca. 262 kvm. BTA med 2 kjøreporter og dør i front.
Kjøreporter 4x4m med vinduer og innvendig takhøyde på ca. 6,7m.
Leveres med vann/avløp inn til bygg(ikke tilkoblet).
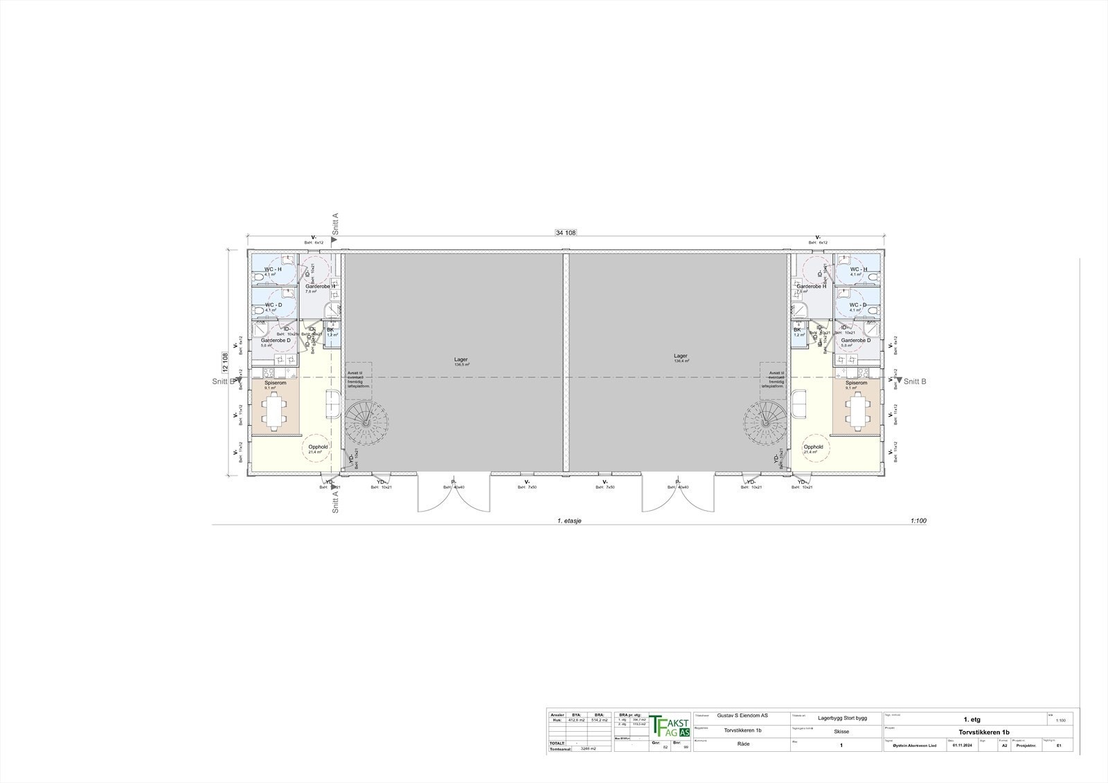
Bygg 1 og 2:
Kaldtlager med kontordel på ca. 206 kvm. BTA (det er i tillegg mulig å etablere lageringsmesanin over kontordel)
Bygget er delt i to like deler med tilhørende kontordel til hver del og kan leies ut samlet eller hver for seg.
Leveres med kjøreport + adkomstdør til lager og kontordel.
Kjøreporter 4x4m og innvendig takhøyde på ca. 6,7m.
Kontordel på ca. 55 kvm inneholder: 2 stk WC, 2 stk garderober, bøttekott, kjøkken/spiserom og oppholdsrom/kontor.
Leveransebeskrivelse:
- Støpt plate på mark med 15 cm. betong.
- Bærekonstruksjon i stål.
- Yttervegger oppført med 10 cm isolerte sandwich-elementer.
- Flat takkonstruksjon med 30 cm isolasjon, tekket med helsveiset banemembran.
- Kjøreporter: 4x4m isolerte porter med elektriske portåpnere.
- Ytterdører: Isolerte ståldører.
- Ubehandlede betonggulv i lagerhaller.
Leveransebeskrivelse kontordel:
- Overflater: Teppeflis/keramiske fliser på gulver, sandwich-elementer på yttervegg og mot lagerhall, innvendige vegger med malt gips, himlingssystem fra Rockwool.
- Sanitærutstyr: Keramiske fliser på gulv, baderomspanel på vegger og himlingssystem fra Rockwool. Leveres med WC og servant.
- Kjøkken: Innredning med slette fronter, koketopp, vask, kjøleskap og oppvaskmaskin.
- Ventilasjon: Balansert ventilasjon i kontordelene.
- Oppvarming: Elektrisk.
Byggene er oppført etter TEK 17.
| Beliggenhet
Eiendommen ligger i veletablert næringsområde på Åkeberg næringsområde, rett ved E6. Åkeberg ligger "midt" mellom Østfoldbyene. Ca. 30 minutter fra Svenskegrensen og Ca. 50 minutter fra Oslo.
| Adkomst
Eiendommen ligger tett på E6 med enkel adkomst
etter avkjøring ved Missingmyr-krysset. Se
kartbeskrivelse.
| Parkering
Parkering på eiendommens tomt.
| Regulering
Eiendommen ligger under Kommuneplan - Råde kommune, med formål: Næringsvirksomhet. Kontakt megler for utlevering av komplett arealplan.
Detaljreguleringsplan: Åkebergmosen/Rabben, ikrefttredelse 22.06.2006, formål: Forretning/kontor/industri. Se vedlegg.
| Diverse
Eiendommen ligger nært på høyspenttrasé og innenfor sone som reguleres av Statnett.
Statnett påpeker at alle tiltak både over og under bakken som berører denne sonen skal forhåndsvurderes og godkjennes av Statnett.
Statnett har strenge retningslinjer for bruk av maskiner og utstyr innenfor 30 meter horisontalt fra ytterste fase både ved bygging og drift av bygninger og tomt, og det vil normalt ikke kunne godkjennes tilfeldig bruk av løfteutstyr innenfor denne sonen.
Statnett anbefaler også at man utreder jording av alle metalldeler da anlegget induserer spenninger til metaller.
Det vil også være et krav til at eventuell belysning eller annen infrastruktur som skal monteres opp i stolper nærmere enn 30 meter horisontalt fra nærmeste spenningsførende anleggsdel som trenger bruk av løfte maskiner skal monteres opp på vippbare sokler for at oppføring og vedlikehold skal skje fra bakkenivå.
Det forutsettes at kjøper setter seg inn i gjeldende regelverk knyttet til dette.
| Beskrivelse av tomt
Eiet tomt på ca. 3 246 kvm. Tomten benyttes i fellesskap for byggene.
Statnett har restriksjoner til håndtering på tomten knyttet til sikringssoner mot høystenttrasé. Se beskrivelse under diverse.
Adkomsten til eiendommen utgjør et realsameie som denne eiendommen eier andeler i. Realsameiet gir rett til adkomst og forpliktelser knyttet til vedlikehold av vei. Se vedlegg.
| Oppvarming
Elektrisk oppvarming i kontordel.
| Energimerking
Energimerking foreligger ikke.
Ytterligere opplysninger om energimerking finner du på www.energimerking.no
| Budgivning
Budgiver oppfordres til å benytte vedlagte budskjema. Budgiver er innforstått med at Selger når som helst kan avslå eller akseptere et hvilket som helst bud uten nærmere begrunnelse. Likeledes er bud bindende når det er kommet til Selgers kunnskap. Handelen er juridisk bindende for begge parter dersom budet aksepteres innen akseptfristen. Meglers kontraktsmal vil ligge til grunn for avtalen.
| Lovanvendelse
Ved utleie vil meglers leiekontrakt bli benyttet. Husleielovens vil bare i begrenset utstrekning kunne påberopes av Leietaker. Kontakt vårt kontor for nærmere opplysninger og gjennomlesing av avtalen.
Utleier forbeholder seg her bl.a. retten til å kunne registrere utleievirksomheten i merverdiregisteret.
Eml. §§ 4-4, 6-2, 6-7, 6-10, 7-1 og 8-8 fravikes ved dette oppdraget.
Lov om hvitvasking
Eiendomsmeglere er underlagt lov om hvitvasking. Dette innebærer at oppdragsansvarlig har plikt til å melde fra til Økokrim om eventuelle mistenkelige transaksjoner.
| Hvitvaskingsloven
Hvitvaskingsregelverk
I henhold til Lov av 6. mars 2009 nr. 11 om tiltak mot hvitvasking og terrorfinansiering (Hvitvaskingsloven) er megler pliktig å gjennomføre kundetiltak av både oppdragsgiver og kjøper.
Dette innebærer blant annet plikt for meglerforetaket til å bekrefte identiteten til kjøper på grunnlag av gyldig legitimasjon. Samt plikt til å foreta kontroll av eventuelle reelle rettighetshavere. Der kjøper opptrer i henhold til fullmakt må også fullmaktsgivers identitet bekreftes på grunnlag av gyldig legitimasjon. Kundetiltak av kjøper, skal senest skje på kontraktsmøtet.
Dersom budgiver opptrer i henhold til fullmakt, må fullmakten fremlegges samtidig som bud inngis. Dersom kjøper er en juridisk person, plikter kjøper å fylle ut og returnere egne kundekontrollskjemaer før kontraktsmøtet. Firmaattest eller fullmakt må fremlegges samtidig som det inngis bud.
Dersom kundetiltak ikke kan gjennomføres kan ikke meglerforetaket bistå med gjennomføring av handelen, herunder ikke foreta oppgjør. Meglerforetaket er videre forpliktet til å rapportere mistenkelige transaksjoner til Økokrim. Med mistenkelig transaksjon menes transaksjon som mistenkes å involvere utbytte fra straffbar handling eller som skjer som ledd i terrorfinansiering. Manglende mulighet for kundetiltak kan også være et forhold som gjør transaksjonen mistenkelig. Det kan ikke gjøres ansvar gjeldende motmeglerforetaket som følge av at meglerforetaket overholder sine plikter etter Hvitvaskingsloven.
Matrikkelinformasjon
Visning
Ta kontakt for å avtale visning.Metra Næringsmegling AS
Nærområdet
Annonseinformasjon
| FINN-kode | 435897423 |
|---|---|
| Sist endret | 06. nov. 2025 15:24 |
| Referanse | MTRA2.2596 |
Annonsene kan være mangelfulle i forhold til lovpålagt opplysningsplikt. Før bindende avtale inngås oppfordres interessenter til å innhente komplett informasjon fra meglerforetaket, selger eller utleier.



























