Bildegalleri

Attraktive lagerlokaler på Kalbakken. Lokalene kan tilpasses leietaker sine ønsker.
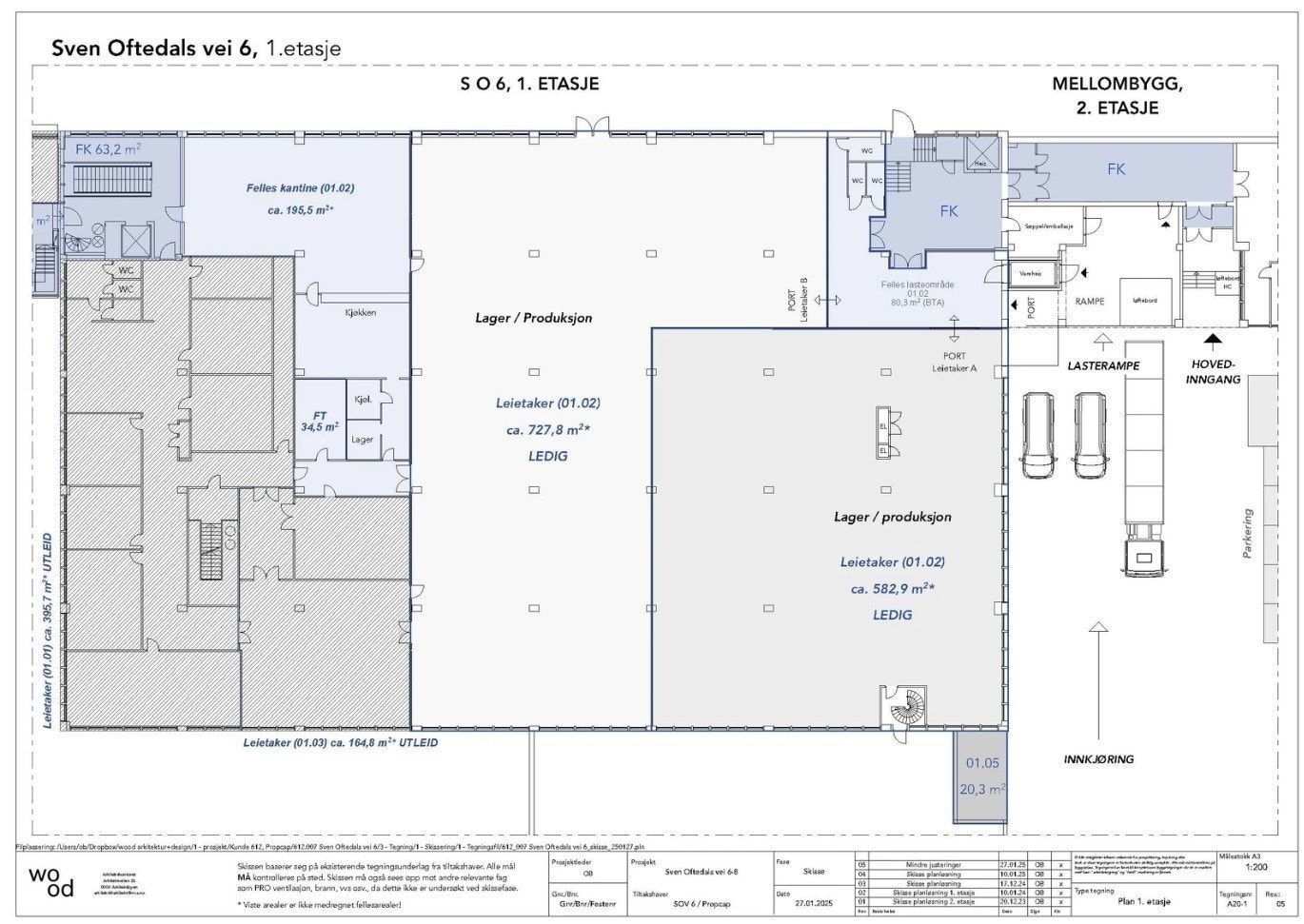
Lager- og produksjonslokaler fra 550 - 1 700 kvm| Kan tilpasses etter leietaker sitt ønske | Godt egnet for plukklager
Nøkkelinfo
- Areal
- 550 - 1 700 m²
- Overtakelse
- Omgående
Type lokale
Kontor
Produksjon/Industri
Lager/Logistikk
Kombinasjonslokaler
Verksted
Fasiliteter
Aircondition
Alarm
Garasje/P-plass
Kantine
Om eiendommen
Lokalene er i dag revet og kan tilpasses ny leietaker. Lokalene er godt egnet som plukklager, lager, produksjonsarealer etc.
I Sven Oftedals vei 6 kan det etableres varemottak til lageret i 1. etasje. I tilknytning til varemottaket kan det etableres vareheis med direkte adkomst til lager og kontor i 2. etasje. Det legges opp til god flyt for varer og mennesker mellom etasjene. Lokalene er i klargjort for å tilpasses nye brukere og vil totalrehabiliteres før innflytting.
Vi kan tilby følgende ledige lokaler:
Sven Oftedals vei 6:
I Sven Oftedals vei 6 kan det etableres varemottak til lageret i 1. etasje. I tilknytning til varemottaket kan det etableres vareheis med direkte adkomst til lager og kontor i 2. etasje. Det legges opp til god flyt for varer og mennesker mellom etasjene. Lokalene er i klargjort for å tilpasses nye brukere og vil totalrehabiliteres før innflytting.
Vi kan tilby følgende ledige lokaler:
Sven Oftedals vei 6:
- Det kan tilbys fra ca. 500 - 1 700 kvm lager med ca. 370 cm takhøyde
- Det vil etableres vareheis direkte fra det nye varemottaket
- Utforming av ny lasteramper og varemottak kan påvirkes av leietaker
Beliggenhet
Groruddalen er å betrakte som det mest sentrale lager- og kombinasjonsområdet i Osloregionen. Fra eiendommen er det umiddelbar nærhet til Alnaterminalen.
Lett adkomst til E6, med forbindelse nordover mot Gardermoen og sørover mot Vestby, samt E18. Ca. 10 min kjøretid til Oslo sentrum og ca. 30 min til Oslo Lufthavn.
Eiendommen ligget godt eksponert mot diagonalen som binder Rv. 4, E6 og Østre Aker vei sammen.
Umiddelbar nærhet til offentlig kommunikasjonstilbud. Nydland Togstasjon ligger ca. 6 min unna til fots.
Lett adkomst til E6, med forbindelse nordover mot Gardermoen og sørover mot Vestby, samt E18. Ca. 10 min kjøretid til Oslo sentrum og ca. 30 min til Oslo Lufthavn.
Eiendommen ligget godt eksponert mot diagonalen som binder Rv. 4, E6 og Østre Aker vei sammen.
Umiddelbar nærhet til offentlig kommunikasjonstilbud. Nydland Togstasjon ligger ca. 6 min unna til fots.
Matrikkelinformasjon
Kommunenr: 301
Gårdsnr: 91
Bruksnr: 69
NB: Knappen for å vise hele beskrivelsen har kun en visuell effekt.
NB: Knappen for å vise hele beskrivelsen har kun en visuell effekt.
Visning
Ta kontakt for å avtale visning.CBRE
KONTAKT OSS
Nærområdet
Annonsene kan være mangelfulle i forhold til lovpålagt opplysningsplikt. Før bindende avtale inngås oppfordres interessenter til å innhente komplett informasjon fra meglerforetaket, selger eller utleier.










