Bildegalleri

Ledig lager 5 000 kvm, kan overleveres mai 2025
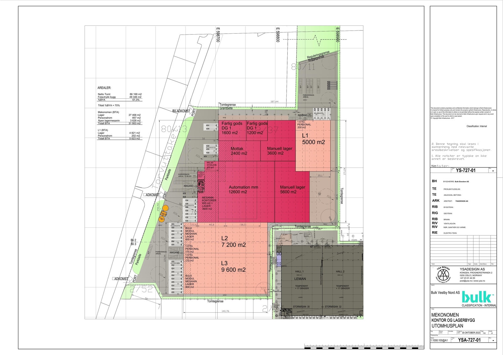
Vestby Nærings Park - Nybygg, logistikk, lager og produksjon fra ca. 5 000 kvm
Nøkkelinfo
- Areal
- 5 000 - 40 000 m²
- Tomteareal
- 200 000 m²
Type lokale
Om eiendommen
Vi bygger nå et nybygg på ca. 5 000 kvm som står klart februar 2025.
I tillegg har vi over 200 mål hvor vi kan føre opp nybygg fra ca. 5 000 kvm til ca 36 000 kvm i fotavtrykk.
- Tomt på inntil ca. 251 mål
- Enkeltbygg på inntil ca. 36 000 m² grunnflate
- Byggehøyde inntil 25 meter
- Type bygg: lager/logistikk, industri/produksjon, kombinasjonsbygg, verksted, kontor
- Bransjens ledende industri-, lager- og logistikkbygg
- Bærekraftige løsninger som for eksempel solceller på tak/vegger, sedumtak, åpen overvannshåndtering og fjernvarme
- Sentral beliggenhet mellom Svinesund og Gardermoen
- Gangavstand til kollektivtransport
- Naboer som IKEA, Leman, Namron (Elektroimportøren) og Nille.
Bulk Industrial Real Estate AS har 2 store tomteområder i Vestby.
Ta kontakt for en uforpiktende prat.
Bulk Industrial Real Estate AS
Bulk er et industrikonsern med virksomhet innenfor områdene Logistikk, Data Senter, Data Senter og fiberinfrastruktur.
Bulk har oppført mer enn 500 000 m² med logistikk bygg langs E6. Sammen med våre leietakere, har vi bygget effektive logistikk bygninger med høy kvalitet på kort tid. Bulks styrke er å bistå leietakere med gode og kostnadseffektive løsninger, og det har blitt lagt merke til blant logistikkselskaper som ønsker moderne bygninger og lave driftskostnader. Med et sterkt fokus på energieffektivisering har Bulk oppnådd energiklasse "A" på våre lagerbygg. Bulk opererer med en svært effektiv byggeprosess og kan bygge nytt bygg med overtagelse fra ca. 10-12 måneder etter signert leiekontrakt. Bulk har fra før ført opp nybygg for Nille, Iron Mountain, Synnøve Finden, Vinmonopolet, Elektroimportøren og Leman Norway
Beliggenhet
Rett sør for sentrum av Vestby kommune, sørøst for Vestby sør-krysset, er Bulk Park Vestby under utvikling. Bulk Park Vestby ligger strategisk plassert ved inngangen til Stor-Oslo og er en av landets mest attraktive og etterspurte næringsparker.
Her har vi de siste ti årene oppført en rekke nybygg for ulike kunder som DSV, Leman, Namron (Elektroimportøren), Nille, Synnøve Finden og Vinmonopolet. Her kan vi tilby:
- Tomt på inntil ca. 251 mål
- Enkeltbygg på inntil ca. 36 000 m² grunnflate
- Byggehøyde inntil 25 meter
- Type bygg: lager/logistikk, industri/produksjon, kombinasjonsbygg, verksted, kontor
- Bransjens ledende industri-, lager- og logistikkbygg
- Bærekraftige løsninger som for eksempel solceller på tak/vegger, sedumtak, åpen overvannshåndtering og fjernvarme
- Sentral beliggenhet mellom Svinesund og Gardermoen
- Gangavstand til kollektivtransport
- Naboer som IKEA, Leman, Namron (Elektroimportøren) og Nille.
Adkomst
• Avkjøring 16 fra nord (Vestby) kjør gamle E6 til Vestby Næringspark Øst.
• Avkjøring 15 fra syd (Son) kjør gamle E6 til Vestby Næringspark Øst.
Standard
Bulk Industrial Real Estate er ett av Skandinavias ledende eiendomsutvikler av lager-, logistikk og industribygg ved å tilby suverene lokasjoner med strategisk beliggenhet og bærekraftige logistikkløsninger, tilpasset et marked i rask endring. Med tilgjengelige tomter, gjennomtenkte moderne bygg og en profesjonalisert og gjennomtenkt prosess, leverer Bulk Industrial Real Estate et innovativt, fleksibelt logistikkprodukt, og viser seg som en klasseledende rådgiver og samarbeidspartner. Bulk Industrial Real Estate har siden starten i 2006 bygget, og har under oppføring, mer enn 450 000 kvadratmeter industribygg.
Innhold
Matrikkelinformasjon
Visning
Bulk Industrial Real Estate AS
Nærområdet
Annonsene kan være mangelfulle i forhold til lovpålagt opplysningsplikt. Før bindende avtale inngås oppfordres interessenter til å innhente komplett informasjon fra meglerforetaket, selger eller utleier.





